Trilocale luminoso con autorimessa doppia a Bregnano

Bregnano

200.000 EUR

Trilocale luminoso con autorimessa doppia a Bregnano (Rif. V002753)

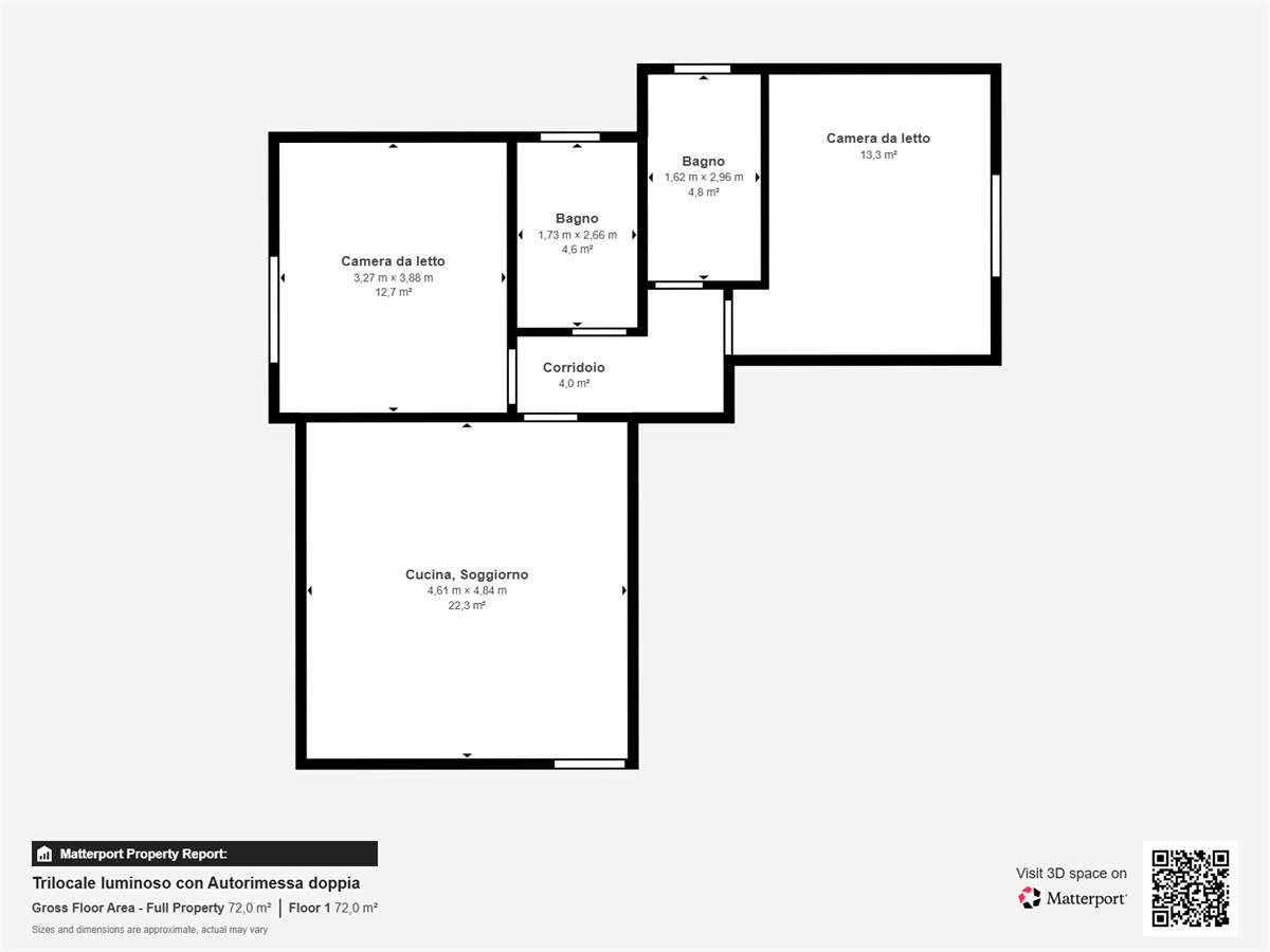
Nel comune di Bregnano, in una zona residenziale tranquilla e ben servita, proponiamo in vendita un elegante trilocale di 75 mq posto al secondo piano di una palazzina moderna edificata nel 2010.
L’appartamento, luminoso e ben distribuito, si apre su un accogliente ingresso che conduce alla zona giorno con soggiorno e cucina a vista, affacciati su un terrazzo vivibile ideale per momenti di relax all’aperto. La zona notte è composta da una camera matrimoniale, una cameretta e due bagni.
Le finiture sono curate e gli ambienti offrono un elevato comfort abitativo grazie al riscaldamento autonomo a pavimento, agli infissi in legno con doppi vetri, alle tapparelle in PVC elettriche, alle zanzariere presenti in tutti i locali e all’impianto d’allarme con sensori sugli infissi. L’immobile è inoltre dotato di aria condizionata in ogni ambiente, videocitofono, portoncino blindato e pannelli solari per la produzione di acqua calda sanitaria.
Completano la proprietà un ampio box doppio in lunghezza al piano interrato e un terrazzo ben esposto. Le spese condominiali ammontano a circa 600 euro l’anno, comprensive di amministrazione, pulizia e manutenzione delle parti comuni, energia elettrica comune e gestione della fossa biologica.
L’appartamento si presenta in ottime condizioni e sarà liberato entro pochi mesi.
Richiesta: € 200.000
Un’abitazione ideale per chi desidera vivere in un contesto recente, con ottimi comfort e in posizione comoda per raggiungere i principali servizi e collegamenti.
Città:Bregnano
Prezzo:200.000 EUR
Classe:B (90,08)
Locali:3
Camere:2
Bagni:2
Terrazzi:1
Box:2
Metri quadri:75
Anno costruzione:2010
Stato Immobile:Ristrutturato
Grado:Signorile
Posizione:Periferia
Panorama:Vista Aperta
Piano:Secondo
Orientamento:Nord Ovest Sud
Lati Liberi:3
Giardino:No
Arredi:Arredato
Tipo Soggiorno:Soggiorno
Tipo Cucina:A Vista
Riscaldamento:Centralizzato
Tipo Riscaldam.:Caldaia
Tipo Impianto:Pavimento
Fonte Energetica:Metano
Acqua Calda:Autonoma
Raffrescamento:Split
Infissi:Legno Doppio Vetro
Serramenti:Ottimo
Persiana:Tapparella PVC
Pavim. Giorno:Ceramica
Pavim. Notte:Ceramica
Pavim. Cucina:Ceramica
Pavim. Bagno:Ceramica
Accesso Disabili:No
Accesso interno disabili:Non accessibile
Isolamento:Presente
Isolamento termico:Cappotto esterno
Isolamento acustico:Isolamento pareti
Destinato a residenti:Si
Accessori: Antifurto, Aria Condizionata, Cancello Elettrico, Pannelli Solari, Porta Blindata, Tapparelle Elettriche, Video Citofono, Zanzariere

Mappa

Via Monsignor Santino Grassi, 14 - 22070 Bregnano CO

Video

Cookie preference