PORZIONE CASA CIELO TERRA CON 2 GRANDI BOX - ROVENNA - CERNOBBIO

Cernobbio
(Rovenna)

530.000 EUR

PORZIONE CASA CIELO TERRA CON 2 GRANDI BOX - ROVENNA - CERNOBBIO (Rif. PP - 609 - V)

Cernobbio – Rovenna
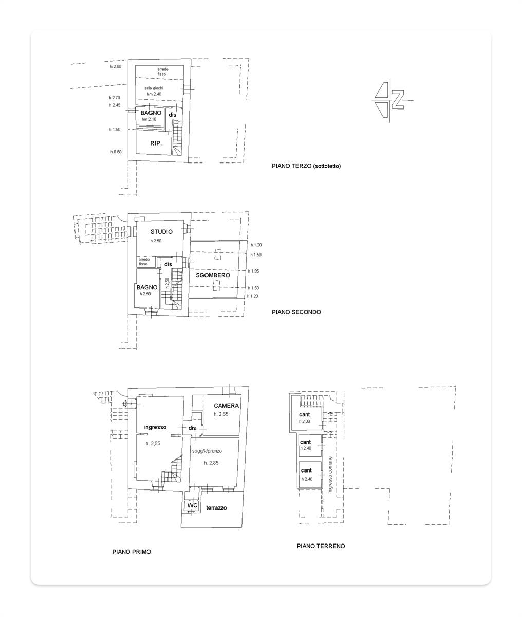
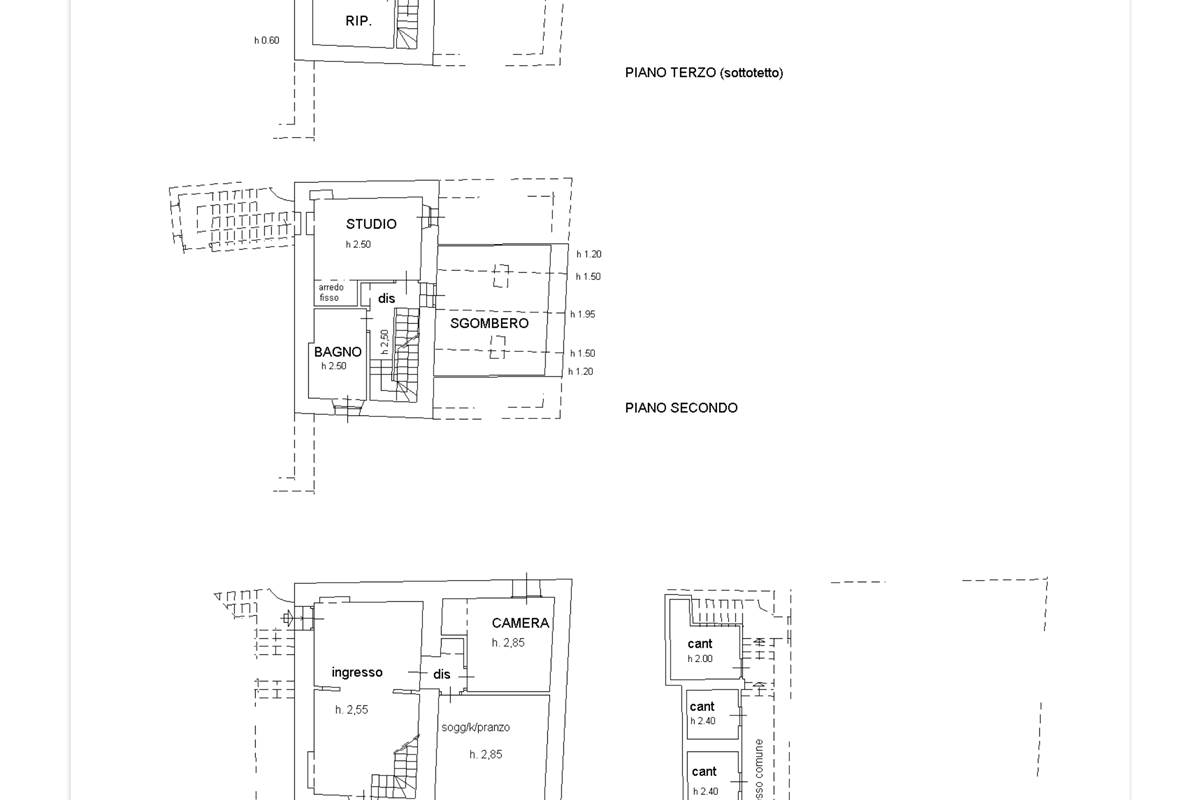
In posizione caratteristica e tranquilla, proponiamo in vendita un'ottima opportunità immobiliare: unica soluzione abitativa con possibilità di suddivisione in due appartamenti per un totale di ampie superfici e spazi versatili.
La prima unità potrebbe essere un bilocale su due livelli, con soggiorno e angolo cottura al primo piano, camera mansardata e bagno. La seconda unità potrebbe essere un ampio appartamento cielo-terra, con soggiorno, tinello, cucina con terrazza, tre camere, doppi servizi e locali accessori.
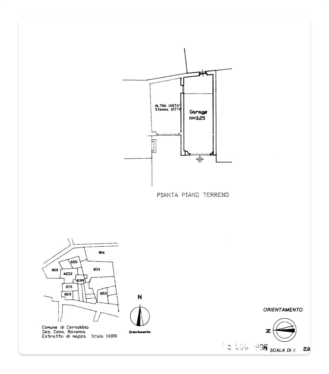
Completano la proprietà due grandi box - uno doppio e uno triplo e varie cantine.. Le condizioni sono ottime e la soluzione necessita solo di piccoli interventi di rinfresco.
Soluzione ideale per chi cerca una casa indipendente di grandi dimensioni, perfetta per famiglie numerose, progetti di co-housing o come investimento unico in una zona gradevole e tranquilla, a pochi minuti dal centro di Cernobbio e dal confine svizzero.
Città:Cernobbio
Prezzo:530.000 EUR
Classe:F (246,17)
Locali:6
Camere:3
Camere doppie:3
Camere singole:1
Bagni:3
Balconi:1
Terrazzi:1
Box:2
Metri quadri:275
Mq calpestabili:241
Mq Box:57
Mq Balcone:3
mq Terrazzo:12
Stato Immobile:Buono
Grado:Medio
Posizione:Collina
Panorama:Vista Aperta
Orientamento:Nord Ovest Sud Est
Totale Piani:Due
Lati Liberi:4
Arredi:Possibilità
Tipo Soggiorno:Doppio
Tipo Cucina:Abitabile
Riscaldamento:Autonomo
Tipo Riscaldam.:Caldaia
Tipo Impianto:Radiatori
Fonte Energetica:Metano
Raffrescamento:Split
Infissi:Legno Doppio Vetro
Serramenti:Buono
Persiana:Persiana Legno
Pavim. Giorno:Parquet
Pavim. Notte:Parquet
Pavim. Cucina:Ceramica
Pavim. Bagno:Ceramica
Accessori: Aria Condizionata, Doppi Vetri, Lavanderia, Porta Blindata, Ripostiglio

Mappa

PIAZZA FONTANA, 3 - 22012 Cernobbio CO
Cookie preference