AMPIO E LUMINOSO TRILOCALE CON BALCONE

Como
(Borghi)

605.000 EUR

AMPIO E LUMINOSO TRILOCALE CON BALCONE (Rif. C-67-8-V)

A pochi passi dal centro storico di Como, questo trilocale al secondo piano si inserisce in un complesso residenziale che unisce l'affascinante tradizione storica con il comfort della modernità. L’edificio, un tempo sede della storica "Casa dei Filati", è stato oggetto di un attento progetto di ristrutturazione e riqualificazione energetica in Classe A, che ha preservato la struttura originale e integrato soluzioni tecnologiche avanzate, garantendo un comfort abitativo ottimale.

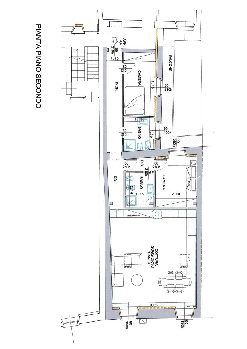
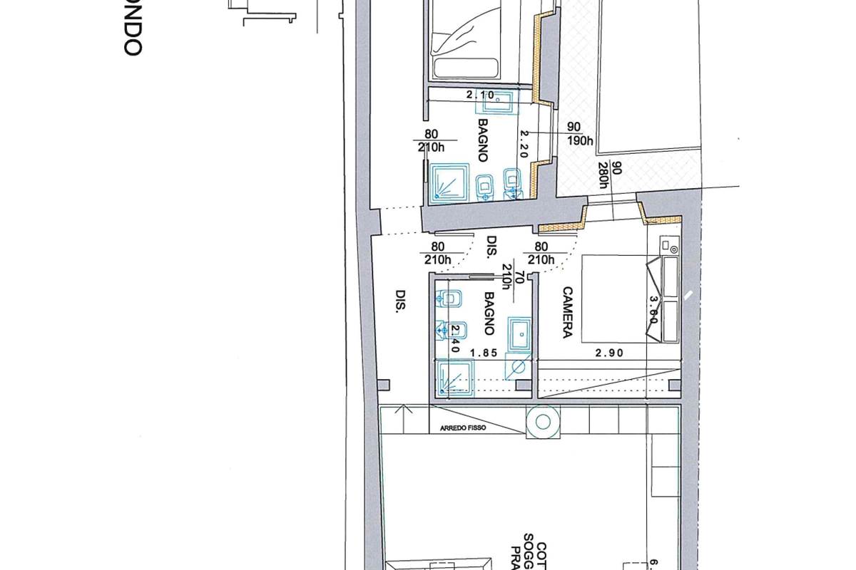
L’appartamento elegante e caratteristico per la copertura in legno a vista , si sviluppa in modo funzionale e luminoso ed essendo all'interno della corte gode di tranquillità e silenzio. L’ingresso conduce a un ampio soggiorno con cucina a vista, perfetto per momenti di convivialità. La zona notte comprende due camere da letto spaziose, con affaccio diretto su di un balcone, mentre i due bagni, rifiniti con materiali di alta qualità, offrono il massimo comfort.

Il complesso residenziale è dotato di finiture di pregio, impianti ad alta efficienza energetica e soluzioni moderne, mantenendo sempre il rispetto per il contesto storico. Inoltre, l’appartamento viene venduto con un INTERIOR PACK che include arredi selezionati, studiati per rispecchiare uno stile moderno e funzionale, con la possibilità di personalizzare alcune finiture a seconda dei gusti personali.

Disponibilità ripostigli privati, per una maggiore praticità.

Questa residenza è la soluzione ideale per chi cerca una casa elegante e moderna nel cuore di Como, a pochi passi dalle meraviglie storiche della città, in una zona centrale ma tranquilla.




Città:Como
Prezzo:605.000 EUR
Classe:A1 (200 [kWh/m²a])
Locali:3
Camere:2
Bagni:2
Balconi:1
Metri quadri:119,5
Anno costruzione:1920
Anno ristrutturazione:2025
Stato Immobile:Ristrutturato
Grado:Signorile
Posizione:Centro
Panorama:Vista Aperta
Piano:Secondo
Totale Piani:Tre
Lati Liberi:3
Giardino:No
Arredi:Arredato a Nuovo
Tipo Soggiorno:Soggiorno
Tipo Cucina:A Vista
Riscaldamento:Autonomo
Tipo Riscaldam.:Pompa di Calore
Tipo Impianto:Pavimento
Fonte Energetica:Elettrico
Acqua Calda:Autonoma
Raffrescamento:Predisposizione
Infissi:Legno Triplo Vetro
Serramenti:Nuovo
Persiana:Persiana Legno
Pavim. Giorno:Parquet
Pavim. Notte:Parquet
Pavim. Cucina:Moquette
Pavim. Bagno:Ceramica
Accessori: Aria Condizionata, Ascensore, Cancello Elettrico, Doppi Vetri, Impianto Satellitare, Passaggio Automobilistico, Passaggio Pedonale, Porta Blindata, Rete Dati, Video Citofono

Mappa

Via Milano, 51 - 22100 Como CO

Video

Cookie preference