Como Sagnino, trilocale ultimo piano e box

Como

160.000 EUR

Como Sagnino, trilocale ultimo piano e box (Rif. 036)

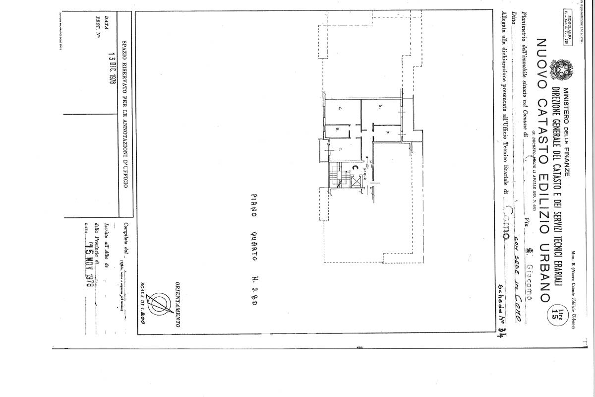
Vendesi in Sagnino, via Quasimodo, appartamento trilocale con ingresso, salone, due camere matrimoniali, cucina abitabile, bagno e due balconi.
L'immobile è sito all'ULTIMO PIANO di bella palazzina con facciate perfettamente ristrutturate, ascensore e tetto recentemente revisionati e funzionali. Nessuna barriera architettonica.
Elegante la struttura, internamente invece sono necessari alcuni lavori di ammodernamento.
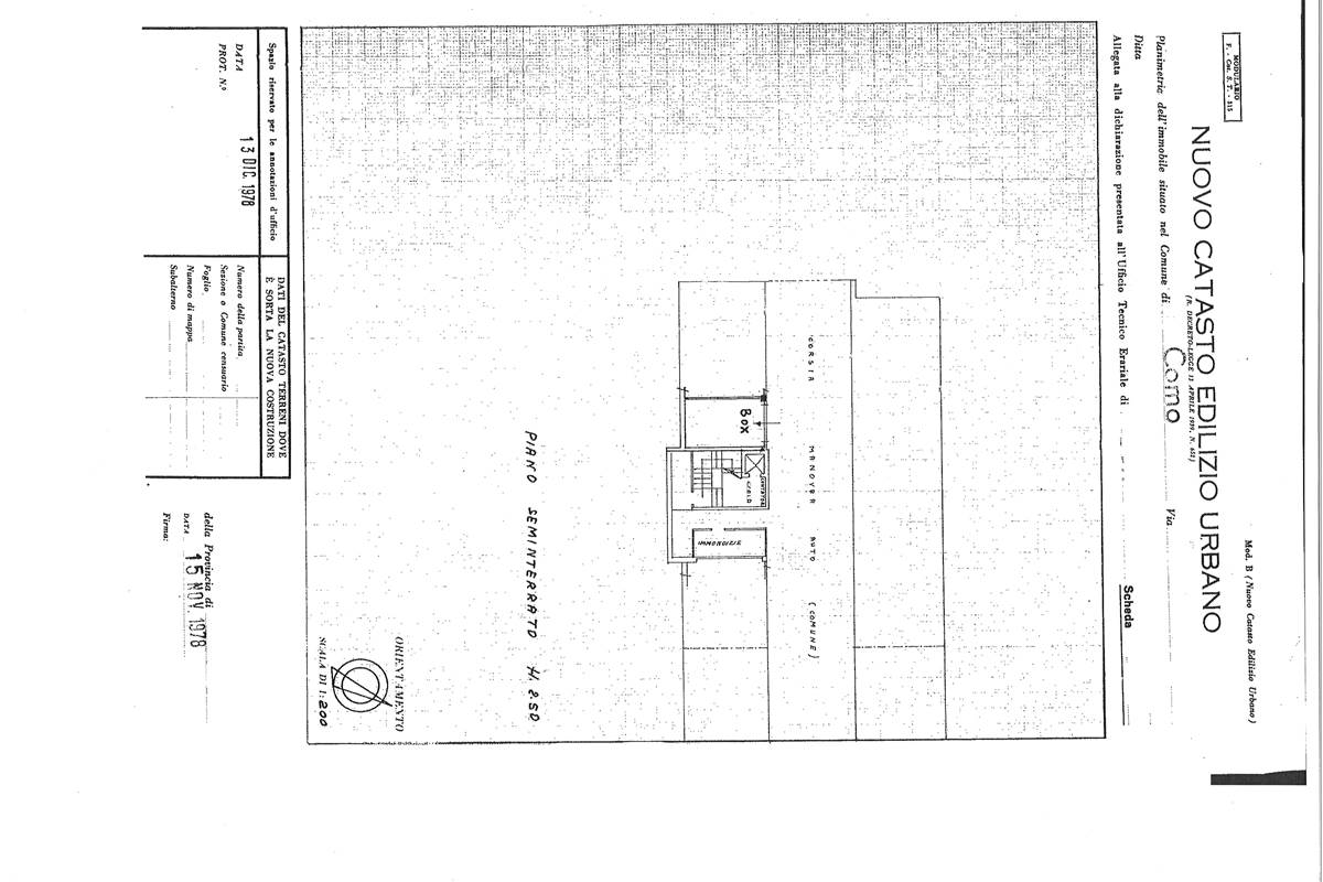
completa la proprietà un box singolo di buone dimensioni.
classe energetica G kwh/mqa 231,57
Euro 160.000,00
alius casa ....valori che restano
Città:Como
Prezzo:160.000 EUR
Spese condominiali:2.700 EUR / anno
Classe:G (231,57)
Locali:3
Camere:2
Camere doppie:2
Bagni:1
Balconi:2
Box:1
Metri quadri:91
Mq Box:18
Anno costruzione:1978
Stato Immobile:Da Ristrutturare
Grado:Signorile
Piano:Quarto
Totale Piani:Quattro
Lati Liberi:2
Giardino:Comune
Arredi:Non Arredato
Tipo Soggiorno:Soggiorno
Tipo Cucina:Abitabile
Riscaldamento:Centralizzato
Tipo Riscaldam.:Caldaia a Condensazione
Tipo Impianto:Radiatori
Fonte Energetica:Metano
Acqua Calda:Centralizzata
Infissi:Alluminio
Serramenti:Discreto
Persiana:Tapparella PVC
Pavim. Giorno:Ceramica
Pavim. Notte:Ceramica
Pavim. Cucina:Ceramica
Pavim. Bagno:Ceramica
Accesso Disabili:Nessuna Barriera
Accesso interno disabili:Pieno accesso
Accessori: Ascensore, Bagno Handicap, Porta Blindata
Cookie preference