Bilocale arredato con giardino box e posto auto

Cantù

750 EUR

Bilocale arredato con giardino box e posto auto (Rif. A001596)

Cantù, zona Pianella, si propone in locazione signorile bilocale nuovo, modernissimo e COMPLETAMENTE ARREDATO, con giardino ad uso esclusivo e possibilità di ampio box singolo e posto auto scoperto.
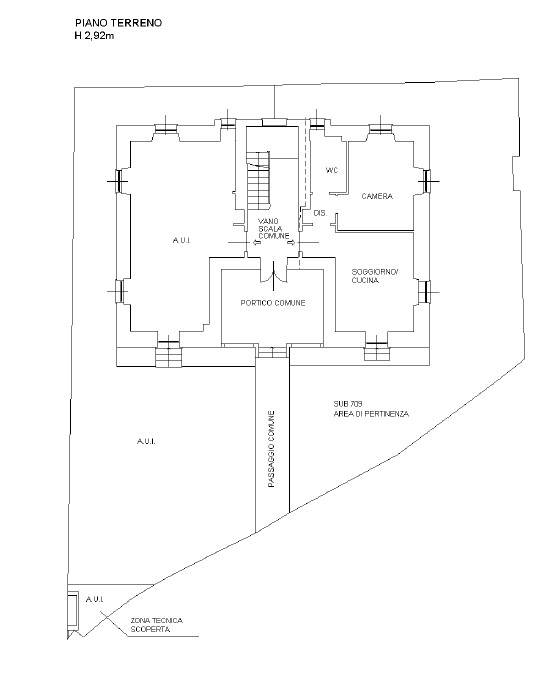
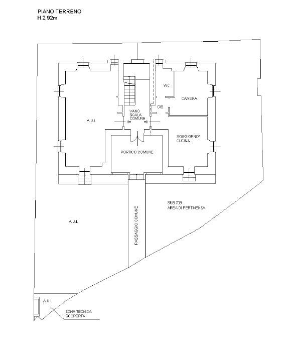
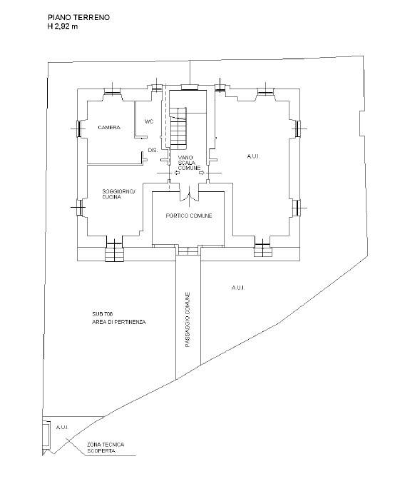
La soluzione proposta si colloca a piano terreno di una villa dei primi del Novecento completamente ristrutturata e portata ad alti livelli di comfort abitativo. Il bilocale offre una zona giorno open space con angolo cottura e uscita diretta sul giardino, disimpegno zona notte, bagno con antibagno e camera matrimoniale. Finiture di pregio e moderne: cappotto, riscaldamento a pavimento, serramenti con vetrocamera in PVC di ultima generazione e apertura a ribalta, persiane scorrevoli e orientabili in metallo, videocitofono, impianto di riscaldamento semiautonomo con centrale termica, composto da pompa di calore e caldaia a condensazione (con contabilizzazione del calore e dell’acqua calda sanitaria per i consumi individuali).L’impianto fotovoltaico con batterie di accumulo da 10 kWh e il solare termico composto da pannelli con bollitore da 800 l. ottimizzano i consumi di questo contesto ad elevata prestazione energetica A4. Spese condominiali molto esigue.
Completa l’offerta un comodo box singolo a Eu 150,00 mensili o un posto auto scoperto a Eu 50,00 mensili (possibilità di locarli entrambi).
Disponibile a un mese dal ritiro della proposta.
Per salvaguardare la privacy del nostro venditore e al contempo poter dare la possibilità al futuro inquilino di poter individuare la zona di ubicazione dell’immobile, comunichiamo che l’indirizzo citato è puramente indicativo.
Città:Cantù
Prezzo:750 EUR
Classe:A4
Locali:2
Camere:1
Bagni:1
Metri quadri:60
Anno costruzione:2023
Stato Immobile:Nuovo
Grado:Signorile
Posizione:Centro
Panorama:Vista Giardino
Orientamento:Nord Est Sud
Lati Liberi:2
Giardino:Privato
Arredi:Arredato
Tipo Soggiorno:Soggiorno
Tipo Cucina:Angolo Cottura
Riscaldamento:Autonomo
Tipo Riscaldam.:Caldaia
Tipo Impianto:Pavimento
Fonte Energetica:Fotovoltaico
Acqua Calda:Autonoma
Infissi:PVC Doppio Vetro
Serramenti:Nuovo
Persiana:Persiana Metallo
Pavim. Giorno:Gres Porcellanato
Pavim. Notte:Gres Porcellanato
Pavim. Cucina:Gres Porcellanato
Pavim. Bagno:Gres Porcellanato
Cauzione:Tre Mesi
Canoni Anticipati:Un Mese
Tipo Contratto:4+4 Anni
Tipo Registr.:Cedolare Secca
Accessori: Aria Condizionata, Cancello Elettrico, Doppi Vetri, Porta Blindata

Mappa

Via Maddalena - 22063 Cantù CO

Video

Cookie preference