Panoramicissimo bilocale

Cantù

780 EUR

Panoramicissimo bilocale (Rif. A000133)

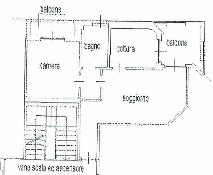
Cantù. Centralissimo – All’interno del Complesso Cantù Futura vicino al centro e a tutti i servizi di prima necessità ( Aldi, Tigotà, Iperal, Eurospin) e alla fermate degli autobus, proponiamo ottima soluzione di ampio bilocale al quarto piano orientato verso le montagne del lecchese e come si potrà certo intuire panoramicissimo. L’appartamento completamente arredato in maniera moderna si compone di : ingresso, sala, cucina separata, entrambe si affacciano sul terrazzino che permette anche di poter sistemare un tavolino e poter mangiare fuori nelle calde giornate d’estate, disimpegno dove si può alloggiare la lavatrice, bagno, camera da letto con balconcino di servizio. Completa l’appartamento la cantina e il box molto spazioso per moto e biciclette e un’ampio parcheggio libero, non a pagamento, che permette di sistemare all’occorrenza la seconda macchina . Videocitofono, serramenti in alluminio della schoko a taglio termico e un arredamento nuovo e moderno creano l’ambiente ideale per le giovani coppie T.autonomo. Libero e disponibile da subito pronto per essere abitato.

- Ci dispiace ma per questo appartamento non possiamo ospitare animali domestici.

NOTA: Si avvertono i Signori clienti che gli indirizzi inseriti all'interno dell'annuncio sono indicativi e non rispecchiano la realtà. Questa, vuole essere un ausilio nell'indicazione della zona pur rispettando la Privacy dei venditori. Ulteriori chiarimenti possono essere forniti presso la nostra sede o telefonicamente.


TUTTE LE INFO IN AGENZIA! Venite a trovarci in agenzia, il nostro personale esperto e qualificato vi aiuterà a trovare l'immobile giusto per le vostre esigenze. Offriamo anche consulenza finanziaria con mediatori creditizi abilitati, e preventiva verifica catastale e urbanistica con tecnici professionisti
Città:Cantù
Prezzo:780 EUR
Classe:E
Locali:2
Camere:1
Posti letto:2
Bagni:1
Balconi:1
Terrazzi:1
Box:1
Metri quadri:60
Mq calpestabili:55
Mq cantina:2
Mq Box:14
Mq Balcone:3
mq Terrazzo:9
Anno costruzione:2003
Anno ristrutturazione:2020
Life Style:Friendly
Stato Immobile:Ottimo
Grado:Medio
Posizione:Centro
Panorama:Vista Monti
Orientamento:Sud Est
Lati Liberi:2
Giardino:No
Arredi:Arredato
Tipo Soggiorno:Salone
Tipo Cucina:Abitabile
Riscaldamento:Autonomo
Tipo Riscaldam.:Caldaia
Tipo Impianto:Radiatori
Fonte Energetica:Metano
Acqua Calda:Autonoma
Raffrescamento:No
Infissi:Alluminio Doppio Vetro
Serramenti:Buono
Persiana:Tapparella PVC
Pavim. Giorno:Ceramica
Pavim. Notte:Ceramica
Pavim. Cucina:Ceramica
Pavim. Bagno:Ceramica
Cauzione:Tre Mesi
Canoni Anticipati:Un Mese
Tipo Contratto:3+2 Anni
Cantina - Solaio:Cantina
Accesso Disabili:Nessuna Barriera
Accesso interno disabili:Pieno accesso
Tipo Registr.:Cedolare Secca
Isolamento:Presente
Isolamento termico:Nessuno
Isolamento acustico:Nessuno
Destinato a residenti:Si
Accessori: Ascensore, Cancello Elettrico, Doppi Vetri, Impianto Satellitare, No Animali, Parco Condominiale, Porta Blindata, Ripostiglio, Video Citofono

Mappa

Via Verona, 8 - 22063 Cantù CO

Video

Cookie preference