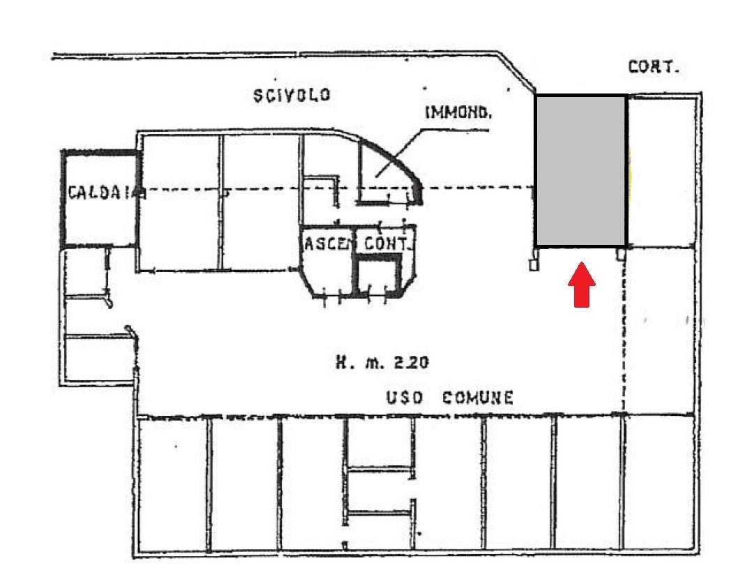
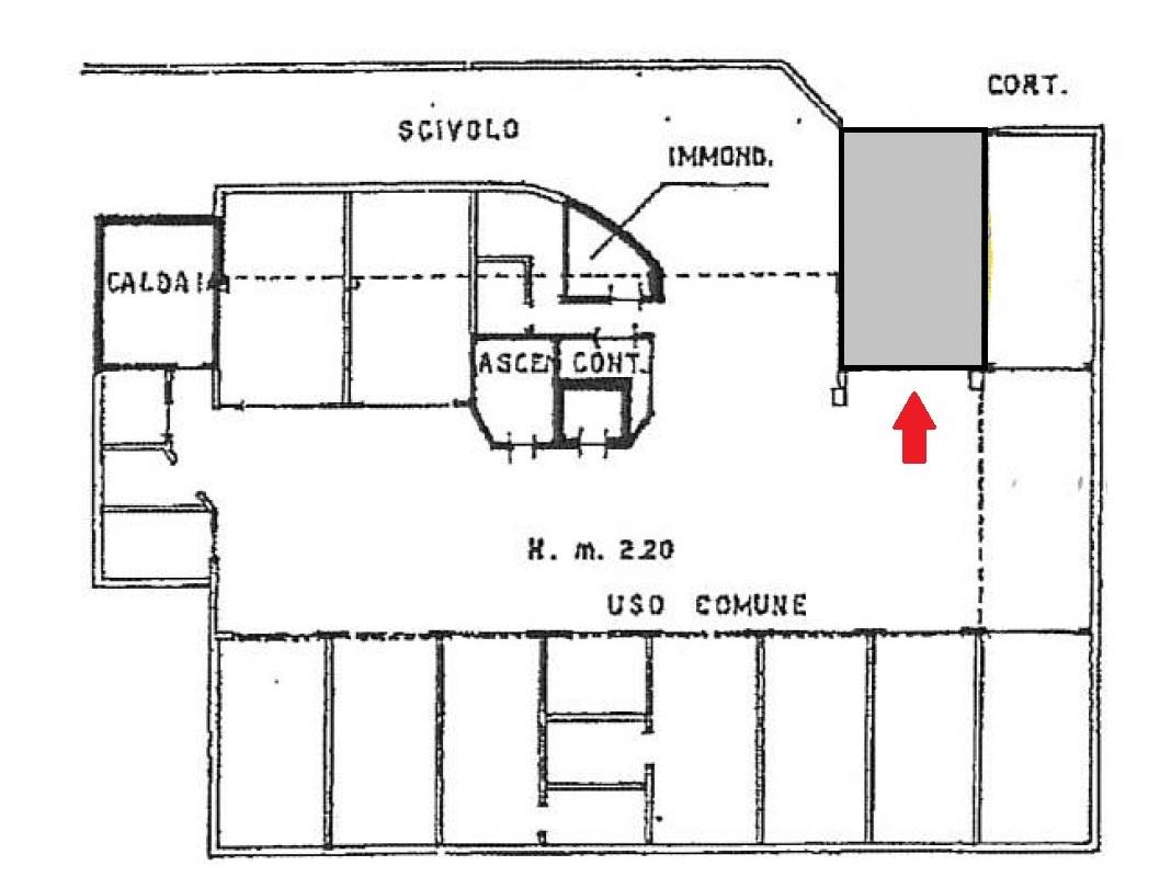
Garage In Vendita a Nova Milanese

Nova Milanese

20.000 EUR

Garage In Vendita a Nova Milanese (Rif. boxNova)

Nova Milanese : in palazzina proponiamo autorimessa singola di 19 mq
Libero subito
Città:Nova Milanese
Prezzo:20.000 EUR
Classe:Non classificabile
Locali:1
Metri quadri:19
Piano:Interrato

Mappa

via Trento - 20834 Nova Milanese MB
Cookie preference