BAR-TABACCHI-EDICOLA-LOTTO-SUPER ENALOTTO

Como

160.000 EUR

BAR-TABACCHI-EDICOLA-LOTTO-SUPER ENALOTTO (Rif. V167)

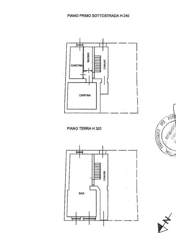
Como (CO): cedesi STORICA E BEN AVVIATA attività di BAR-TABACCHI-EDICOLA-LOTTO-SUPER ENALOTTO. Il locale è stato totalmente rinnovato nel 2019 e viene ceduto completamente attrezzato e con tutte le certificazioni impiantistiche. Dispone di circa venti coperti sia all’interno che all’esterno (quindi circa complessivi quaranta). L’area esterna, raccolta e confortevole, si presenta funzionale e comoda per le consumazioni al tavolo ed i fumatori. Al piano interrato, facilmente raggiungibile, ci sono: un comodo magazzino, bagno e spogliatoio. La posizione strategica di forte passaggio automobilistico e pedonale, quest’ultimo adiacente a fermata autobus, consente di avere clientela fissa ed occasionale tutti i giorni. I numerosi parcheggi sono displsti lungo i due lati della strada e nei dintorni. Ci troviamo a pochi minuti a piedi dal centro città, Valduce, Ferrovie Nord, scuole, negozi, uffici, locali di vario interesse,…
Certificazione di Attestazione Energetica in fase di preparazione
Prezzo € 160.000,00 Rif. V. 167.
Città:Como
Prezzo:160.000 EUR
Spese condominiali:50 EUR / anno
Classe:Fase di valutazione
Locali:1
Bagni:2
Metri quadri:50
Mq cantina:10
Anno costruzione:1960
Anno ristrutturazione:2019
Stato Immobile:Buono
Grado:Medio
Posizione:Centro
Orientamento:Nord Est
Totale Piani:Due
Lati Liberi:2
Arredi:Arredato
Riscaldamento:Autonomo
Tipo Riscaldam.:Pompa di Calore
Tipo Impianto:Aria
Fonte Energetica:Elettrico
Acqua Calda:Autonoma
Raffrescamento:Split
Infissi:Metallo Doppio Vetro
Serramenti:Buono
Persiana:Tapparella Metallo
Pavim. Bagno:Ceramica
Pavimento:Laminato
Numero Vetrine:Due
Cantina - Solaio:Cantina
Accessori: Antifurto, Aria Condizionata, Doppi Vetri, Locale Fumatori, Passaggio Automobilistico, Passaggio Pedonale, Rete Dati, Ripostiglio, Tavolini Esterni

Mappa

dottesio, 12 - 22100 Como CO

Video

Cookie preference