TAVERNERIO TRILOCALE IN CASA BIFAMILIARE

Tavernerio

135.000 EUR

TAVERNERIO TRILOCALE IN CASA BIFAMILIARE (Rif. V031_2p)

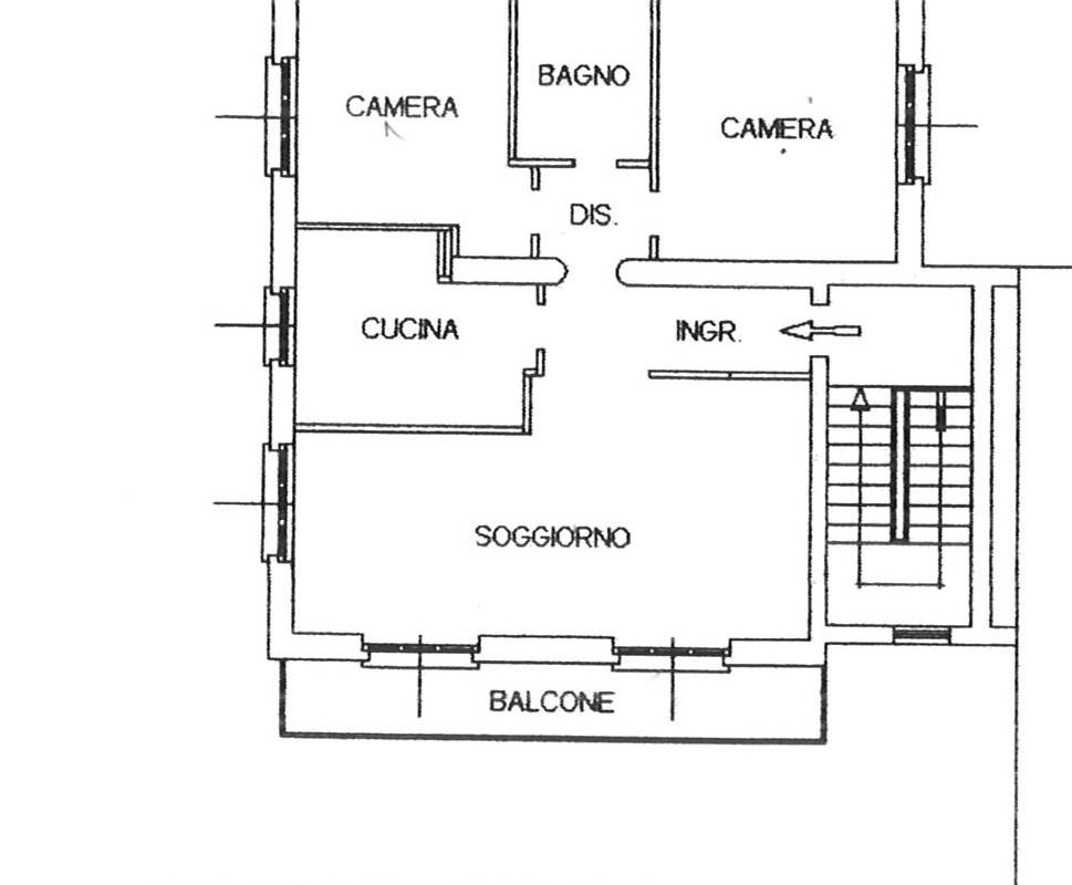
TAVERNERIO TRILOCALE IN CASA BIFAMILIARE: proponiamo in porzione di casa composta da 2 appartamenti ampio trilocale al piano secondo con cantina e posto auto di proprietà (no box) composto da: ingresso, soggiorno con balcone, cucina abitabile, disimpegno, 2 camere con balcone, bagno. Riscaldamento autonomo. Classe energetica "E" EP gl, nren 145,34 kwh/m2anno
€. 135.000,00
possibilità acquisto dell'appartamento al piano primo composto da 3 vani, bagno, balcone con cantina e posto auto, SOLUZIONE IDEALE PER 2 FAMIGLIE!
Città:Tavernerio
Prezzo:135.000 EUR
Classe:E (145,34 [kWh/m²a])
Locali:3
Camere:2
Bagni:1
Balconi:2
Posti auto:1
Metri quadri:100
Mq Balcone:18
Piano:Secondo
Totale Piani:Due
Lati Liberi:4
Tipo Soggiorno:Soggiorno
Tipo Cucina:Abitabile
Tipo Impianto:Radiatori
Fonte Energetica:Metano

Mappa

VIA PROVINCIALE , 50 - 22038 Tavernerio CO

Video

Cookie preference