Ottima VILLA BIFAMIGLIARE a Lomazzo

Lomazzo

430.000 EUR

Ottima VILLA BIFAMIGLIARE a Lomazzo (Rif. V002789)

Lomazzo villa singola NUOVA con una superficie di 115 metri quadrati, questa villa bifamiliare offre tutto lo spazio che cerchi per vivere in modo confortevole.
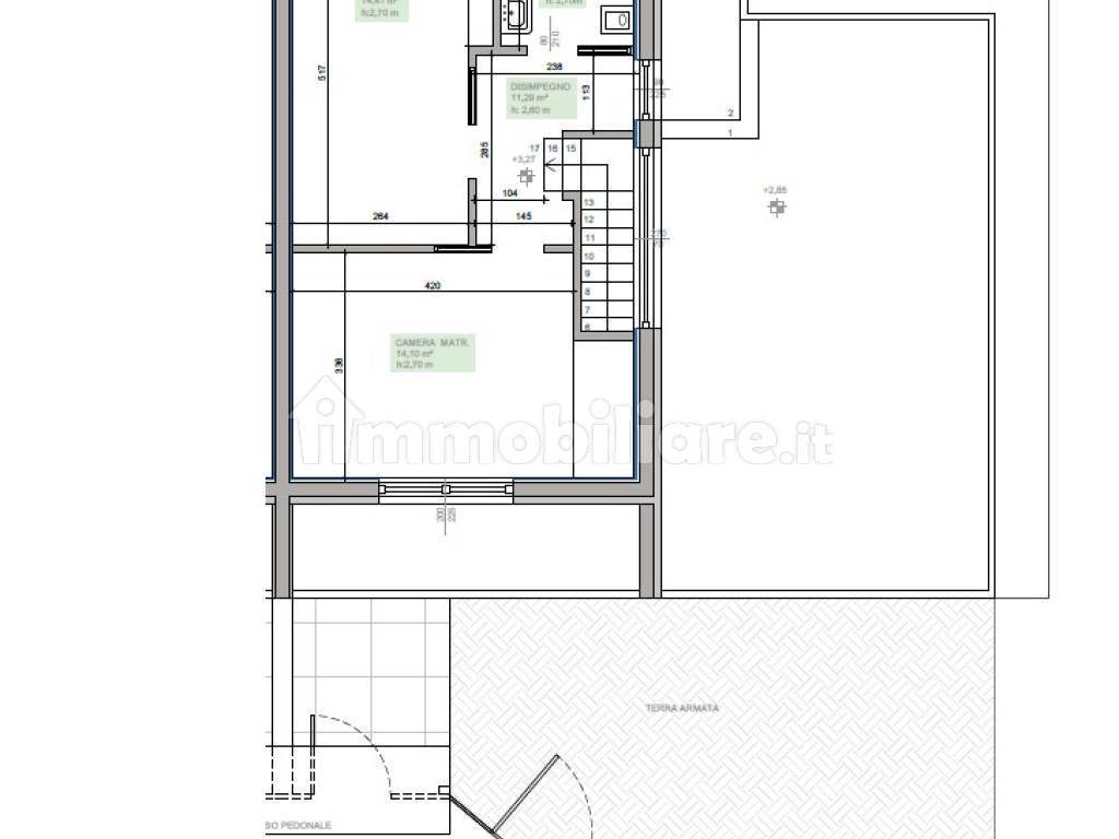
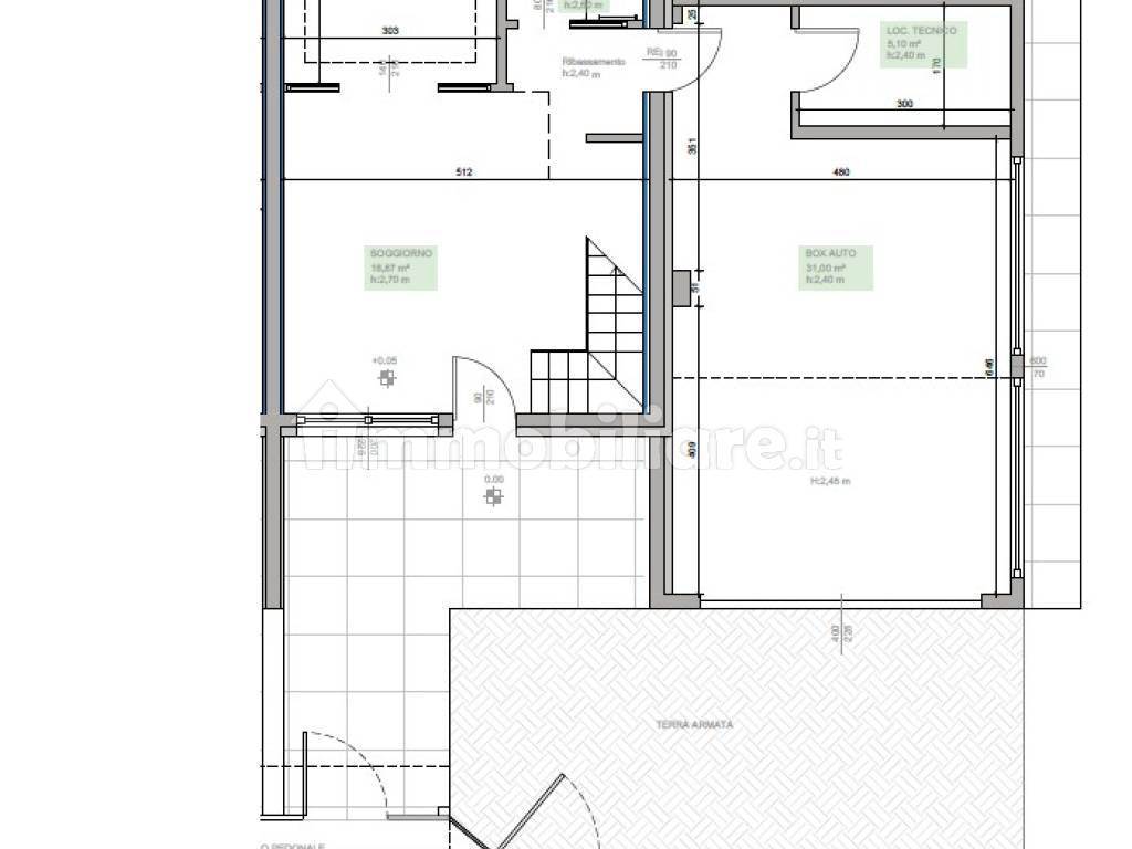
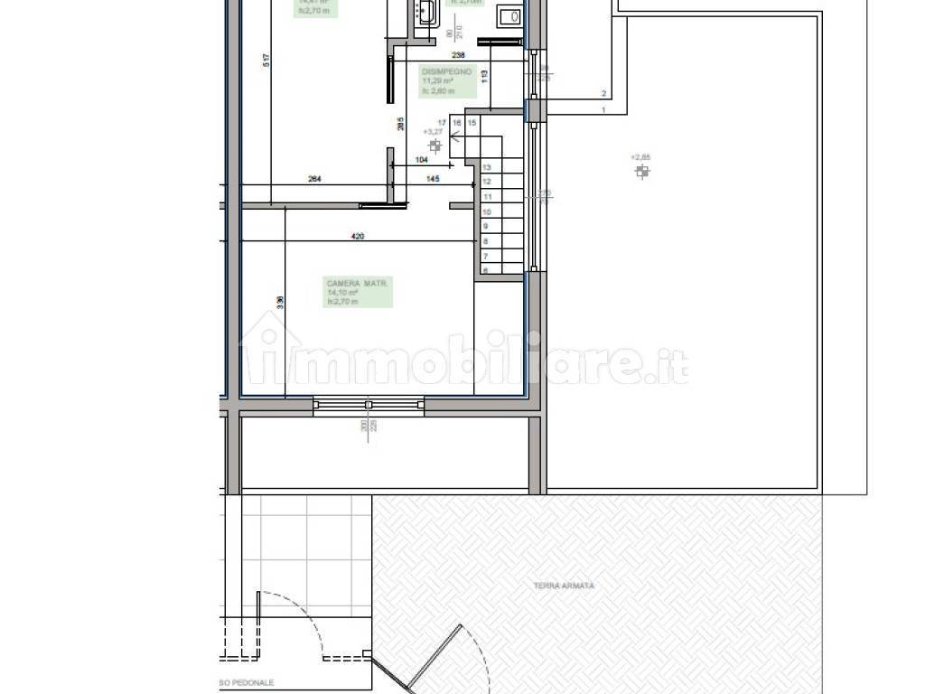
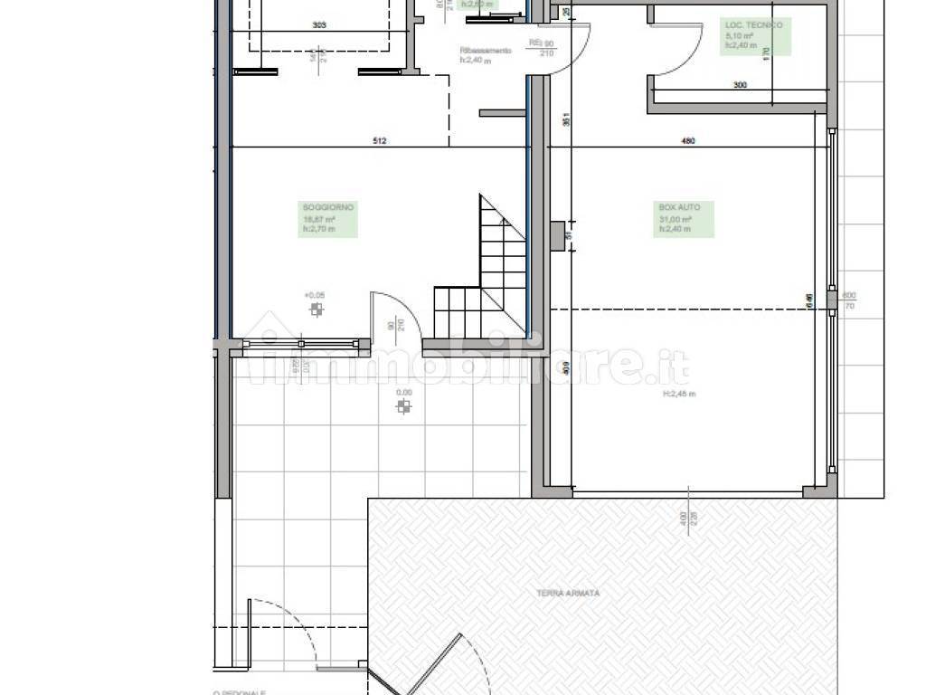
La villa è composta da due piani, con un ingresso accogliente, un soggiorno luminoso, una cucina pratica e funzionale, un bagno e un box doppio al piano terra. Al piano primo, troverai due camere spaziosi, un bagno e due balconi con vista sul giardino. E non dimenticare il terrazzo di 27 metri quadrati, il posto perfetto per godersi il tramonto o prendere un caffè al mattino.
Ma non è tutto! La villa è dotata di un impianto di riscaldamento a pavimento con pompa di calore, che garantisce un comfort ottimale durante tutto l'anno. E per ridurre i costi energetici, la villa è equipaggiata con un impianto di fotovoltaico da 6 kW, con predisposizione per batteria.
Il giardino di 142 metri quadrati è il posto perfetto per rilassarsi e godersi il tempo libero. E con la predisposizione per antifurto e aria condizionata, puoi sentirti al sicuro e confortevole nella tua nuova casa.
Il prezzo di questa villa è di 430.000€. Se sei interessato a questa proprietà, non esitare a contattarci per fissare un appuntamento e scoprire tutti i dettagli. Saremo felici di mostrarti la tua nuova dimora!
Contattaci oggi stesso per non perdere l'opportunità di vivere in questa bellissima villa singola nuova a Lomazzo!
Città:Lomazzo
Prezzo:430.000 EUR
Classe:A4
Locali:3
Camere:2
Bagni:2
Balconi:2
Terrazzi:1
Box:2
Posti auto:1
Metri quadri:115
Mq Box:31
Mq Giardino:145
Mq Balcone:20
mq Terrazzo:27
Anno costruzione:2025
Stato Immobile:Nuovo
Grado:Signorile
Posizione:Centro
Panorama:Vista Giardino
Piano:Piano Terra
Orientamento:Est Sud Ovest
Totale Piani:Uno
Lati Liberi:3
Giardino:Privato
Arredi:Non Arredato
Tipo Soggiorno:Soggiorno
Tipo Cucina:Abitabile
Riscaldamento:Autonomo
Tipo Riscaldam.:Pompa di Calore
Tipo Impianto:Pavimento
Fonte Energetica:Fotovoltaico
Acqua Calda:Autonoma
Raffrescamento:Predisposizione
Infissi:PVC Doppio Vetro
Serramenti:Nuovo
Persiana:Tapparella PVC
Pavim. Giorno:Gres Porcellanato
Pavim. Notte:Gres Porcellanato
Pavim. Cucina:Gres Porcellanato
Pavim. Bagno:Ceramica
Accesso Disabili:Nessuna Barriera
Accesso interno disabili:Parziale
Accessori: Cancello Elettrico, Doppi Vetri, Impianto Fotovoltaico, Lavanderia, Porta Blindata, Tapparelle Elettriche, Video Citofono

Mappa

Via Monte Generoso - 22074 Lomazzo CO

Video

Cookie preference