Villa di Testa libera su 3 lati !

Limido Comasco

395.000 EUR

Villa di Testa libera su 3 lati ! (Rif. V002109)

Luminosa e spaziosa villa in vendita nel Comune di Limido Comasco, provincia di Como, Italia. Situata in una zona residenziale tranquilla, la proprietà offre un ambiente accogliente e confortevole per tutta la famiglia. Con una superficie di 146 metri quadrati disposta su due livelli, la villa è composta da quattro vani ampi e ben distribuiti.
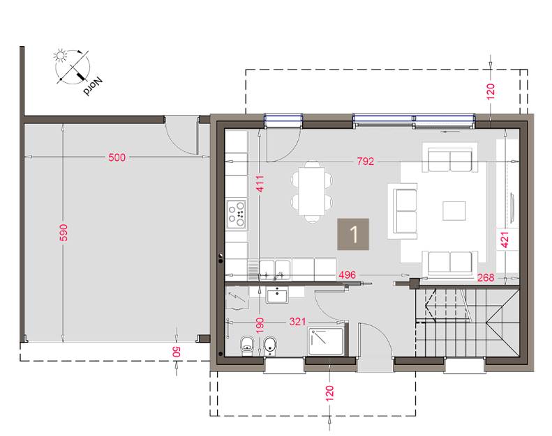
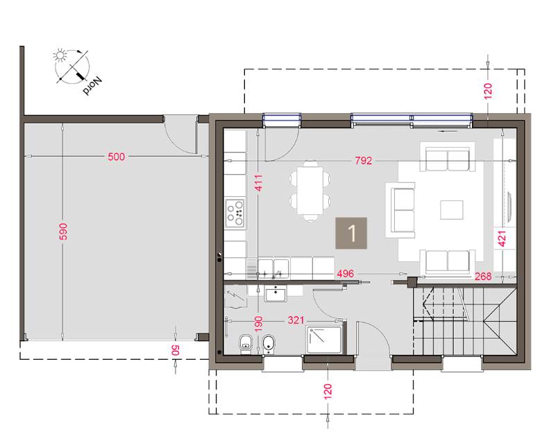
Al piano terra troviamo una ampia zona giorno con cucina a vista, un servizio completo ed un comodo ripostiglio sottoscala.
Al primo piano sono presenti due camerette, una camera matrimoniale, un servizio e due comodi balconi.
Il giardino privato è ben soleggiato ed il comodo box doppio in orizzontale garantisce comodamente il parcheggio di due auto. Di fronte all'immobile è disponibile un grande parcheggio per gli ospiti.

L'immobile è caratterizzato da un design moderno e finiture di alta qualità, con ampie vetrate che permettono la luce naturale di illuminare gli spazi interni. La classe energetica A3 garantisce un elevato livello di efficienza e risparmio energetico, rendendo la villa non solo elegante ma anche ecologicamente sostenibile.

All'esterno, un giardino privato circonda la proprietà, offrendo uno spazio ideale per momenti di relax e intrattenimento all'aria aperta. Il prezzo di vendita di 395.000 EURO rappresenta un ottimo investimento per chi cerca una casa di prestigio nella zona di Limido Comasco. Non perdere l'opportunità di acquistare questa splendida villa e vivere in un ambiente di lusso e comfort. Contattaci per ulteriori informazioni e per organizzare una visita.
Nello stesso contesto sono inoltre disponibili anche ville centrali e di testa a partire da Euro 360.000.
Città:Limido Comasco
Prezzo:395.000 EUR
Classe:A3 (10,15)
Locali:4
Camere:3
Bagni:2
Balconi:2
Box:2
Metri quadri:146
Mq Giardino:100
Anno costruzione:2025
Stato Immobile:In Costruzione
Grado:Medio
Posizione:Centro
Panorama:Vista Giardino
Piano:Piano Terra
Orientamento:Nord Ovest Sud
Lati Liberi:3
Giardino:Privato
Fonte Energetica:Fotovoltaico
Raffrescamento:Split
Infissi:PVC Doppio Vetro
Serramenti:Nuovo
Isolamento termico:Cappotto esterno
Accessori: Antifurto, Aria Condizionata, Cancello Elettrico, Doppi Vetri, Impianto Fotovoltaico, Impianto Satellitare, Passaggio Automobilistico, Passaggio Pedonale, Porta Blindata, Rete Dati, Ripostiglio, Veranda, Video Citofono

Mappa

via roma , 41 - 22070 Limido Comasco CO
Cookie preference