*** ULTIMA VILLA DISPONIBILE *** Residenza DANTE  (Rif. V002106)
										Non perdete questa occasione!! è rimasta una sola villa disponibile!!
Fenegrò (CO) Sei alla ricerca di una nuova Villa Singola con giardino privato completamente indipendente? Migliorcasa ha selezionato per Voi questo nuovo cantieri composto da CINQUE Nuove ville singole moderne di cui quattro già da noi vendute e consegnate,  costruite per durare nel tempo!! 
Realizzate  in Via Dante Alighieri, una delle zone più belle del Comune di Fenegrò.
In pochi minuti d’auto grazie al nuovo svincolo di Lomazzo Nord e Sud, sono raggiungibili diverse importanti città lombarde, Como ad esempio dista solo 15 km, Varese 20, Milano 20, e Lugano 26.
Inoltre nel più vicino Comune di Lomazzo a soli 3 Km è presente la Ferrovia Nord che permette di raggiungere il centro di Milano in soli 25 minuti.
Sarà costruita con i criteri più innovativi e dotate di riscaldamento a pavimento con pompa di calore e impianto fotovoltaico, in classe A.
Ogni Villa è così composta:
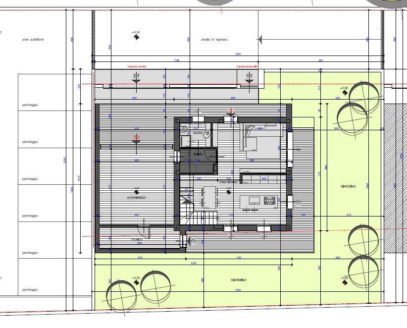
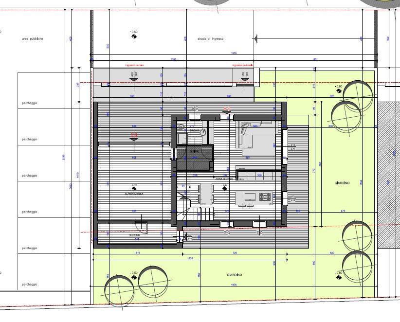
PIANO TERRA  ingresso, zona living soggiorno con cucina di 40 mq calpestabili!! , ed una cabina armadio e servizio completo,  da entrambi i locali si accede al dehor esterno fronte sud dove troviamo un patio coperto. Al piano terra è inoltre presente un box doppio ed un locale tecnico/lavanderia.
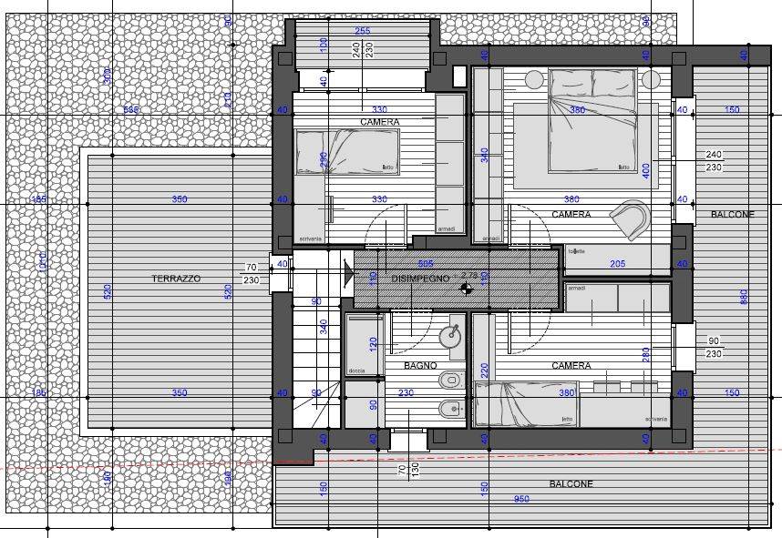
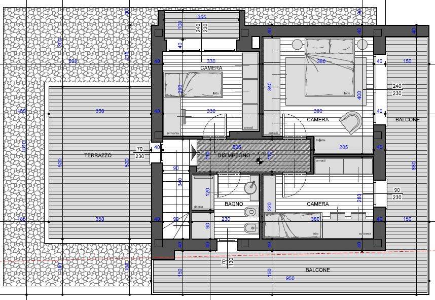
PIANO PRIMO CON SOFFITTI LINEARI (no mansarda) troviamo una camera matrimoniale di 15 mq , una seconda camera di 11 mq, e ulteriore cameretta di 10 mq  ed un servizio completo (tutte misure calpestabili!!) . Da tutte le camere si accede su un ampio balcone che circonda l'intero piano fino a raggiungere un bellissimo terrazzo di 18 mq.
INTERRATO SU RICHIESTA realizzato con taverna, lavanderia e cavedio;
ACCESSORI: giardino privato, box doppio , n° 2 posti auto  privati per ospiti / visitatori, sottotetto utilizzabile come ampio ripostiglio collegato tramite scala retrattile.
Ogni villa include ingresso pedonale e carraio completamente autonomo, rivestimenti esterni con inserti in DECO (materiale composito effetto legno) , rivestimento del muro esterno in pietra , pregiati serramenti in pvc doppio vetro con tapparelle motorizzate, parquet nella zona notte,  impianto tv satellitare indipendente, luci esterne d'arredo, predisposizione climatizzatore nella zona giorno e notte, cancello carraio motorizzato, fossa biologica e pozzo accumulo acque meteoriche per ciascuna villetta, impianto fotovoltaico con pannelli europei da 3Kw compreso nel prezzo, impianto di riscaldamento con pompa di calore, acqua calda sanitaria con pannelli solari termici e molto altro... STOP ALLE BOLLETTE DEL GAS !!
Vi invitiamo nel nostro ufficio per cogliere con mano questa offerta immobiliare .
Abbiamo inoltre la possibilità di farvi visitare case simili realizzate dalla stessa impresa e già consegnate al fine di toccare con mano l'elevata qualità di questo cantiere.
Consegna entro 12 mesi dalla prenotazione, valutiamo eventuali permute del vostro usato.
Questo cantiere è proposto in esclusiva commerciale da Migliorcasa di Lauro Massimo, il lusso di potersi fidare
										
										
											
												Città:Fenegrò
Prezzo:440.000  EUR
Classe:A (20,1 [kWh/m²a])
Locali:4
Camere:3
Camere doppie:2
Camere singole:1
Bagni:3
Balconi:2
Terrazzi:1
Box:2
Posti auto:1
Metri quadri:197
Mq Box:25
Mq Giardino:380
Anno costruzione:2025
Stato Immobile:In Costruzione
Grado:Signorile
Panorama:Vista Aperta
Totale Piani:Due
Giardino:Privato
Tipo Cucina:Abitabile
Tipo Riscaldam.:Pompa di Calore
Tipo Impianto:Pavimento
											 
											
											
											
												Accessori: Doppi Vetri, Impianto Fotovoltaico, Impianto Satellitare, Pannelli Solari, Porta Blindata, Veranda, Video Citofono
											 
											
											
										 
										
											Mappa
			via dante alighieri, 10 - 22070 Fenegrò CO