3 locali con grande giardino privato

Lomazzo

228.000 EUR

3 locali con grande giardino privato (Rif. V002105)

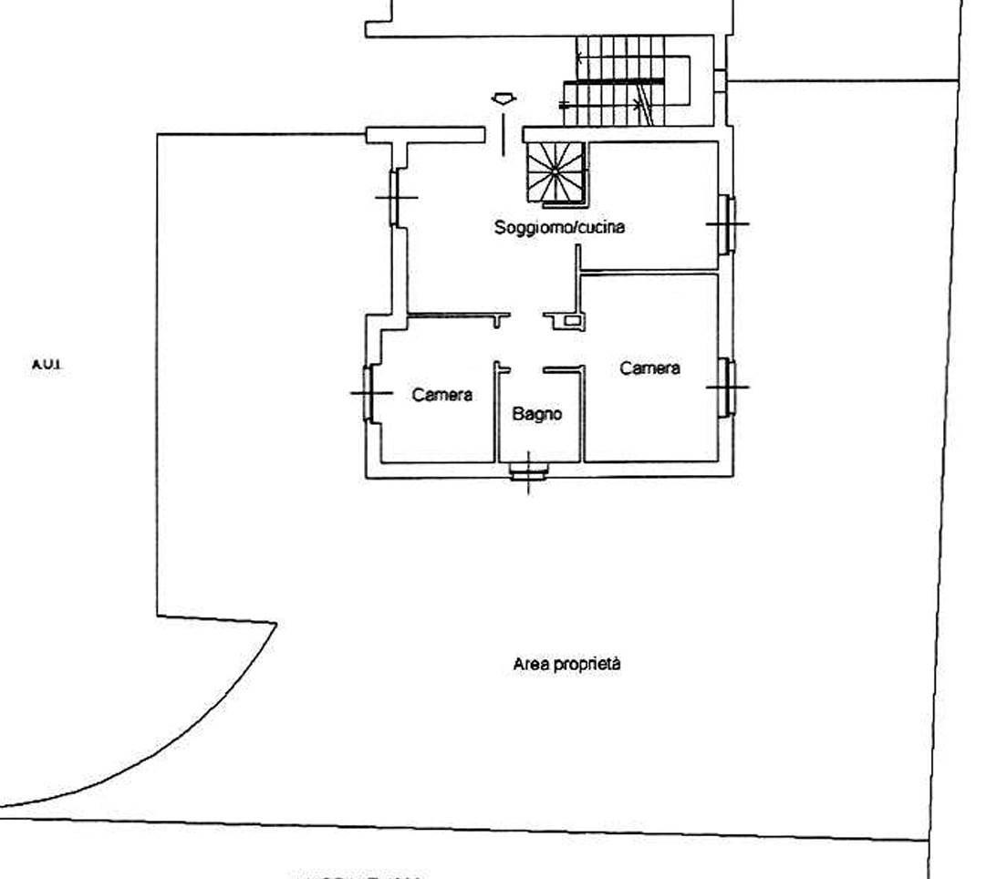
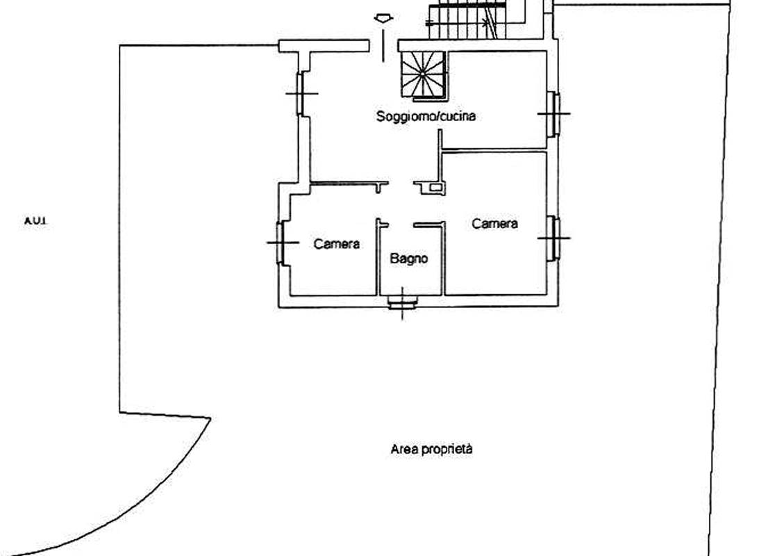
L'appartamento in vendita nel comune di Lomazzo, situato al piano terra, offre un'ottima soluzione abitativa , in piccola palazzina di sole quattro famiglie ed è composto da tre locali, per un totale di 88 metri quadrati. L'immobile si presenta in ottimo stato esternamente con rifiniture in mattoncino a vista ed è stato riammodernato recentemente al suo interno.

La zona giorno è composta da un soggiorno luminoso e una cucina abitabile attualmente parzialmente a vista sul soggiorno, mentre la zona notte dispone di due camere da letto spaziose e ben illuminate ed un servizio con doccia.
Al piano interrato raggiungibile con scala in legno troviamo un locale da adibire a studio/taverna ed una comoda lavanderia.

L'appartamento è dotato di riscaldamento autonomo a pavimento con caldaia a condensazione.
Fiore all'occhiello di questa soluzione è il grande giardino privato con esposizione su tre lati, sempre soleggiato.

La posizione strategica dell'immobile consente di raggiungere facilmente i principali servizi e le infrastrutture della zona, rendendolo una scelta ideale per chi desidera vivere in un contesto residenziale tranquillo e ben servito.

Possibilità di acquistare gli arredi attualmente presenti.

Questo immobile è proposto in esclusiva commerciale da Migliorcasa di Lauro Massimo "Il lusso di potersi fidare"!
Città:Lomazzo
Prezzo:228.000 EUR
Spese condominiali:800 EUR / anno
Classe:E (133,99)
Locali:3
Camere:2
Bagni:2
Box:2
Metri quadri:88
Mq Box:23
Mq Giardino:300
Anno costruzione:2009
Stato Immobile:Ottimo
Grado:Medio
Posizione:Periferia
Panorama:Vista Giardino
Piano:Piano Terra
Orientamento:Est Sud Ovest
Lati Liberi:3
Giardino:Privato
Arredi:Possibilità
Tipo Soggiorno:Soggiorno
Tipo Cucina:Abitabile
Riscaldamento:Autonomo
Tipo Riscaldam.:Caldaia
Tipo Impianto:Pavimento
Fonte Energetica:Gas
Raffrescamento:Split
Infissi:Legno Doppio Vetro
Serramenti:Ottimo
Persiana:Persiana Legno
Accessori: Antifurto, Aria Condizionata, Cancello Elettrico, Doppi Vetri, Impianto Satellitare, Lavanderia, Passaggio Automobilistico, Passaggio Pedonale, Porta Blindata, Rete Dati, Veranda, Video Citofono

Mappa

via del seprio, 65 - 22074 Lomazzo CO
Cookie preference