LOMAZZO MANERA NUOVO TRILOCALE PIANO PRIMO CON BOX

Lomazzo

135.000 EUR / trat.

LOMAZZO MANERA NUOVO TRILOCALE PIANO PRIMO CON BOX (Rif. V002014)

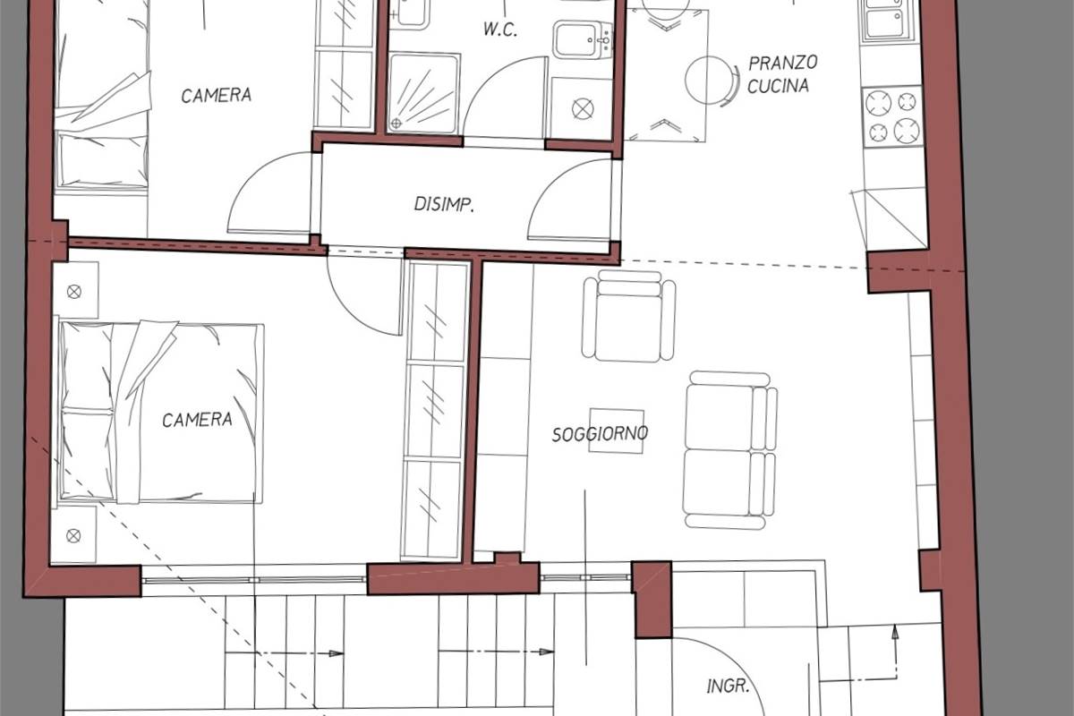
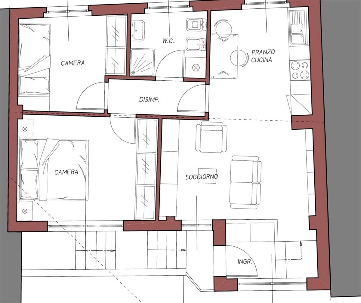
In contesto di corte tranquilla, proponiamo trilocale al piano primo attualmente in fase di ristrutturazione, completo di box. L’appartamento, caratterizzato da suggestive travi a vista, è situato in una posizione strategica e comoda con l’ingresso autostradale e la stazione, a soli 10 minuti da Saronno. L’immobile è termoautonomo, dotato di riscaldamento a pavimento con pompa di calore, ed è così composto: soggiorno con cucina a vista, due camere e bagno con un ripostiglio al piano terra. Ottima soluzione anche come investimento. Possibilità di scelta delle finiture. Certificazione energetica in fase di valutazione. Richiesta: €135.000,00 Per informazioni o appuntamenti: Oscar Colombo Immobiliare Canturina 3393686507

Il presente annuncio non costituisce alcun vincolo contrattuale e tutte le caratteristiche inerenti gli immobili pubblicati e le misure eventualmente rilevate o indicate devono considerarsi indicative.

Città:Lomazzo
Prezzo:135.000 EUR / trat.
Classe:Fase di valutazione
Locali:3
Camere:2
Camere doppie:1
Camere singole:1
Posti letto:4
Bagni:1
Balconi:1
Box:1
Metri quadri:85
Mq Box:18
Mq Balcone:6
Stato Immobile:In Costruzione
Grado:Economico
Posizione:Centro Storico
Panorama:Vista Aperta
Piano:Primo
Totale Piani:Uno
Lati Liberi:2
Tipo Soggiorno:Soggiorno
Tipo Cucina:A Vista
Riscaldamento:Autonomo
Tipo Riscaldam.:Pompa di Calore
Tipo Impianto:Pavimento
Fonte Energetica:Fotovoltaico
Acqua Calda:Autonoma
Infissi:PVC Doppio Vetro
Serramenti:Nuovo
Accesso Disabili:No
Accessori: Doppi Vetri, Impianto Fotovoltaico, Impianto Satellitare, Porta Blindata

Mappa

Via Roma - 22074 Lomazzo CO
Cookie preference