ALSERIO NUOVO TRILOCALE CON GIARDINO

Alserio

227.000 EUR

ALSERIO NUOVO TRILOCALE CON GIARDINO (Rif. V001990)

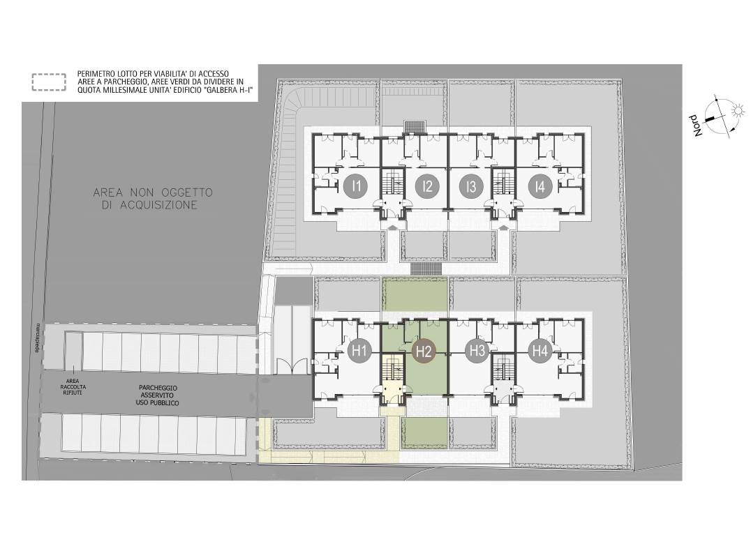
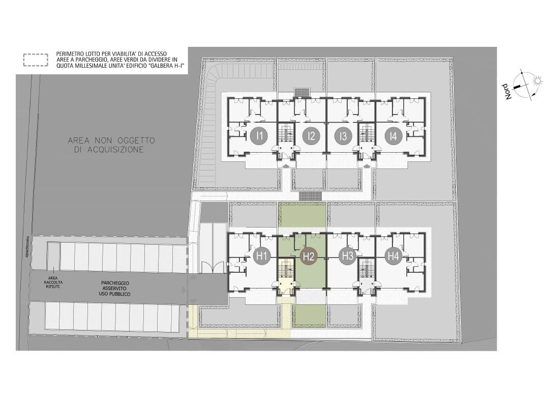
Nel cuore di Alserio, a pochi passi dal lago e inserito in un contesto centrale ma riservato e immerso nel verde, proponiamo un trilocale di nuova costruzione con giardino privato. L’appartamento, situato al piano terra, si distingue per la distribuzione razionale e moderna degli spazi: ampio soggiorno con angolo cottura affacciato sul portico coperto, due camere da letto, bagno e giardino di proprietà che garantisce privacy e vivibilità esterna tutto l’anno. Il portico diventa un naturale prolungamento della zona giorno, ideale per pranzi all’aperto, momenti di relax o per chi desidera uno spazio verde da vivere quotidianamente. La palazzina, in fase di costruzione, è progettata con particolare attenzione all’efficienza energetica e al comfort abitativo: riscaldamento a pavimento, pompa di calore, impianto fotovoltaico e pannelli solari. La certificazione A3. Ottimo capitolato con possibilità di personalizzazione delle finiture. Disponibilità di box auto. Una soluzione ideale per chi desidera vivere in un contesto moderno, sostenibile e a pochi passi dalla natura, senza rinunciare alla comodità dei servizi del centro. Richiesta Euro 227.000,00. Per informazioni o appuntamenti Oscar Colombo 3393686507!!!

Il presente annuncio non costituisce alcun vincolo contrattuale e tutte le caratteristiche inerenti gli immobili pubblicati e le misure eventualmente rilevate o indicate devono considerarsi indicative.
Città:Alserio
Prezzo:227.000 EUR
Classe:A3
Locali:3
Camere:2
Camere doppie:1
Camere singole:1
Posti letto:4
Bagni:1
Metri quadri:75
Mq Giardino:68
Anno costruzione:2026
Stato Immobile:In Costruzione
Grado:Signorile
Posizione:Centro
Panorama:Vista Giardino
Piano:Piano Terra
Totale Piani:Uno
Lati Liberi:2
Giardino:Privato
Tipo Soggiorno:Soggiorno
Tipo Cucina:Angolo Cottura
Riscaldamento:Autonomo
Tipo Riscaldam.:Pompa di Calore
Tipo Impianto:Pavimento
Fonte Energetica:Fotovoltaico
Acqua Calda:Autonoma
Infissi:PVC Doppio Vetro
Serramenti:Nuovo
Persiana:Oscurante Metallo
Accesso Disabili:Nessuna Barriera
Accesso interno disabili:Pieno accesso
Isolamento termico:Cappotto esterno
Isolamento acustico:Isolamento pareti
Accessori: Antifurto, Aria Condizionata, Doppi Vetri, Impianto Fotovoltaico, Impianto Satellitare, Pannelli Solari, Passaggio Pedonale, Porta Blindata, Tapparelle Elettriche, Tavolini Esterni, Video Citofono

Mappa

Via Cascina Galbera, 3 - 22040 Alserio CO
Cookie preference