OLTRONA SAN MAMETE PORZIONE DI CASA IN CORTE CON BOX

Oltrona di San Mamette

135.000 EUR / trat.

OLTRONA SAN MAMETE PORZIONE DI CASA IN CORTE CON BOX (Rif. V001960)

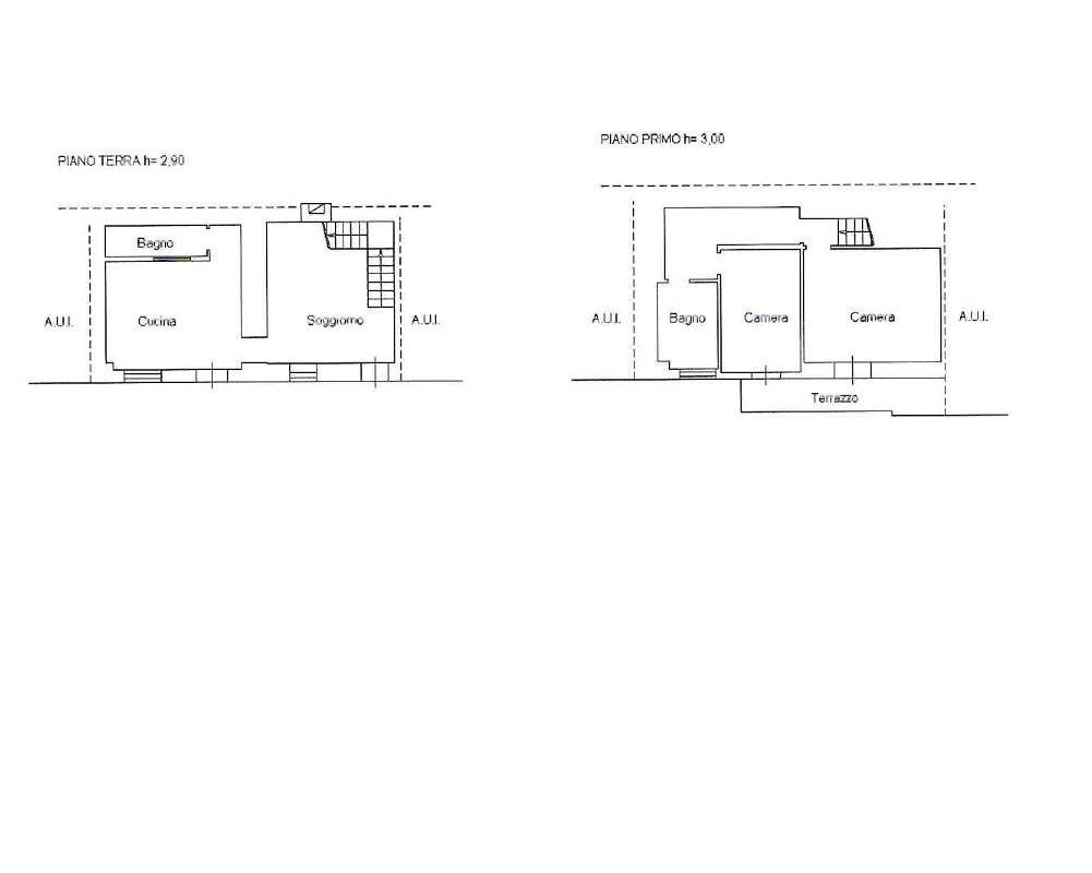
In tipico contesto di corte, proponiamo una porzione di casa su due livelli, ideale per chi desidera spazi generosi e ambienti ben distribuiti. Al piano terra troviamo: Luminoso soggiorno con scala a vista, cucina abitabile e bagno di servizio. Al primo piano, collegato da una scala interna, si sviluppa la zona notte composta da: camera matrimoniale con balcone, cameretta e secondo bagno. Incluso nella proprietà un grande box singolo con basculante elettrica. La Certificazione energetica è in fase di valutazione. Richiesta: € 135.000,00
📞 Per informazioni e appuntamenti: Oscar Colombo – 339 3686507
Il presente annuncio non costituisce alcun vincolo contrattuale e tutte le caratteristiche inerenti gli immobili pubblicati e le misure eventualmente rilevate o indicate devono considerarsi indicative.
Città:Oltrona di San Mamette
Prezzo:135.000 EUR / trat.
Classe:Fase di valutazione
Locali:3
Camere:2
Camere doppie:1
Camere singole:1
Posti letto:4
Bagni:2
Balconi:1
Box:1
Metri quadri:120
Mq solaio:60
Mq Box:22
Mq Balcone:6
Stato Immobile:Ottimo
Grado:Medio
Posizione:Centro Storico
Panorama:Vista Aperta
Lati Liberi:2
Arredi:Possibilità
Tipo Soggiorno:Soggiorno
Tipo Cucina:Abitabile
Riscaldamento:Autonomo
Tipo Riscaldam.:Caldaia a Condensazione
Tipo Impianto:Radiatori
Fonte Energetica:Metano
Acqua Calda:Autonoma
Infissi:PVC Doppio Vetro
Serramenti:Nuovo
Persiana:Persiana Legno
Pavim. Giorno:Ceramica
Pavim. Notte:Ceramica
Pavim. Cucina:Ceramica
Pavim. Bagno:Ceramica
Cantina - Solaio:Solaio
Accesso Disabili:Nessuna Barriera
Accesso interno disabili:Parziale
Appartamenti:Uno
Accessori: Camino, Doppi Vetri, Impianto Satellitare, Passaggio Pedonale, Porta Blindata, Tapparelle Elettriche, Zanzariere

Mappa

Via Cavour, 1 - 22070 Oltrona di San Mamette CO
Cookie preference