LENTATE SUL SEVESO NUOVO TRILOCALE CON BALCONE

Lentate sul Seveso

199.000 EUR

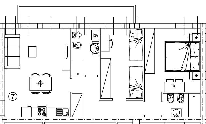
LENTATE SUL SEVESO NUOVO TRILOCALE CON BALCONE (Rif. V001932)

Nella località Camnago, in posizione strategica, comoda con la Milano-Meda e la nuova Pedemontana, proponiamo, al piano primo con ascensore, un trilocale con balcone composto da soggiorno cottura, camera matrimoniale con bagno padronale, cameretta e bagno. La palazzina in fase di ristrutturazione è disposta su due piani e dotata di ascensore e curata con attenzione ai dettagli. Include un ottimo capitolato: riscaldamento a pavimento con pompa di calore, impianto fotovoltaico e pannelli solari per un’efficienza energetica ottimale. Classe energetica A Possibilità di acquistare box singoli e doppi, posti auto e cantine. Richiesta Euro da € 199.000,00. Per maggiori informazioni su altre soluzioni o per fissare un appuntamento, non esitare a contattarci! Oscar Colombo 3393686507

VINCOLO CONTRATTUALE e tutte le caratteristiche inerenti gli immobili pubblicati e le misure eventualmente rilevate o indicate devono considerarsi indicative.

Città:Lentate sul Seveso
Prezzo:199.000 EUR
Classe:A
Locali:3
Camere:2
Camere doppie:1
Camere singole:1
Posti letto:1
Bagni:2
Balconi:1
Metri quadri:71
Mq Balcone:7
Anno costruzione:2025
Stato Immobile:In Costruzione
Grado:Signorile
Posizione:Periferia
Panorama:Vista Aperta
Orientamento:Nord Est Sud
Lati Liberi:1
Giardino:No
Tipo Soggiorno:Soggiorno
Tipo Cucina:Angolo Cottura
Riscaldamento:Autonomo
Tipo Riscaldam.:Pompa di Calore
Tipo Impianto:Pavimento
Fonte Energetica:Fotovoltaico
Acqua Calda:Autonoma a Pannelli
Infissi:PVC Triplo Vetro
Serramenti:Nuovo
Persiana:Tapparella PVC
Accesso Disabili:Nessuna Barriera
Accesso interno disabili:Pieno accesso
Isolamento:Presente
Isolamento termico:Cappotto esterno
Accessori: Antifurto, Aria Condizionata, Ascensore, Cancello Elettrico, Impianto Fotovoltaico, Impianto Satellitare, Pannelli Solari, Porta Blindata, Tapparelle Elettriche, Tavolini Esterni, Video Citofono

Mappa

Via xxiv Maggio, 2 - 20823 Lentate sul Seveso MB
Cookie preference