VILLA GUARDIA NUOVA BIFAMILIARE

Villa Guardia

425.000 EUR

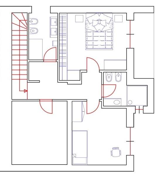
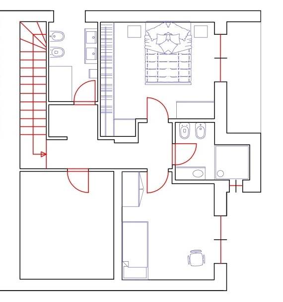
VILLA GUARDIA NUOVA BIFAMILIARE (Rif. V001931)

In una splendida zona residenziale immersa nel verde nella Località di Maccio, comoda per i collegamenti verso l’autostrada e la Svizzera, proponiamo una porzione di bifamiliare di nuova costruzione, realizzata con materiali e tecnologie di alta qualità. Composta al piano terra da ingresso, ampio soggiorno, cucina abitabile, bagno, giardino privato su tre lati; al piano primo (con eleganti travi a vista) da camera matrimoniale con balcone, spaziosa cameretta, ulteriore locale che può essere adibito a studio o terza camera e secondo bagno. Ottime finiture: riscaldamento a pavimento con pompa di calore, impianto fotovoltaico e pannelli solari per il massimo risparmio energetico. Possibilità di personalizzare le finiture per creare la casa su misura per te! Questa soluzione è ideale per chi cerca tranquillità, comfort e un contesto esclusivo, senza rinunciare alla comodità dei principali servizi e collegamenti. Richiesta Euro 425.000,00. CLASSE A Contattaci per ulteriori informazioni o per fissare una visita! Oscar Colombo 3393686507

Il presente annuncio non costituisce alcun vincolo contrattuale e tutte le caratteristiche inerenti gli immobili pubblicati e le misure eventualmente rilevate o indicate devono considerarsi indicative.

Città:Villa Guardia
Prezzo:425.000 EUR
Classe:A
Locali:4
Camere:4
Camere doppie:1
Camere singole:2
Posti letto:6
Bagni:2
Balconi:1
Box:1
Posti auto:1
Metri quadri:130
Mq Box:22
Mq Giardino:150
Mq Balcone:6
Anno costruzione:2025
Stato Immobile:In Costruzione
Grado:Signorile
Posizione:Periferia
Panorama:Vista Giardino
Lati Liberi:3
Giardino:Privato
Tipo Soggiorno:Soggiorno
Tipo Cucina:Abitabile
Riscaldamento:Autonomo
Tipo Riscaldam.:Pompa di Calore
Tipo Impianto:Pavimento
Fonte Energetica:Fotovoltaico
Acqua Calda:Autonoma a Pannelli
Infissi:PVC Triplo Vetro
Serramenti:Nuovo
Persiana:Oscurante Metallo
Accesso Disabili:Nessuna Barriera
Accesso interno disabili:Parziale
Accessori: Aria Condizionata, Cancello Elettrico, Impianto Fotovoltaico, Impianto Satellitare, Pannelli Solari, Passaggio Automobilistico, Passaggio Pedonale, Porta Blindata, Tapparelle Elettriche, Tavolini Esterni, Video Citofono

Mappa

Via Monte Grappa , 69 - 22079 Villa Guardia CO
Cookie preference