Villa a schiera di testa con giardino privato

Bregnano

315.000 EUR

Villa a schiera di testa con giardino privato (Rif. V001094)

In Bregnano, posto in zona tranquilla e ricca di verde. Situato a poca distanza dalla S.S.dei Giovi, e nelle vicinanze della stazione FNM di Cadorago e dall'ingresso autostradale della A9.

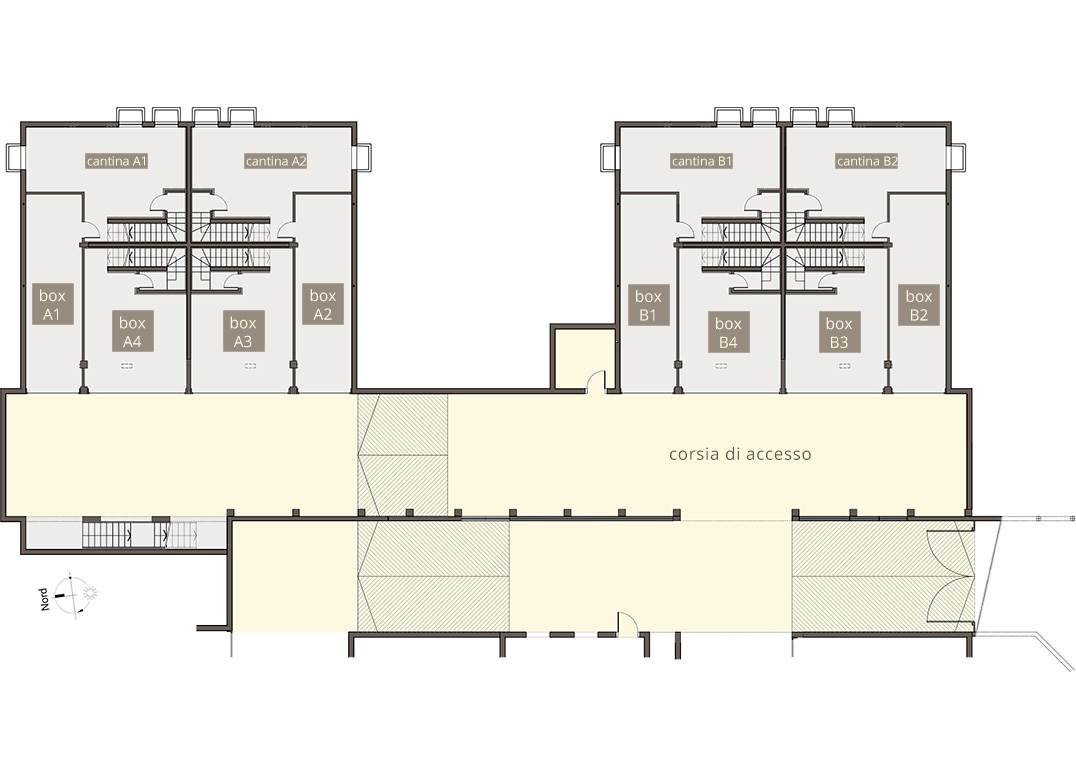
Villetta a schiera di testa con giardino di proprietà con annesso box doppio a piano interrato. Prestazione energetica 55,5 KWh/mq annuo (valore di progetto). Bellissime soluzioni realizzate con i più innovativi sistemi di risparmio energetico, dispone di pannelli solari.

Consulenza ed assistenza tecnico legale sino alla stipula del Rogito Notarile. Valutazioni GRATUITE SENZA IMPEGNO Servizio FOTOGRAFICO Inserzioni pubblicitarie sui maggiori portali di settore e riviste Associati F.I.M.A.A. Como. Note: Le informazioni presenti nelle schede immobili non costituiscono alcuna forma di contratto, tutte le informazioni contenute negli annunci sono da ritenersi del tutto indicative e non potranno essere utilizzate come parte integrante in un eventuale contratto di vendita o locazione della proprietà e non vincolano in alcun modo la società Gruppo Servizi Immobiliari.
Città:Bregnano
Prezzo:315.000 EUR
Classe:B
Locali:4
Camere:2
Bagni:2
Balconi:2
Box:2
Metri quadri:105
Mq cantina:40
Mq Box:32
Stato Immobile:Ottimo
Posizione:Centro
Panorama:Vista Giardino
Orientamento:Sud Est
Lati Liberi:2
Giardino:Privato
Tipo Cucina:Abitabile
Riscaldamento:Autonomo
Tipo Impianto:Pavimento
Cantina - Solaio:Cantina
Cookie preference