In collina ultimo piano con ascensore

Cantù

185.000 EUR

In collina ultimo piano con ascensore (Rif. V001086)

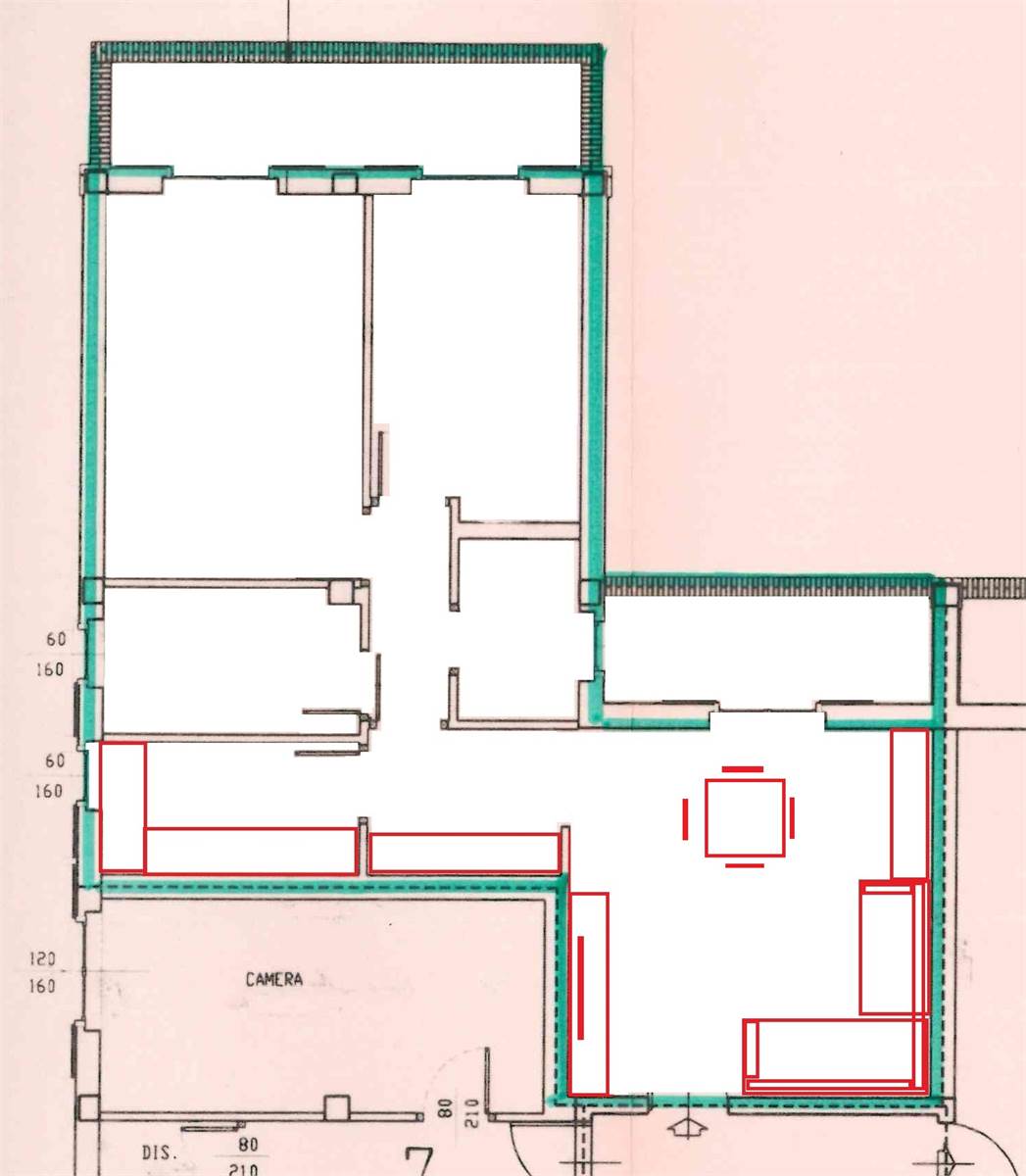
Proprio In cima alla collina, zona brugnola, con accesso dalla strada pubblica a fondo cieco, in recente palazzina di soli due piani, perfetto ultimo piano con ascensore di tre locali e doppi servizi, due balconi, cantina oltre ad un lungo e largo doppio box con basculante motorizzata. Vista incantevole sulle colline di Cantù, sempre libera sul verde circostante, con esposizione sud-ovest. Strada a fondo cieco, in uno dei punti più alti di Cantù, proprio sopra le scuole di via Daverio ed il parco pubblico del carroccio
Comodissimo per chi orbita su Como e Svizzera, subito collegato con i mezzi che transitano sulla via Mazzini. Riscaldamento autonomo con caldaia a metano. serramenti in legno con vetrocamera. NO BARRIERE ARCHITETTONICHE. Ascensore che arriva al piano box e fino al pianerottolo di casa. Taglio perfetto per nucleo familiare di tre persone, ideale per due pensionati che necessitano di tutti i comfort, della zona e della struttura. (NO BARRIERE) Giuste le spese condominiali, circa 100 euro mensili. Per visite solo telefonare 335.8396004 G. Rossi
Città:Cantù
Prezzo:185.000 EUR
Classe:F
Locali:3
Camere:2
Camere doppie:1
Camere singole:1
Posti letto:3
Bagni:2
Balconi:2
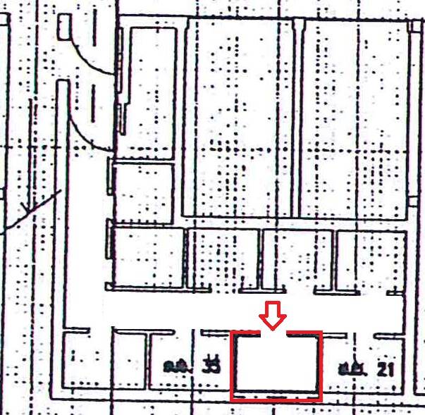
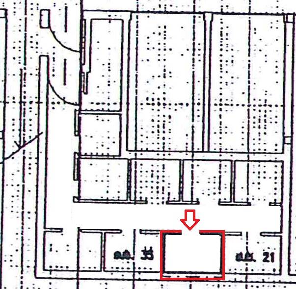
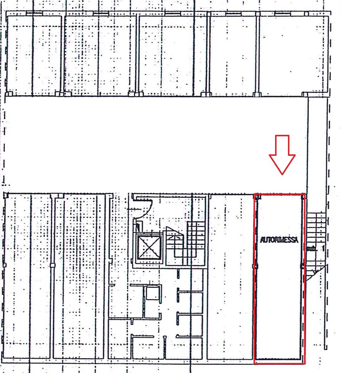
Box:1
Metri quadri:90
Mq calpestabili:83
Mq cantina:3
Mq Box:30
Mq Balcone:8
Anno costruzione:2003
Stato Immobile:Ottimo
Grado:Signorile
Posizione:Collina
Panorama:Vista Monti
Orientamento:Sud Ovest
Lati Liberi:2
Giardino:No
Arredi:Possibilità
Tipo Soggiorno:Soggiorno
Tipo Cucina:Semi Abitabile
Riscaldamento:Autonomo
Tipo Riscaldam.:Caldaia
Tipo Impianto:Radiatori
Fonte Energetica:Metano
Acqua Calda:Autonoma
Raffrescamento:No
Infissi:Legno Doppio Vetro
Serramenti:Ottimo
Persiana:Persiana Legno
Pavim. Giorno:Ceramica
Pavim. Notte:Ceramica
Pavim. Cucina:Ceramica
Pavim. Bagno:Ceramica
Tipo Saracinesca:Elettrica
Cantina - Solaio:Cantina
Accesso Disabili:Nessuna Barriera
Accesso interno disabili:Pieno accesso
Isolamento:Presente
Isolamento termico:Nessuno
Accessori: Ascensore, Bagno Handicap, Cancello Elettrico, Doppi Vetri, Impianto Satellitare, Lavanderia, Porta Blindata, Video Citofono

Mappa

del carroccio, 23 - 22063 Cantù CO
Cookie preference