3 locali In Vendita a Cantù

Cantù

122.000 EUR

3 locali In Vendita a Cantù (Rif. V001044)

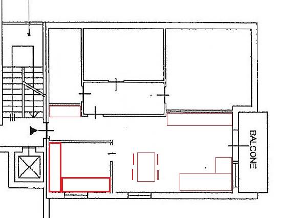
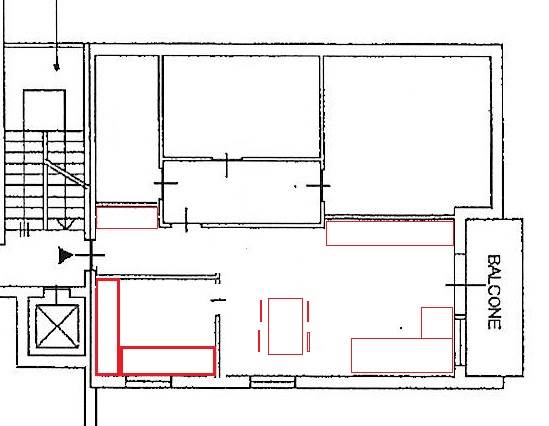
Proprio in centro a Cantù in elegante palazzina anni 70 SENZA BARRIERE ARCHITETTONICHE perfetta luminosa soluzione al quarto piano CON ASCENSORE composta da ingresso, ampio salone con doppia esposizione e tre aperture, due sul balcone lato est e una sulla parete lato sud, con cucina separata, ampio disimpegno notte, bagno padronale appena rifatto con vasca e doccia, una grande matrimoniale con doppio affaccio e una perfetta seconda camera possibile anche per matrimoniale. Possibilità di realizzare il secondo bagno finestrato. Troviamo anche una asciutta e preziosa cantina areata al piano terreno e la possibilità di abbinare un box per €. 13.000 . Ampio e libero parcheggio proprio sotto casa. Spese condominiali, 3000,00 €. annue comprensive di riscaldamento. acqua fredda ascensore pulizie utenze parti comuni assicurazioni e amministrazione. Libero subito.

Consulenza ed assistenza tecnico legale sino alla stipula del Rogito Notarile.
Valutazioni GRATUITE SENZA IMPEGNO Servizio FOTOGRAFICO Inserzioni pubblicitarie sui maggiori portali di settore e riviste Associati F.I.M.A.A. Como. Note: Le informazioni presenti nelle schede immobili non costituiscono alcuna forma di contratto, tutte le informazioni contenute negli annunci sono da ritenersi del tutto indicative e non potranno essere utilizzate come parte integrante in un eventuale contratto di vendita o locazione della proprietà e non vincolano in alcun modo la società Gruppo Servizi Immobiliari.

NOTA: Si avvertono i Signori clienti che gli indirizzi inseriti all'interno dell'annuncio sono indicativi e non rispecchiano la realtà. Questa, vuole essere un ausilio nell'indicazione della zona pur rispettando la Privacy dei venditori. Ulteriori chiarimenti possono essere forniti presso la nostra sede o telefonicamente.


TUTTE LE INFO IN AGENZIA! Venite a trovarci in agenzia, il nostro personale esperto e qualificato vi aiuterà a trovare l'immobile giusto per le vostre esigenze. Offriamo anche consulenza finanziaria con mediatori creditizi abilitati, e preventiva verifica catastale e urbanistica con tecnici professionisti
Città:Cantù
Prezzo:122.000 EUR
Classe:G
Locali:3
Camere:2
Camere doppie:2
Posti letto:4
Bagni:1
Balconi:1
Box:1
Posti auto:1
Metri quadri:100
Mq calpestabili:90
Mq cantina:3
Mq Box:12
Mq Balcone:4
Anno costruzione:1972
Anno ristrutturazione:2018
Stato Immobile:Ristrutturato
Grado:Signorile
Posizione:Centro
Panorama:Vista Monti
Piano:Quarto
Orientamento:Est Sud Ovest
Totale Piani:Cinque
Lati Liberi:3
Giardino:No
Arredi:Possibilità
Tipo Soggiorno:Doppio
Tipo Cucina:Cucinotto
Riscaldamento:Centralizzato
Tipo Riscaldam.:Caldaia a Condensazione
Tipo Impianto:Radiatori
Fonte Energetica:Metano
Acqua Calda:Autonoma
Raffrescamento:No
Infissi:Legno
Serramenti:Discreto
Persiana:Tapparella Legno
Pavim. Giorno:Marmo
Pavim. Notte:Parquet
Pavim. Cucina:Ceramica
Pavim. Bagno:Ceramica
Tipo Saracinesca:Manuale
Cantina - Solaio:Cantina
Accesso Disabili:Nessuna Barriera
Accesso interno disabili:Pieno accesso
Accessori: Ascensore, Bagno Handicap, Impianto Satellitare, Ripostiglio, Tavolini Esterni, Video Citofono

Mappa

risorgimento - 22063 Cantù CO

Video

Cookie preference