MALNATE località Gurone, CAPANNONE di 400 Mq

Malnate
(Gurone)

220.000 EUR

MALNATE località Gurone, CAPANNONE di 400 Mq (Rif. V000804)

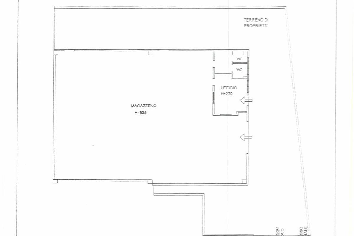
MALNATE, località Gurone, CAPANNONE di Mq 400 ad uso commerciale/produttivo con magazzino , piazzale di 350 mq. Altezza interna 7,00 Metri.
Al piano terra zona commerciale, ufficio, due bagni di cui uno per disabili e spogliatoio scala interna che porta al piano primo con ufficio di 35 Mq.

Richiesta € 220.000,00

Rif. PA
Città:Malnate
Prezzo:220.000 EUR
Classe:F
Locali:1
Bagni:2
Posti auto:8
Metri quadri:400
Anno costruzione:2008
Stato Immobile:Nuovo
Grado:Signorile
Posizione:Periferia
Panorama:Vista Aperta
Piano:Primo
Orientamento:Nord Ovest Sud
Lati Liberi:3
Riscaldamento:No
Acqua Calda:Autonoma
Destinazione:Commerciale
Accesso Disabili:Nessuna Barriera
Accessori: Bagno Handicap, Cancello Elettrico
Cookie preference