LOMAZZO VENDESI 3 LOCALI CON GIARDINO

Lomazzo

299.000 EUR

LOMAZZO VENDESI 3 LOCALI CON GIARDINO (Rif. V000772)

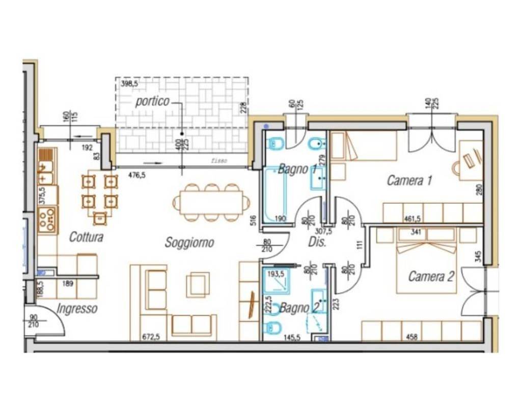
In palazzina di nuova costruzione, proponiamo appartamento signorile al piano terra, composto da ingresso, soggiorno con cucina con affaccio
sul giardino con ampie vetrate scorrevoli, disimpegno due camere , due bagni con possibilità di scegliere vasca o doccia. Possibilità di personalizzare l'appartamento. Riscaldamento a pavimento, tapparelle motorizzate, predisposizione impianto aria condizionata e antifurto, pannelli solari. Possibilità box a parte euro 25.000
Per visionare l'immobile contattateci 031.2070934 Stefania - 347.8379574 Giuliana.
L'indirizzo è puramente indicativo.
Città:Lomazzo
Prezzo:299.000 EUR
Classe:A4
Locali:3
Camere:2
Bagni:2
Metri quadri:94
Mq Giardino:250
Stato Immobile:In Costruzione
Grado:Signorile
Panorama:Vista Giardino
Piano:Piano Terra
Orientamento:Sud Ovest
Lati Liberi:1
Giardino:Privato
Arredi:Non Arredato
Tipo Soggiorno:Soggiorno
Tipo Cucina:A Vista
Riscaldamento:Centralizzato
Tipo Riscaldam.:Pompa di Calore
Infissi:PVC Doppio Vetro
Serramenti:Nuovo
Pavim. Giorno:Personalizzato
Pavim. Notte:Personalizzato
Pavim. Cucina:Personalizzato
Pavim. Bagno:Personalizzato
Accessori: Antifurto, Aria Condizionata, Ascensore, Doppi Vetri, Pannelli Solari, Passaggio Automobilistico, Passaggio Pedonale, Porta Blindata

Mappa

Parini - 22074 Lomazzo CO
Cookie preference