Villa Unifamiliare con ampio giardino e box doppio

Limido Comasco

395.000 EUR

Villa Unifamiliare con ampio giardino e box doppio (Rif. V000675)

POSIZIONE STRATEGICA, PERFETTA PER CHI SI MUOVE
Oltre alla bellezza della casa, qui trovi la comodità che fa la differenza:

A pochi minuti dall’ingresso autostradale A9 di Lomazzo, per raggiungere facilmente Milano, Como, la Svizzera.

A soli 8 km dalle stazioni ferroviarie di Lomazzo e di Mozzate, ideali per chi viaggia ogni giorno.

Vicinissima alla Pedemontana – ingresso di Mozzate, per collegamenti rapidi e fluidi verso tutto il territorio lombardo. Una posizione che unisce tranquillità residenziale e massima praticità di collegamento

Proponiamo Villa Unifamiliare di nuova costruzione, Immersa nella parte più riservata del nuovo insediamento residenziale, questa residenza è quella con il giardino più ampio, un abbraccio verde che abbellisce ogni prospettiva e regala silenzio, luce, privacy.
Un’oasi personale in cui respirare aria pulita, coltivare momenti, creare ricordi.

Il cancelletto pedonale indipendente apre alla scoperta di un mondo intimo e protetto, dove l’ordine degli spazi e la cura del contesto si fondono con il desiderio di vivere un quotidiano più dolce, più lento, più tuo.

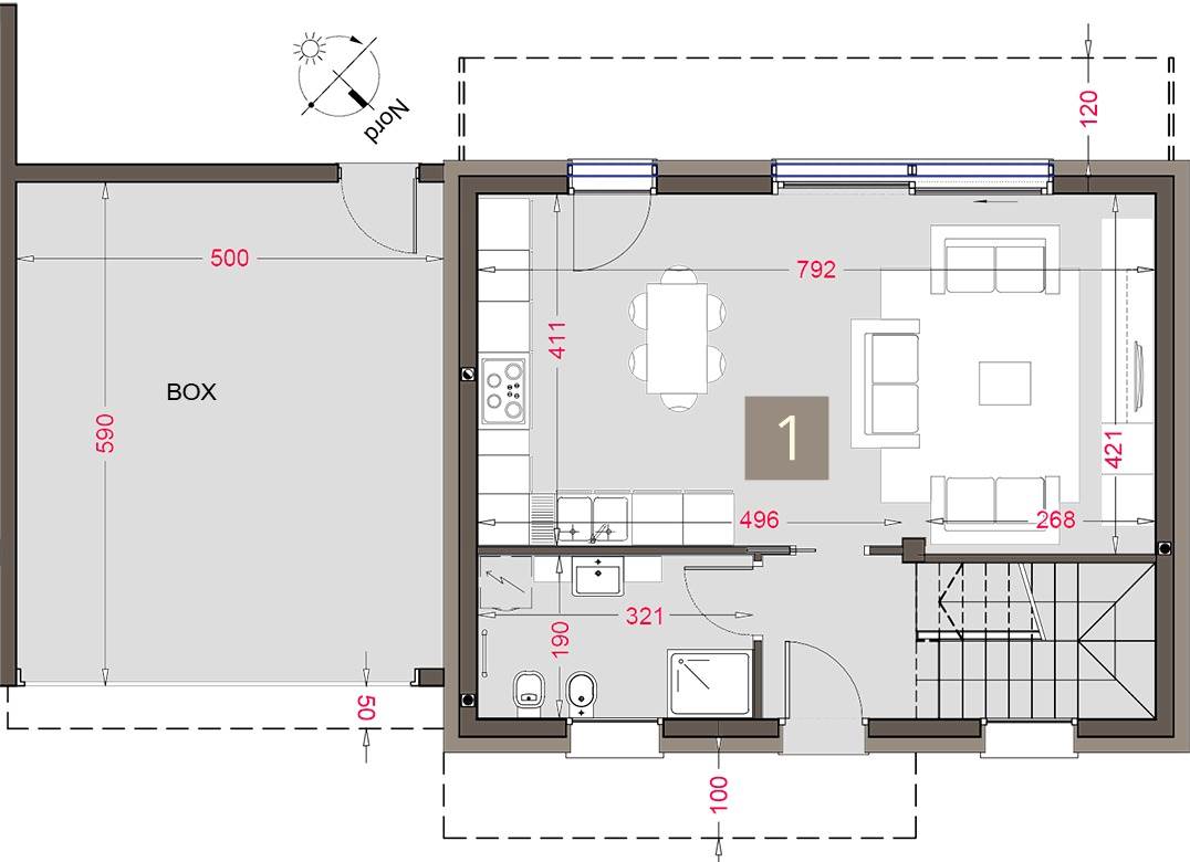
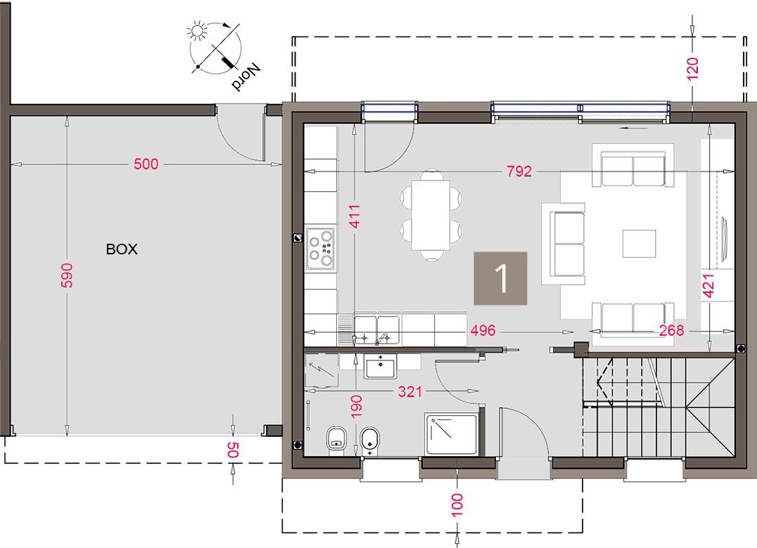
UN PIANO TERRA CHE INCANTA AL PRIMO SGUARDO
Entrare è lasciarsi sorprendere da un open space luminoso e avvolgente, dove il soggiorno e la cucina a vista si uniscono in un ambiente pensato per accogliere, condividere, emozionare.
La porta finestra e il grande scorrevole panoramico offrono una continuità visiva e fisica con il giardino esterno: la casa respira luce, si apre al verde, si dilata.
Ogni mattina diventa un invito a ricominciare, ogni tramonto un momento prezioso da vivere.

Il bagno al piano, essenziale e raffinato, completa con equilibrio una zona giorno progettata per stupire e coccolare.

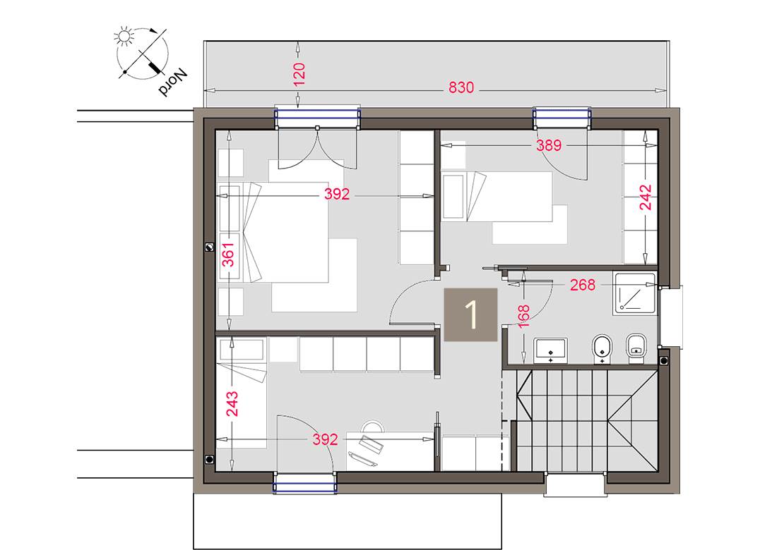
UN PIANO NOTTE DOVE NASCE LA QUIETE
Al piano superiore si scopre la dimensione più delicata e riservata della casa:
tre camere da letto, spazi pensati per riposare, per crescere, per sognare.
Il secondo bagno e il balcone affacciato sul verde trasformano la zona notte in un rifugio silenzioso, perfetto per ritrovare pace e armonia.

IL LUSSO DELLA COMODITÀ: BOX DOPPIO IN LARGHEZZA
Un dettaglio che valorizza l’intera proprietà: un box doppio in larghezza, comodo, ampio, pratico.
Non solo due posti auto, ma uno spazio prezioso che aggiunge qualità alla tua quotidianità.

EFFICIENTE, MODERNA, AVANZATA: LA CASA CHE PENSA AL TUO BENESSERE
Ogni scelta tecnologica è stata fatta per offrirti comfort e risparmio:

Riscaldamento a pavimento, caldo avvolgente e uniforme

Impianto fotovoltaico, efficienza energetica che guarda lontano

Una casa che non spreca, che rispetta, che migliora.
Villetta in fase di ultimazione, possibilità di scegliere da un ricco capitolato fornito dall'impresa costruttrice, Pensa, sogna, realizza.

Valore di progetto A3

Soluzionecasa – Dove i progetti prendono forma
Da anni specializzati nell’intermediazione immobiliare nella provincia di Como, accompagniamo imprese, investitori e privati in ogni fase della compravendita con servizi qualificati e consulenze tecniche integrate:
inoltre offre anche tecnici che si occupano di pratiche e visure catastali, certificazioni energetiche, progettazioni, ristrutturazioni.
Vieni a trovarci e prova la differenza.
Città:Limido Comasco
Prezzo:395.000 EUR
Classe:A3
Locali:4
Camere:3
Bagni:2
Balconi:1
Box:2
Metri quadri:148
Stato Immobile:Nuovo
Grado:Signorile
Posizione:Centro
Orientamento:Nord Ovest Sud Est
Lati Liberi:4
Giardino:Privato
Tipo Soggiorno:Soggiorno
Tipo Cucina:A Vista
Riscaldamento:Autonomo
Fonte Energetica:Fotovoltaico
Acqua Calda:Autonoma a Pannelli
Infissi:PVC Triplo Vetro
Serramenti:Nuovo
Isolamento termico:Cappotto esterno
Isolamento acustico:Isolamento completo
Accessori: Aria Condizionata, Cancello Elettrico, Impianto Fotovoltaico, Pannelli Solari, Passaggio Automobilistico, Passaggio Pedonale, Porta Blindata, Ripostiglio, Tapparelle Elettriche, Video Citofono

Mappa

bia Roma - 22070 Limido Comasco CO
Cookie preference