PORZIONE DI CASA CON GIARDINO

Inverigo

240.000 EUR

PORZIONE DI CASA CON GIARDINO (Rif. V000628)

PORZIONE DI CASA CON GIARDINO E ZERO SPESE CONDOMINIALI!

Siamo a Inverigo (CO), in pieno centro: municipio, posta, banca… tutto a due passi....
Ma sembra di essere fuori dal mondo!

QUANDO E' POSSIBILE VEDERLO? SABATO 09 MAGGIO DALLE 09.30 ALLE 13.00 DURANTE L'OPEN HOUSE! CONTATTACI PER ORGANIZZARE LA TUA VISIONE!

Ingresso da classica corte lombarda con accesso privato delimitato da cancello elettrico a sole quattro abitazioni, SENZA SPESE CONDOMINIALI!

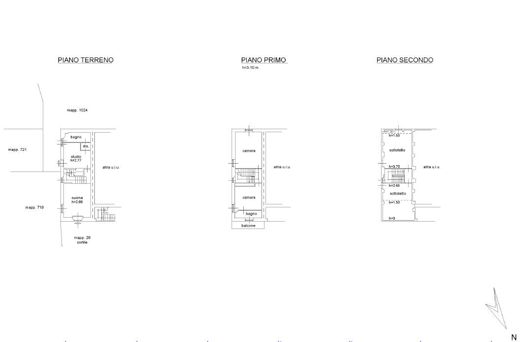
La casa è una porzione di testa (per cui libera su tre lati) di corte indipendente da terra a cielo, su due livelli più sottotetto (di 45 mq per piano circa).

Al piano terra troviamo la cucina abitabile, zona living/tv e bagno;
al primo piano due camere, di cui una con bagno privato;
sottotetto CON TRAVI A VISTA, in cui sono state ricavate altre due camere (o da poter sfruttare come vuoi: area relax, giochi ecc...)

Il giardino è di circa 670 mq… e c’è anche possibilità di costruire!

Attualmente vi è un posto auto non coperto, ma grazie alla metratura del giardino con possibilità di edificare, è possibile realizzare box o posto auto coperto (o altro, in base alle proprie esigenze!)

E' ideale per una famiglia numerosa! Il giardino è attrezzato per poter godere delle belle giornate all'aperto ed è completo di impianto di irrigazione.

L'immobile è stato in gran parte ristrutturato, mantenendo alcune caratteristiche delle case d'epoca.

Allora… vieni a vederla o te la lasci scappare?

NB: LA METRATURA INDICATA E' QUELLA COMMERCIALE

Per avere informazioni contattaci allo 02 - 67 165 80 44 (call center attivo da lun a ven dalle 8:30 alle 20:00 e sabato mattina dalle 9:00 alle 18:00) o visita il nostro sito: www.riferimentoimmobiliare.net (sul quale troverete altre foto)

Agente di riferimento: Nicola Alfano
SCOPRI UN NUOVO MODO DI VEDERE L'AGENTE IMMOBILIARE! CON NOI E' POSSIBILE AVERE UN SOLO REFERENTE MA PIU' AGENZIE AL TUO SERVIZIO PER TROVARE O VENDERE CASA COLLABORANDO! CONTATTACI PER UN INCONTRO (GRATUITO!)

La Riferimento Immobiliare fa parte del Re Point Group, un gruppo di 16 agenzie dislocate da Milano alla provincia di Como, il cui obiettivo comune è quello di differenziarsi ed offrire un servizio di qualità ai clienti, COLLABORANDO e offrendo loro più possibilità di vendere o trovare casa. Semplici come un punto, forti come un gruppo è il nostro slogan! www.repointgroup.it

Grazie all'adesione al Gruppo Re Point e alla collaborazione instaurata negli anni con le agenzie della zona, punta ad essere il TUO RIFERIMENTO per vendere o comprare casa nella zona di Inverigo e paesi limitrofi (senza alcun limite)

Trovi i nostri immobili anche sul sito FIMAACOMO www.trovacasacomo.
Città:Inverigo
Prezzo:240.000 EUR
Classe:G (344,46)
Locali:5
Camere:4
Camere doppie:4
Bagni:2
Balconi:1
Posti auto:1
Metri quadri:145
Mq Giardino:670
Anno costruzione:1900
Anno ristrutturazione:2017
Stato Immobile:Ristrutturato
Posizione:Centro
Orientamento:Nord Est Sud
Lati Liberi:3
Giardino:Privato
Arredi:Possibilità
Tipo Cucina:Abitabile
Riscaldamento:Autonomo
Tipo Riscaldam.:Caldaia a Condensazione
Tipo Impianto:Radiatori
Raffrescamento:Predisposizione
Infissi:Legno Doppio Vetro
Persiana:Persiana Legno
Pavim. Giorno:Ceramica
Pavim. Notte:Ceramica
Pavim. Cucina:Ceramica
Pavim. Bagno:Ceramica
Accesso interno disabili:Non accessibile
Impianto d’irrigazione:Si
Accessori: Doppi Vetri, Passaggio Automobilistico, Passaggio Pedonale, Video Citofono

Mappa

Via Papa Urbano III - 22044 Inverigo CO
Cookie preference