Villa indipendente con ampi spazi e potenzialità

Valmorea

370.000 EUR

Villa indipendente con ampi spazi e potenzialità (Rif. V000317)

Questa affascinante villa, disposta su due piani, offre l’opportunità di vivere in totale indipendenza, con due appartamenti separati, ciascuno con caratteristiche uniche. La proprietà, pur necessitando di qualche intervento di ristrutturazione al piano superiore, si presenta come un vero gioiello in grado di soddisfare ogni tua esigenza.

Al piano terreno (circa 120 mq), troverai un appartamento completamente ristrutturato a nuovo, con finiture moderne e spazi ampi e luminosi. Un ingresso accogliente ti conduce all’ampia veranda, che ospita il soggiorno con angolo cottura, perfetta per momenti di relax e convivialità. Il piano prosegue con due camere matrimoniali spaziose, una grande lavanderia e un box doppio, il tutto circondato da un bel giardino privato.

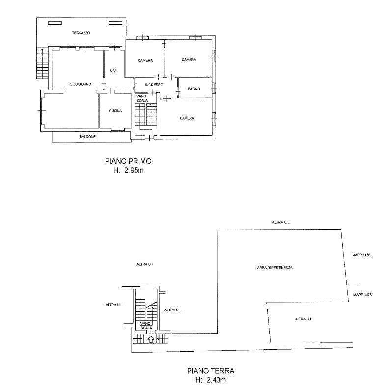
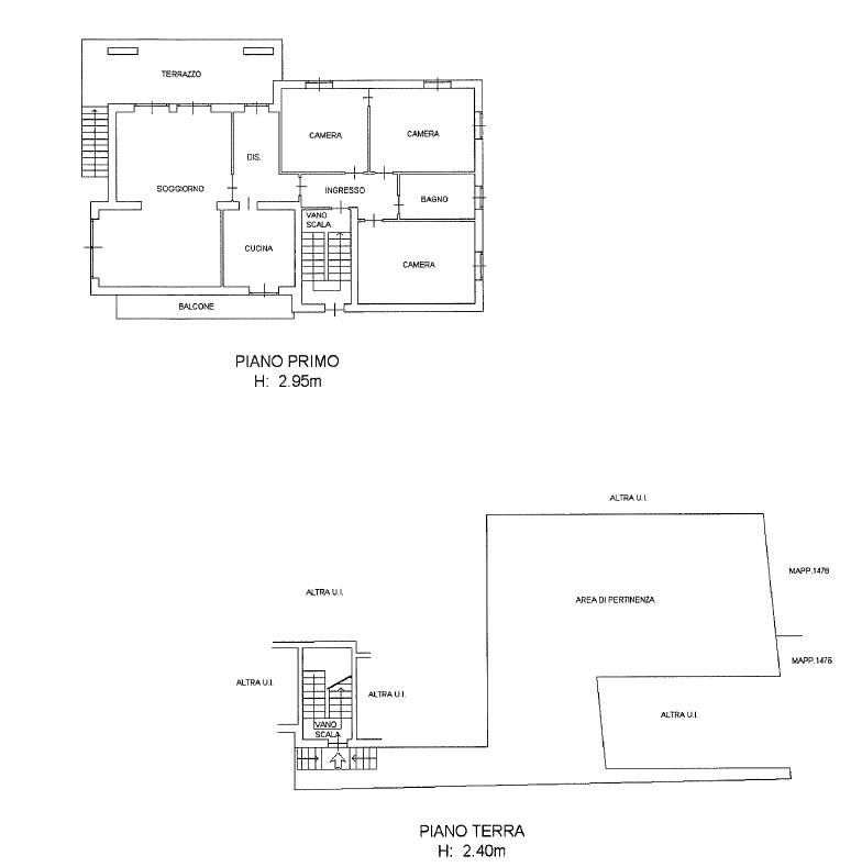
Al piano primo (circa 170 mq), invece, potrai realizzare la tua casa dei sogni. La zona giorno comprende una cucina abitabile con balcone, una sala da pranzo che si collega al soggiorno e un terrazzo di 30 mq, ideale per cene all'aperto e momenti di relax. Il piano comprende anche tre camere matrimoniali, un bagno e quattro posti auto coperti. Inoltre, una casetta di circa 40 mq, da sistemare, può essere trasformata in un piccolo appartamento, un laboratorio o uno spazio hobby, a seconda delle tue necessità.

Il riscaldamento al piano terreno è stato completamente rinnovato e risulta autonomo, mentre al piano primo è possibile personalizzare l’impianto secondo i propri gusti e necessità.

Un’opportunità unica per chi cerca una villa spaziosa, con la possibilità di vivere in due ambienti separati, ma senza rinunciare a comfort e privacy. Non lasciarti scappare questa occasione!
Città:Valmorea
Prezzo:370.000 EUR
Classe:G (361 [kWh/m²a])
Locali:8
Camere doppie:5
Bagni:2
Box:1
Posti auto:4
Metri quadri:290
Mq Giardino:250
Stato Immobile:Abitabile
Grado:Signorile
Posizione:Centro
Panorama:Vista Aperta
Orientamento:Nord Ovest Sud Est
Lati Liberi:4
Giardino:Privato
Arredi:Semi Arredato
Tipo Soggiorno:Soggiorno
Tipo Cucina:Abitabile
Riscaldamento:Autonomo
Tipo Riscaldam.:Caldaia
Acqua Calda:Autonoma
Infissi:PVC Doppio Vetro
Serramenti:Ottimo
Pavim. Giorno:Ceramica
Pavim. Notte:Ceramica
Pavim. Cucina:Ceramica
Pavim. Bagno:Ceramica
Accessori: Camino, Cancello Elettrico, Doppi Vetri, Lavanderia, Passaggio Automobilistico, Passaggio Pedonale, Porta Blindata, Ripostiglio, Veranda

Mappa

VIA NERI, 97 - 22070 Valmorea CO

Video

Cookie preference