QUADRILOCALE PIU' POSTI AUTO PARZIALMENTE DA RISTRUTTURARE

Valmorea

225.000 EUR

QUADRILOCALE PIU' POSTI AUTO PARZIALMENTE DA RISTRUTTURARE (Rif. V000315)

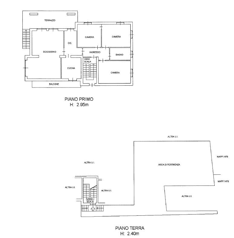
Ampio e luminoso appartamento sito al primo e ultimo piano di una casa bifamiliare parzialmente da ristrutturare (impianto di riscaldamento, bagno, impianto elettrico).
Piano primo di circa 170 mq., composto da: ingresso, cucina abitabile con balconata, sala da pranzo collegata al soggiorno, terrazzo di circa 30 mq., disimpegno, tre camere da letto, matrimoniali e bagno.
Annessi ci sono quattro posti auto coperti, un solaio e una casetta di circa 40 mq., da sistemare ed adibibile a qualsiasi uso.
Città:Valmorea
Prezzo:225.000 EUR
Classe:G (173 [kWh/m²a])
Locali:4
Camere:3
Terrazzi:1
Posti auto:4
Metri quadri:170
mq Terrazzo:30
Stato Immobile:Da Ristrutturare
Grado:Medio
Posizione:Centro
Panorama:Vista Aperta
Piano:Primo
Orientamento:Nord Ovest Sud Est
Lati Liberi:4
Giardino:No
Arredi:Non Arredato
Tipo Soggiorno:Soggiorno
Tipo Cucina:Abitabile
Riscaldamento:Autonomo
Acqua Calda:Autonoma
Infissi:Legno Doppio Vetro
Serramenti:Buono
Accesso Disabili:No
Accessori: Cancello Elettrico, Doppi Vetri, Passaggio Automobilistico, Passaggio Pedonale, Porta Blindata, Ripostiglio, Tavolini Esterni, Video Citofono

Mappa

VIA NERI, 97 - 22070 Valmorea CO

Video

Cookie preference