RUSTICO

Olgiate Comasco

400.000 EUR

RUSTICO (Rif. V000268)

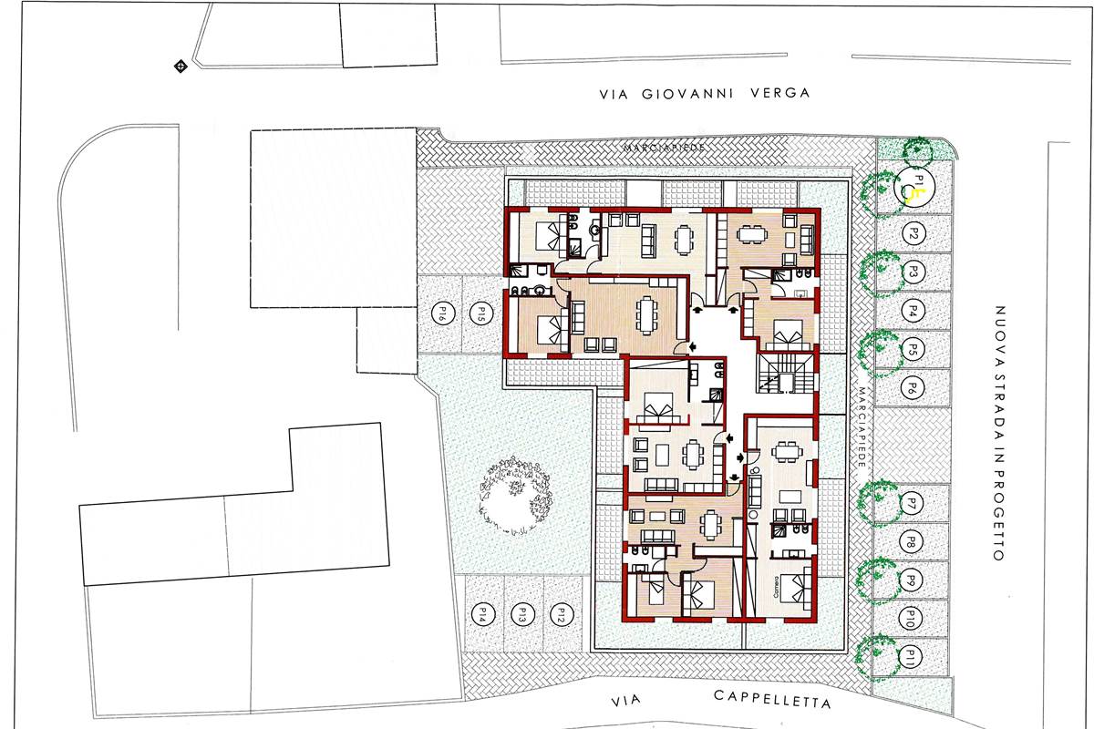
ZONA CENTRALE VENDIAMO RUSTICO CON POSSIBILITA' DI EDIFICARE (dopo la demolizione) COMPLESSIVI ca 3.300 metri cubi
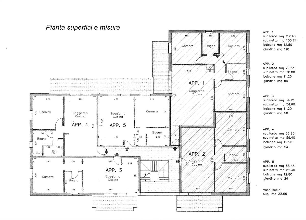
PROGETTO APPROVATO (ONERI ESCLUSI) PER 18 BILOCALI CON POSSBILITA' DI ACCORPAMENTI IN TRI/QUADRILOCALI.
PIANO SEMINTERRATO CON AUTORIMESSE.
GLI APPARTAMENTI AL PIANO TERRENO POSSONO GODERE DI UN GIARDINO PRIVATO.
IL PROPRIETARIO POTREBBE ACCETTARE UNA PARZIALE PERMUTA
Città:Olgiate Comasco
Prezzo:400.000 EUR
Classe:Non applicabile
Locali:36
Metri quadri:3300
Stato Immobile:Rustico
Cookie preference