Moderno Loft con Box Auto in Città Studi Milano

Milano
(Città Studi/ Lambrate/ Udine/ Loreto)

1.360.000 EUR

Moderno Loft con Box Auto in Città Studi Milano (Rif. V000191)

La nostra agenzia Majeli Vassart | Forbes Global Properties è lieta di proporre alla vostra attenzione questa splendida proprietà in vendita. Si tratta di un moderno loft di più di 200 mq situato nel cuore di Città Studi, in una delle aree più vibranti e richieste di Milano.
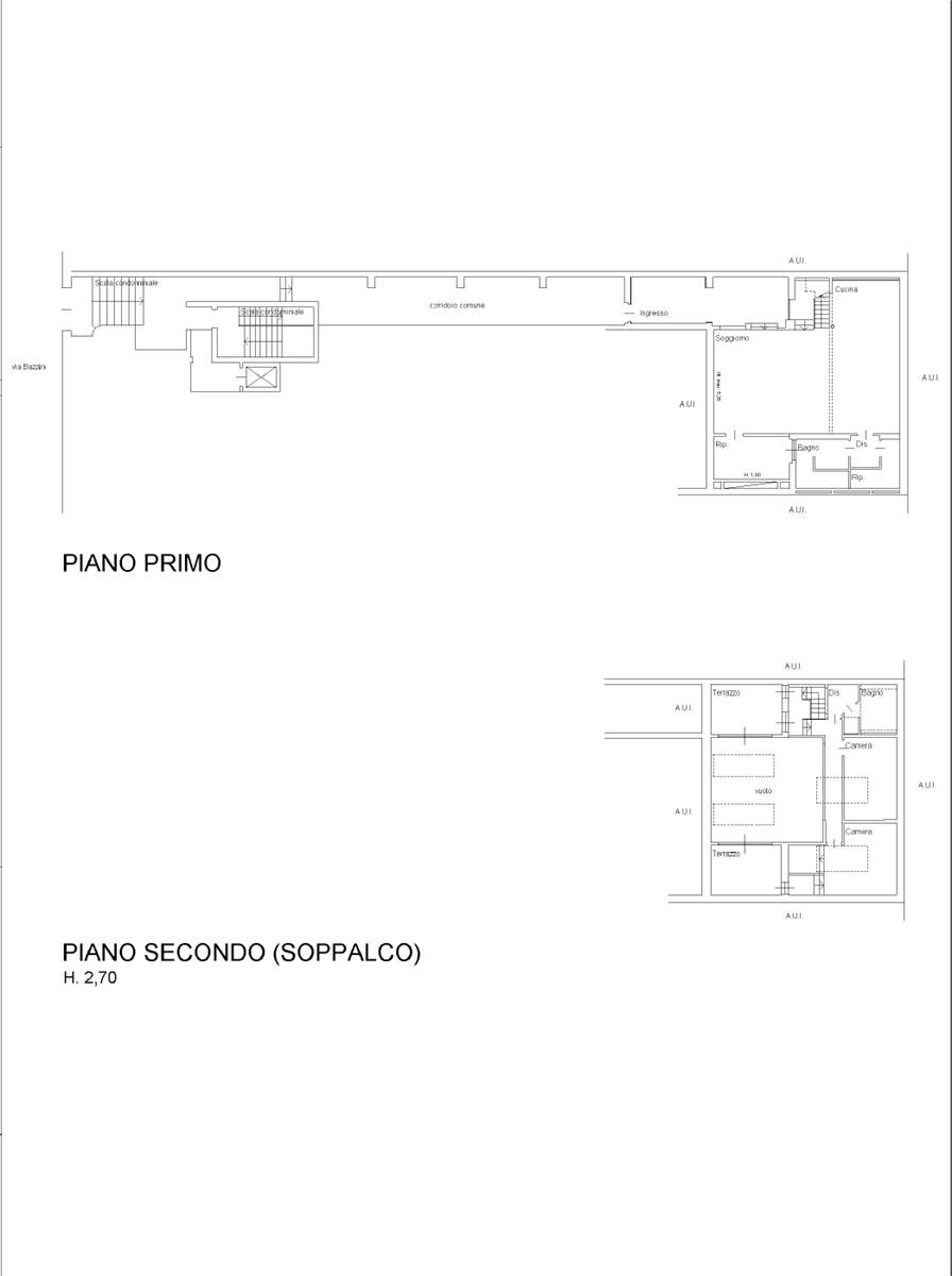
L'immobile oggetto di una recente ristrutturazione, si distingue per il suo design contemporaneo e per la luminosità degli ambienti, valorizzata dalle ampie vetrate che donano un'atmosfera particolarmente accogliente in ogni momento della giornata. Al piano primo, il principale, si sviluppa una spaziosa zona living accessibile da un corridoio-disimpegno di ingresso, pensata per coniugare comfort ed eleganza: l’ampio soggiorno rappresenta lo spazio ideale per rilassarsi e vivere momenti conviviali con i propri ospiti, mentre zona pranzo e cucina open space ben organizzata e funzionale, si integrano perfettamente nell'ambiente. Completano il livello al piano primo due comodi ripostigli, perfetti per ottimizzare gli spazi, oltre ad un bagno completo. Salendo al piano superiore si accede alla zona notte, ben distribuita e riservata, composta da due ampie camere da letto matrimoniali e un secondo bagno dotato sia di doccia sia di vasca da bagno. Da questo livello si accede anche alle due terrazze private, veri punti di forza dell'immobile: spazi scoperti esclusivi ideali per colazioni, pranzi e cene all'aria aperta, per letture o semplicemente per vivere un angolo di tranquillità nel cuore della città.
A completare la proprietà, un comodo box auto di pertinenza situato al piano terra, una soluzione particolarmente preziosa in zona che garantisce praticità, sicurezza e facilità di accesso in ogni momento. Un grande valore aggiunto che rende l'immobile ancora più interessante, funzionale e adatto alla vita quotidiana in città.
Il quartiere Città Studi è particolarmente apprezzato per la sua vivacità e rinomato per la presenza del prestigioso Politecnico di Milano, che contribuisce a creare un ambiente dinamico, giovane e culturalmente stimolante. Altro punto di forza, la presenza nelle immediate vicinanze di botteghe e negozi di quartiere, supermercati, palestre, farmacie, servizi di prima necessità oltre ad una ricca offerta di bar e ristoranti.
Infine, la proprietà si trova in posizione strategica anche per quanto riguarda le aree verdi ideali per il relax e il tempo libero, come il vicino Parco Lambro e diversi altri giardini pubblici. Ottimamente servita dai mezzi pubblici, la zona permette di raggiungere rapidamente il centro città grazie alla linea verde della metropolitana di Milano, fermate Piola (a due passi dall'immobile) e Lambrate, oltre a numerose linee di superficie e alla stazione ferroviaria di Milano Lambrate.
Per info e visite, vi invitiamo a contattare la nostra agenzia Majeli Vassart | Forbes Global Properties – info@majelivassart.com - +39 031241510
Città:Milano
Prezzo:1.360.000 EUR
Spese condominiali:3.000 EUR / anno
Classe:E
Locali:6
Camere:2
Camere doppie:2
Bagni:2
Terrazzi:2
Box:1215
Metri quadri:215
Anno costruzione:1960
Stato Immobile:Ristrutturato
Grado:Signorile
Posizione:Centro
Piano:Primo
Totale Piani:Due
Giardino:No
Tipo Soggiorno:Doppio
Tipo Cucina:Semi Abitabile
Riscaldamento:Autonomo
Tipo Impianto:Aria
Fonte Energetica:Gas
Raffrescamento:Split
Infissi:Legno Doppio Vetro
Accessori: Antifurto, Aria Condizionata, Ascensore, Doppi Vetri, Fibra Ottica, Porta Blindata, Ripostiglio, Video Citofono
Cookie preference