Appartamento ristrutturato e con terrazza nel centro storico a Como

Como
(Città Murata/ Lungolago/ Centro)

Prezzo riservato

Appartamento ristrutturato e con terrazza nel centro storico a Como (Rif. V000185)

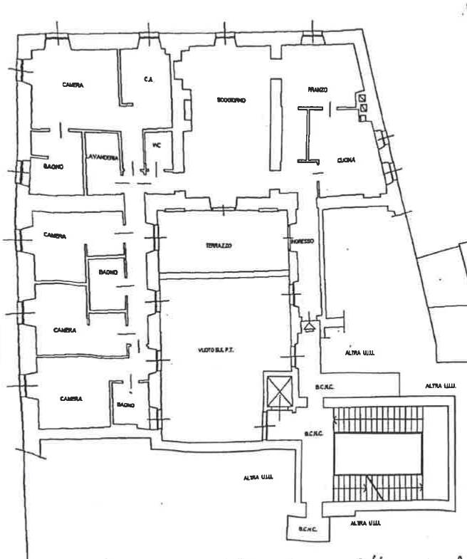
La nostra agenzia Majeli Vassart | Forbes Global Properties è lieta di proporre alla vendita questa splendida proprietà. Nel cuore del centro storico di Como, Dimora Visconti celebra l’incontro tra l’eleganza di un palazzo seicentesco e la raffinatezza del vivere contemporaneo. Situata al piano nobile accessibile con ascensore, la residenza si apre in ambienti luminosi e fluidi: cucina a induzione, sala da pranzo e soggiorno con camino in marmo bianco che si affacciano su una terrazza riservata nel cortile d’onore. La zona notte ospita quattro camere e quattro bagni, con suite dotate di doccia sensoriale con bagno turco e dettagli di design. Parquet in rovere, riscaldamento a pavimento e impianti tecnologici di ultima generazione definiscono un'eleganza essenziale, fatta di armonia e luce. A completare la dimora, un posto auto riservato con area dedicata per moto e biciclette.
All'interno di un edificio seicentesco rinnovato nei primi anni del Novecento, Dimora Visconti custodisce la memoria architettonica del luogo reinterpretandola con linguaggio contemporaneo. I soffitti alti e gli inserti originali dialogano con materiali pregiati e tecnologie attuali, in un equilibrio tra eredità storica e comfort moderno. Ogni dettaglio, dal parquet spazzolato alle finiture d'eccellenza, definisce un'abitare che nasce dal rispetto per la storia e dalla capacità di trasformarla in esperienza quotidiana autentica.
La posizione di Dimora Visconti è tra le più privilegiate di Como: a pochi passi dal Duomo, dal lungolago e dai principali servizi cittadini. Le sue finestre incorniciano scorci iconici come Piazza Roma e la funicolare per Brunate, mentre la vita cittadina scorre tra boutique, ristoranti e caffè storici. Facilmente raggiungibile dalle stazioni Como Lago e Como San Giovanni, la residenza offre un perfetto equilibrio tra vitalità urbana e tranquillità privata. Un luogo che racchiude l’essenza della bellezza comasca.

Ristrutturato
4 camere da letto di cui 2 matrimoniali con bagno completo en suite
Classe energetica B
Riscaldamento centralizzato con conta calorie (ingresso appartamento)
Riscaldamento a pavimento (caldo/freddo)
Parquet doghe in rovere spazzolato
Posto auto ad uso esclusivo + area ad uso esclusivo per moto e bici di proprietà
Ascensore
Videocitofono
Spese condominiali circa 600€/mese

Per info e visite, contattate la nostra agenzia a Como : Majeli Vassart | Forbes Global Properties - 031.241510
Città:Como
Prezzo:Prezzo riservato
Classe:B (70)
Locali:6
Camere:4
Camere doppie:2
Camere singole:2
Bagni:4
Terrazzi:1
Posti auto:1
Metri quadri:300
Anno costruzione:1650
Anno ristrutturazione:2019
Stato Immobile:Ottimo
Grado:Signorile
Posizione:Centro Storico
Panorama:Vista Aperta
Tipo Soggiorno:Doppio
Tipo Cucina:Abitabile
Riscaldamento:Conta Calorie
Tipo Riscaldam.:Pompa di Calore
Tipo Impianto:Pavimento
Acqua Calda:Autonoma
Raffrescamento:Pavimento
Infissi:Legno Doppio Vetro
Serramenti:Nuovo
Pavim. Giorno:Parquet
Pavim. Notte:Parquet
Accesso Disabili:Nessuna Barriera
Accesso interno disabili:Pieno accesso
Isolamento acustico:Isolamento completo
Accessori: Aria Condizionata, Ascensore, Camino, Cancello Elettrico, Doppi Vetri, Lavanderia, Porta Blindata, Video Citofono

Mappa

Piazza Guido Grimoldi, 8 - 22100 Como CO
Cookie preference