Rif. 3999_TA - Lurate Caccivio/3 locali

Lurate Caccivio

240.000 EUR

Rif. 3999_TA - Lurate Caccivio/3 locali (Rif. Rif. 3999_TA)

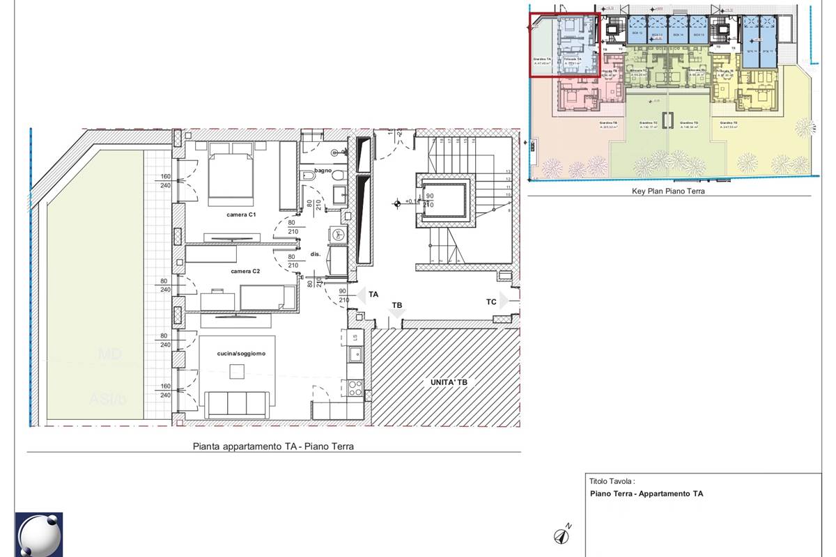
In nuova palazzina in fase di realizzazione posta nelle immediate vicinanze del centro cittadino e comoda con scuole, servizi e trasporti ma al tempo stesso inserito un ambiente tranquillo, proponiamo soluzione abitative di due, tre e quattro locali di varie metrature e accessori con la possibilità di autorimesse singole o doppie e cantine. Il tutto in un contesto dalle linee moderne con un impiantistica di ultima generazione e possibilità di scelte delle finiture da un capitolato di qualità. In questo annuncio ti vogliamo mettere in evidenza un trilocale al piano terra con angolo cottura e bagno completo di giardinetto privato di circa 50mq. Chiamateci per maggiori informazioni per questo per le altre soluzioni non ve ne pentirete. (Valore di Progetto in Classe Energetica da A1 a A4)
Città:Lurate Caccivio
Prezzo:240.000 EUR
Classe:Fase di valutazione
Locali:3
Camere:2
Bagni:1
Metri quadri:71
Mq Giardino:47
Anno costruzione:2025
Stato Immobile:In Costruzione
Grado:Signorile
Posizione:Centro
Piano:Piano Terra
Totale Piani:Tre
Lati Liberi:2
Giardino:Privato
Arredi:Non Arredato
Tipo Soggiorno:Soggiorno
Tipo Cucina:Angolo Cottura
Riscaldamento:Autonomo
Tipo Riscaldam.:Pompa di Calore
Tipo Impianto:Pavimento
Fonte Energetica:Fotovoltaico
Acqua Calda:Autonoma a Pannelli
Raffrescamento:Predisposizione
Infissi:PVC Doppio Vetro
Serramenti:Nuovo
Persiana:Tapparella Metallo
Pavim. Giorno:Personalizzato
Pavim. Notte:Personalizzato
Pavim. Cucina:Personalizzato
Pavim. Bagno:Personalizzato
Accesso Disabili:Nessuna Barriera
Accesso interno disabili:Pieno accesso
VMC:Si
Accessori: Ascensore, Cancello Elettrico, Doppi Vetri, Impianto Fotovoltaico, Porta Blindata

Mappa

Via Olgiate, 42 - 22075 Lurate Caccivio CO
Cookie preference