Casa storica con piscina in centro a Mombaruzzo

Mombaruzzo

590.000 EUR

Casa storica con piscina in centro a Mombaruzzo (Rif. RV0212)

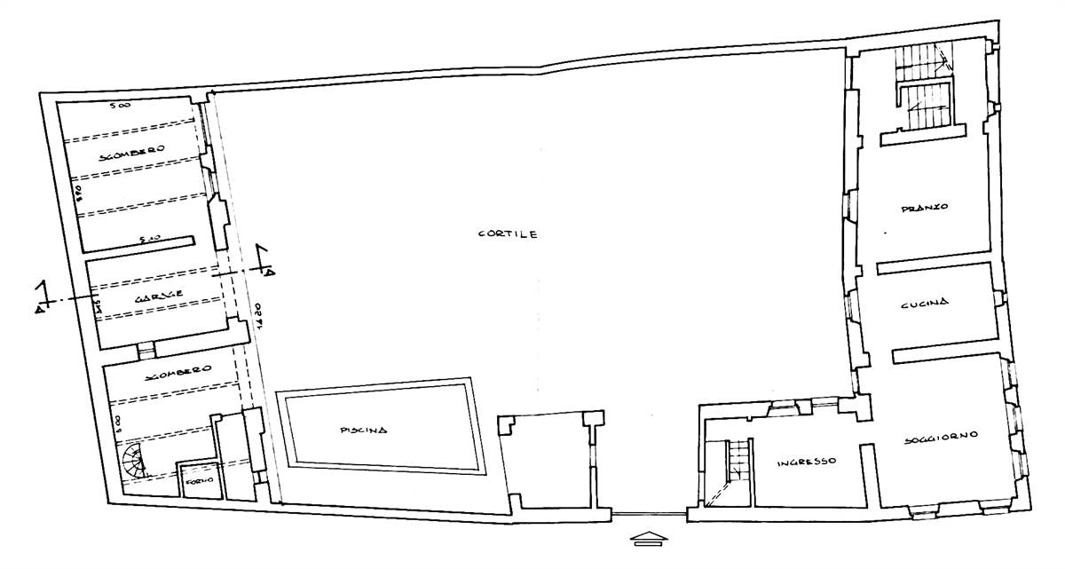
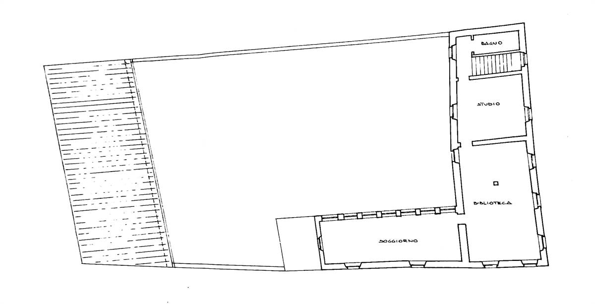
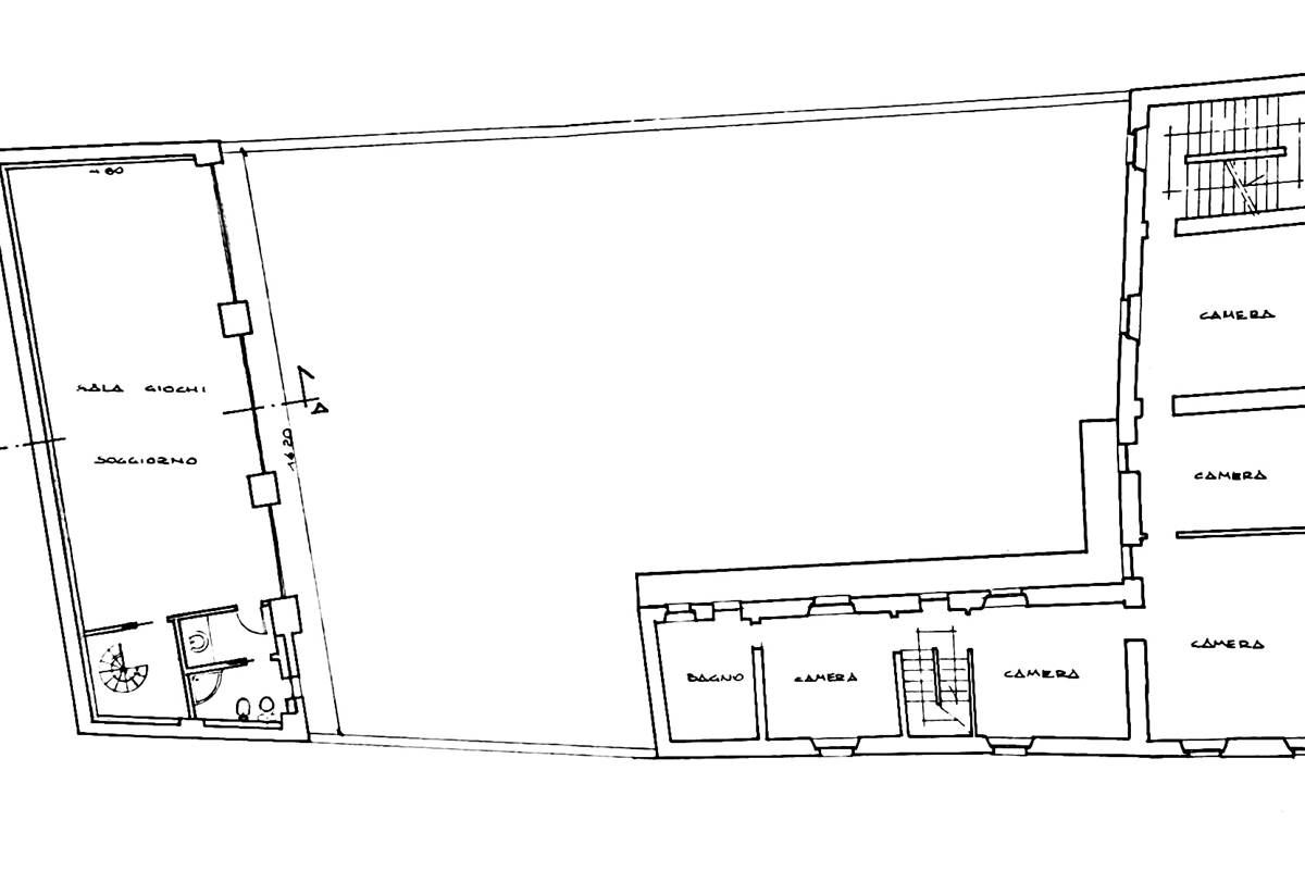
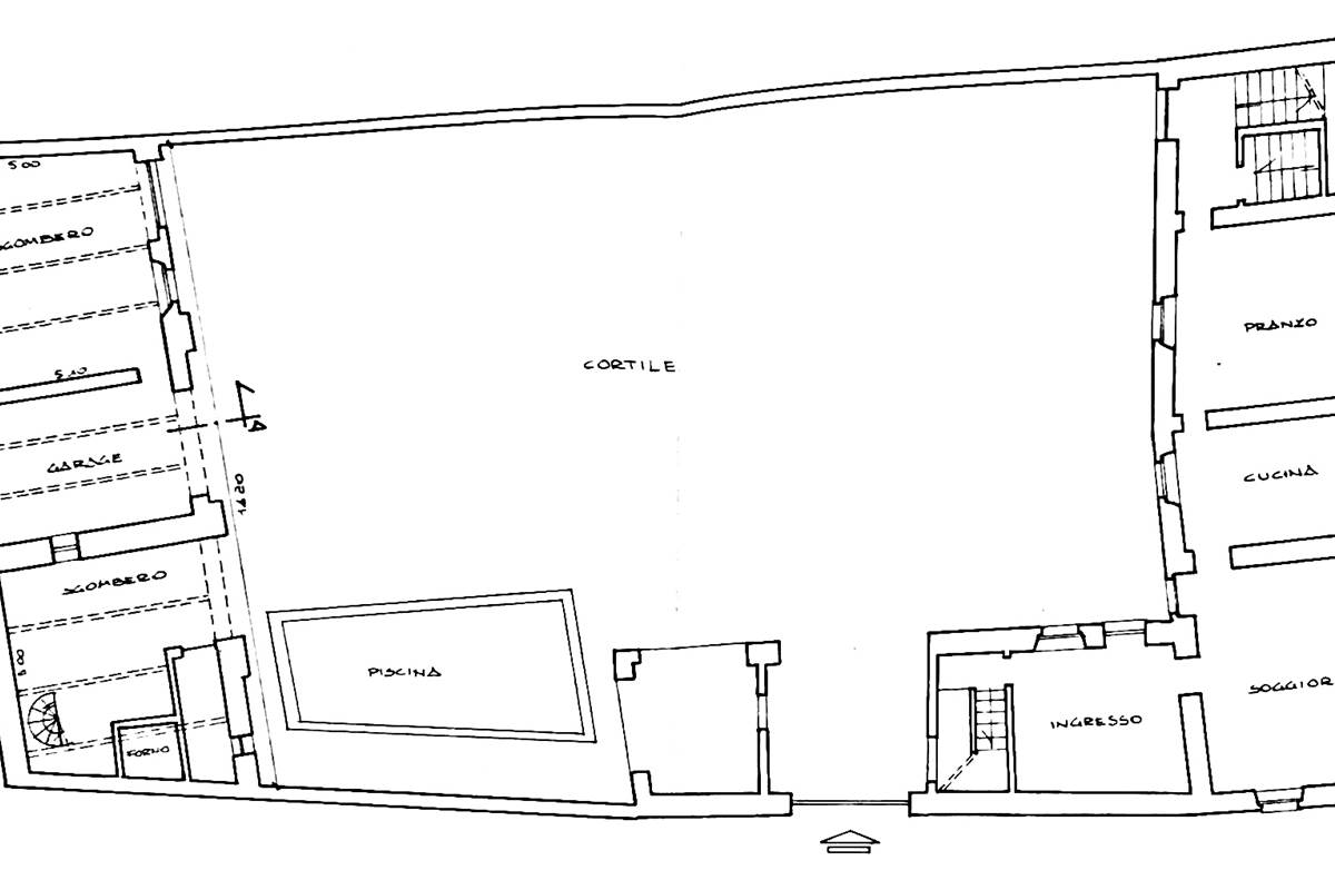
Mombaruzzo – Via Colombo: proponiamo in vendita un’ampia casa indipendente (circa 650 mq) con cortile e giardino privato oltre a piscina. Suddivisa in due corpi, nella parte principale troviamo al piano terra l’ingresso, il soggiorno, la cucina abitabile e la zona pranzo, al piano primo 5 camere da letto e un bagno, al piano secondo tre ampi locali oltre a un bagno. Nell’altro corpo, troviamo al piano terra un box e dei locali da adibire ad uso deposito, al piano primo un bagno e un open space di 99 mq adibito a sala giochi. La proprietà è ideale per famiglie numerose oppure per attività ricettive, come casa vacanza o bed and breakfast. Completano la proprietà la cantina con soffitti a volta con mattone a vista e la piscina privata.
L’intera proprietà si presenta in buone condizioni, necessita solo di lavori di ammodernamento.

(Come da DGR VIII/8745 del 22/12/2008 – Classe energetica: G – Indice di prestazione energetica: 322,06 Kwh/mqanno)

Per qualsiasi ulteriore informazione o per visionare l’immobile non esitate a contattarmi: 334 700 68 88

N.B. Il presente annuncio non costituisce forma di contratto, tutte le informazioni qui indicate sono da ritenersi del tutto indicative e non potranno essere utilizzate come parte integrante in un eventuale contratto di compravendita.
Città:Mombaruzzo
Prezzo:590.000 EUR
Classe:G
Locali:12
Camere:5
Bagni:3
Posti auto:6
Metri quadri:650
Mq cantina:50
Mq Giardino:360
Anno costruzione:1900
Stato Immobile:Abitabile
Grado:Signorile
Posizione:Centro
Panorama:Vista Aperta
Piano:Piano Terra
Totale Piani:Tre
Lati Liberi:2
Giardino:Privato
Arredi:Possibilità
Tipo Soggiorno:Soggiorno
Tipo Cucina:Abitabile
Riscaldamento:Autonomo
Tipo Riscaldam.:Caldaia
Tipo Impianto:Radiatori
Fonte Energetica:Metano
Acqua Calda:Autonoma
Infissi:Legno Doppio Vetro
Serramenti:Buono
Persiana:Persiana Legno
Pavim. Giorno:Cotto
Pavim. Notte:Cotto
Pavim. Cucina:Cotto
Pavim. Bagno:Cotto
Cantina - Solaio:Cantina
Accesso Disabili:Nessuna Barriera

Mappa

Via Colombo - 14046 Mombaruzzo AT
Cookie preference