PORZIONE DI CASA CIELO TERRA CON TRIPLO BOX -ROVENNA -CERNOBBIO

Cernobbio
(Rovenna)

370.000 EUR / trat.

PORZIONE DI CASA CIELO TERRA CON TRIPLO BOX -ROVENNA -CERNOBBIO (Rif. PP - 403 V)

Cernobbio – frazione Rovenna
In contesto tranquillo e soleggiato, proponiamo in vendita ampio appartamento cielo-terra con ingresso condiviso con un’altra unità (anch’essa disponibile per la vendita).
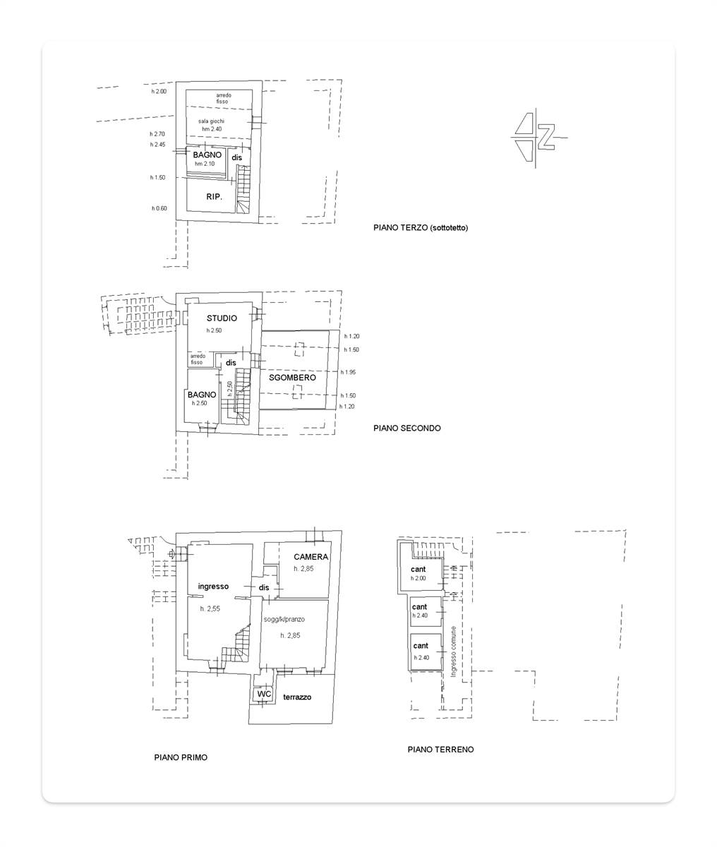
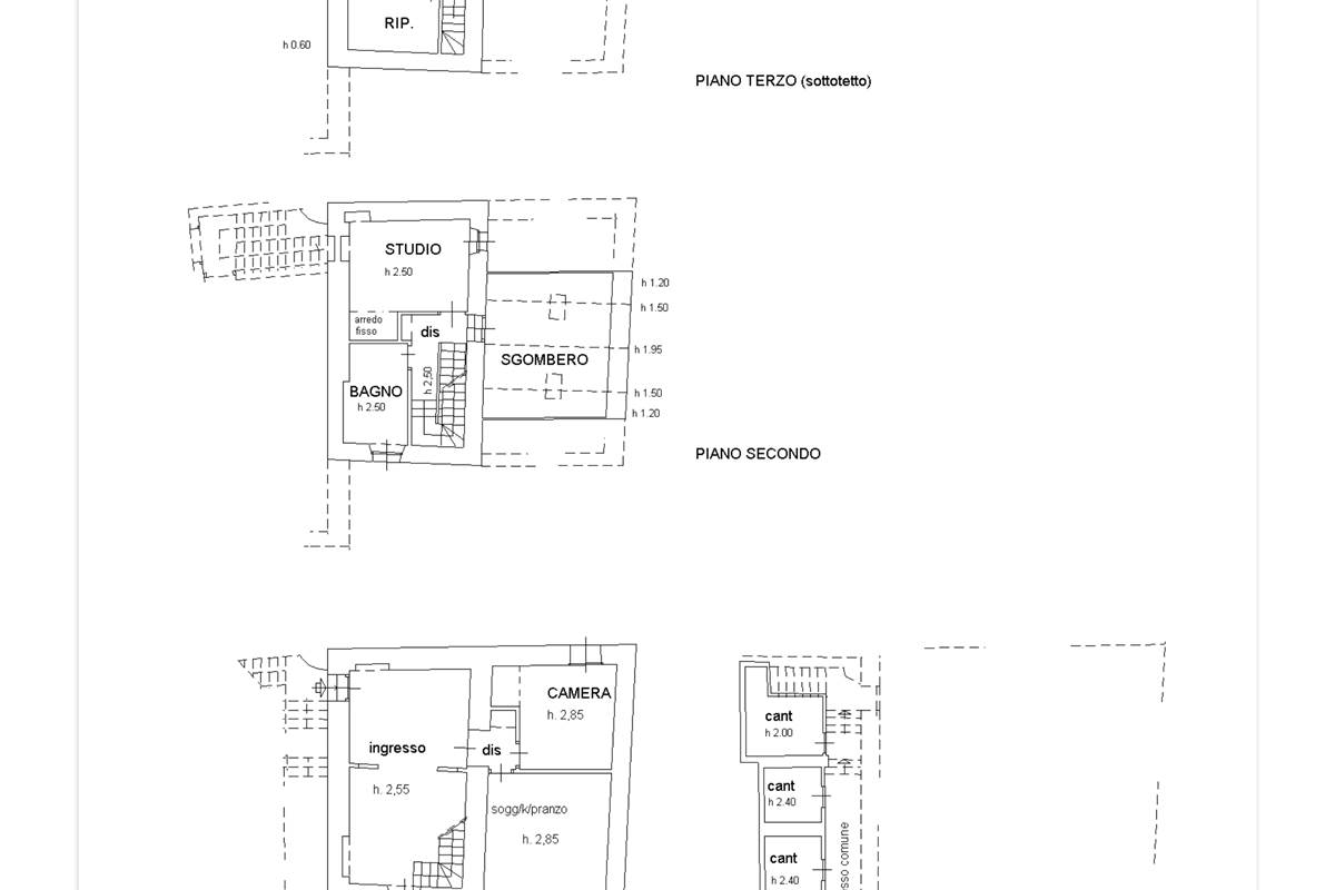
La proprietà si apre su un ampio soggiorno d’ingresso, un comodo tinello e una spaziosa cucina con portafinestra che affaccia su una piacevole terrazza, ideale per momenti di relax all’aperto.
Una scala interna conduce alla zona notte, composta da un’ampia camera, un bagno e un locale multiuso.
Proseguendo al piano mansardato, troviamo una camera matrimoniale di generose dimensioni, un secondo bagno e un comodo ripostiglio.
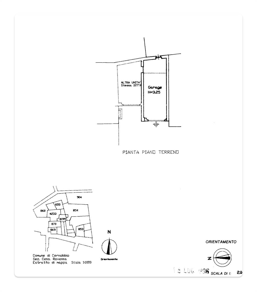
Completano la proprietà un grande box triplo e locali cantina.
L’appartamento si presenta in buone condizioni generali e necessita solo di piccoli interventi di rinfresco.
Soluzione ideale per chi desidera una casa indipendente in un contesto sereno e gradevole, a pochi minuti dal centro di Cernobbio e dal confine svizzero.
Città:Cernobbio
Prezzo:370.000 EUR / trat.
Classe:Fase di valutazione
Locali:4
Camere:2
Camere doppie:2
Camere singole:1
Bagni:2
Terrazzi:1
Box:1
Metri quadri:168
Mq calpestabili:163
Mq cantina:10
Mq Box:52
mq Terrazzo:9
Stato Immobile:Buono
Grado:Medio
Posizione:Collina
Panorama:Vista Aperta
Piano:Primo
Orientamento:Sud Ovest
Arredi:Possibilità
Tipo Soggiorno:Doppio
Tipo Cucina:Abitabile
Riscaldamento:Autonomo
Tipo Riscaldam.:Caldaia
Tipo Impianto:Radiatori
Fonte Energetica:Metano
Acqua Calda:Autonoma
Infissi:Legno Doppio Vetro
Serramenti:Buono
Persiana:Tapparella Legno
Pavim. Giorno:Parquet
Pavim. Notte:Parquet
Pavim. Cucina:Ceramica
Pavim. Bagno:Ceramica
Cantina - Solaio:Cantina
Appartamenti:Uno
Isolamento:Presente
Accessori: Aria Condizionata, Doppi Vetri, Lavanderia, Porta Blindata, Ripostiglio

Mappa

PIAZZA FONTANA , 3 - 22012 Cernobbio CO
Cookie preference