Negozio in vendita a Erba

Erba

110.000 EUR

Negozio in vendita a Erba (Rif. CV0055_ERBA)

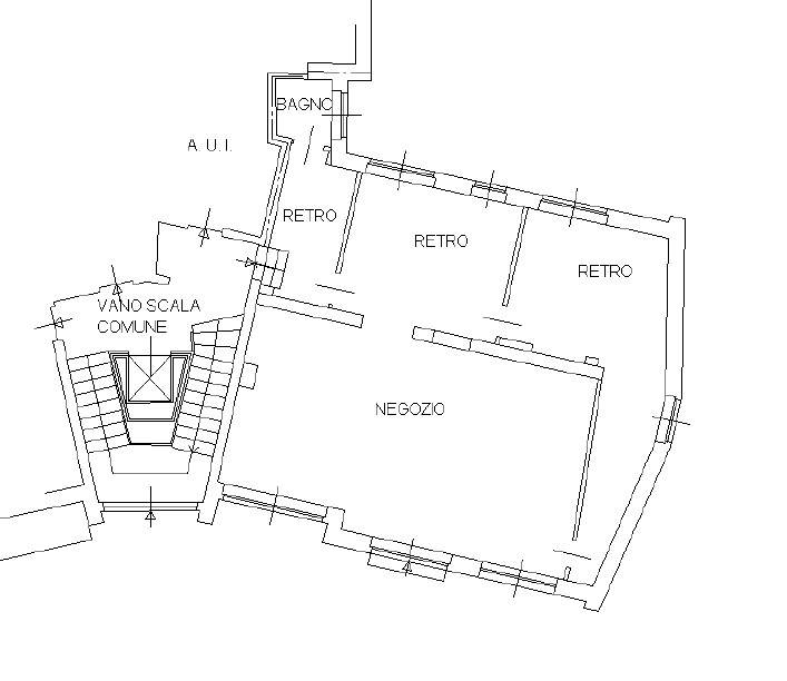
Erba – Via Belgiojoso, frazione Parravicino: si propone in vendita negozio/ufficio di 104 mq con tre vetrine fronte strada.
Lo spazio è composto da tre ambienti distinti oltre a un bagno, ed è stato utilizzato fino ad oggi come salone di parrucchiera.
La distribuzione interna lo rendono particolarmente adatto ad attività quali parrucchieri, centri estetici, studi professionali o attività di servizi.
Disponibilità immediata.
Interessante anche come investimento, con possibilità di messa a reddito.
Tapparelle e serramenti sostituiti nel 2018. Ristrutturazione generale del negozio effettuata nel 1996.

Completa la proprietà una spaziosa cantina di circa 50 mq.

Classe Energetica D – EP gl, nren 511,60 kWh/mq annuo – EP gl, ren 47,56 kWh/mq annuo – PEF bassa/bassa.
Città:Erba
Prezzo:110.000 EUR
Spese condominiali:1.300 EUR / anno
Classe:D (511,6 [kWh/m²a])
Locali:3
Bagni:1
Posti auto:1
Metri quadri:104
Mq cantina:53
Anno costruzione:1976
Anno ristrutturazione:1996
Stato Immobile:Abitabile
Grado:Medio
Posizione:Campagna
Piano:Piano Terra
Orientamento:Ovest Est
Lati Liberi:3
Arredi:Arredato
Riscaldamento:Centralizzato
Infissi:PVC Doppio Vetro
Serramenti:Ottimo
Persiana:Tapparella PVC
Cantina - Solaio:Cantina
Accessori: Doppi Vetri

Mappa

Via Belgiojoso, 6 - 22036 Erba CO
Cookie preference