Capannone in vendita a Cantù

Cantù

1.200.000 EUR

Capannone in vendita a Cantù (Rif. CV0051)

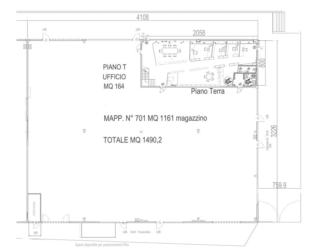
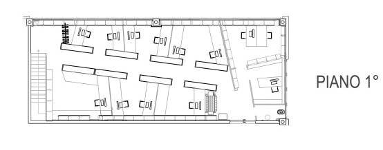
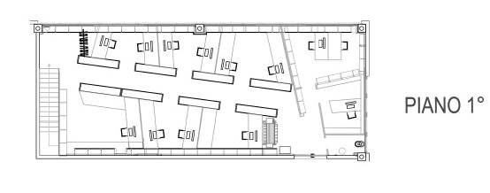
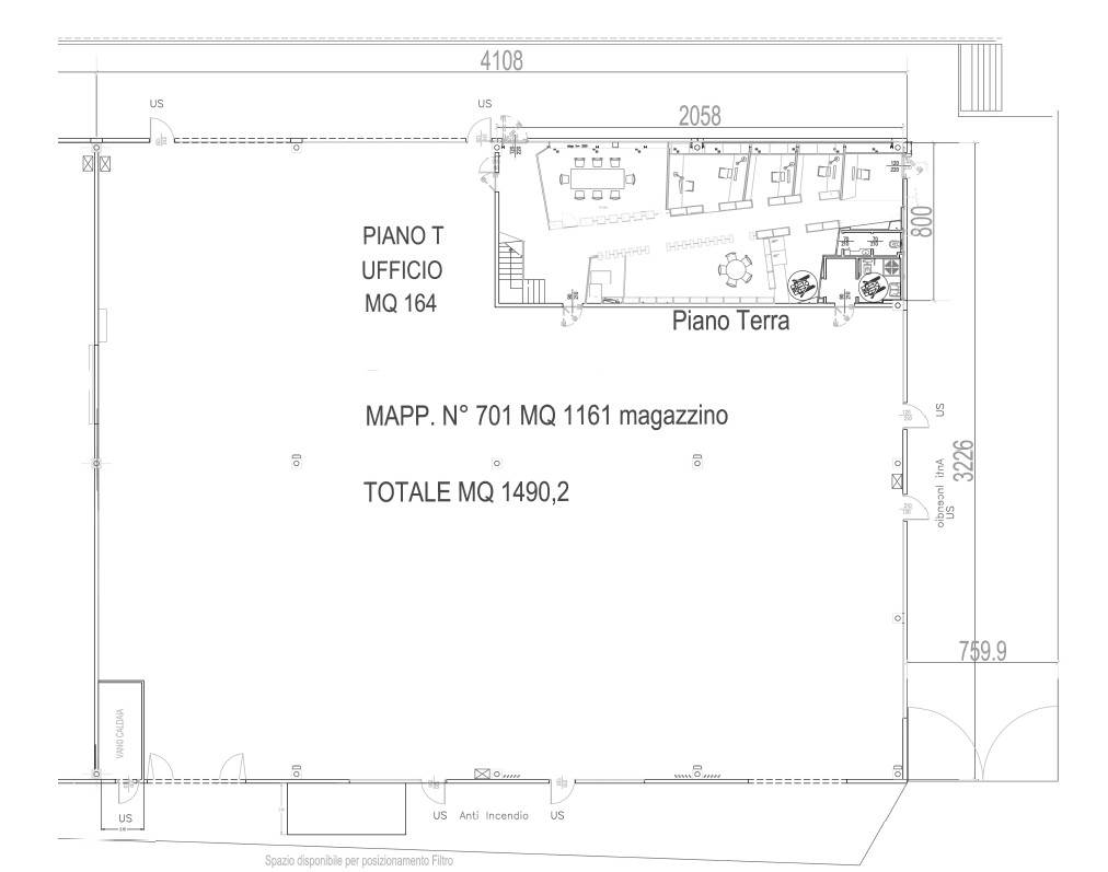
Cantù – Via Spluga: proponiamo in vendita capannone di 1160 mq disposto su unico livello oltre ad uffici di 320 mq disposti su due livelli con doppio bagno (uno per disabili). Il capannone dispone di riscaldamento con pannelli radianti a pavimento con caldaia a condensazione, impianto di antifurto e videosorveglianza oltre a split per l’aria condizionata nell’area uffici. L’altezza interna è di 7,5 metri. Anno di costruzione: 2005. Impiantistica: a norma. Anello antincendio: presente. Completa la proprietà un’area esterna di circa 450 mq. A confine è presente un ampio parcheggio (circa 100 posti auto). Possibilità di locazione a 72.000 euro/anno. Libero dal 1 aprile 2026.

(Classe Energetica "D" EP gl, nren 313,94 kWh/mqa - EP gl, ren 35,44 kWh/mqa - PEF bassa/bassa)

N.B. Il presente annuncio non costituisce forma di contratto, tutte le informazioni qui indicate sono da ritenersi del tutto indicative e non potranno essere utilizzate come parte integrante in un eventuale contratto di compravendita.
Città:Cantù
Prezzo:1.200.000 EUR
Spese condominiali:1.500 EUR / anno
Classe:D (313,94 [kWh/m²a])
Locali:2
Bagni:2
Metri quadri:1480
Mq Giardino:450
Anno costruzione:2005
Stato Immobile:Ottimo
Piano:Piano Terra
Tipo Riscaldam.:Caldaia
Tipo Impianto:Pavimento
Acqua Calda:Autonoma
Destinazione:Industriale
Accesso Disabili:Nessuna Barriera
Metri altezza capannone:7,50
Mq piazzale/corte:450
Accessori: Antifurto, Aria Condizionata, Bagno Handicap

Mappa

Via Spluga, 52 - 22063 Cantù CO
Cookie preference