CANZO PROSSIMA REALIZZAZIONE IN A3

Canzo

282.000 EUR

CANZO PROSSIMA REALIZZAZIONE IN A3 (Rif. CANZO 08)

Scopri il tuo nuovo appartamento a Canzo!
In prossima realizzazione, proponiamo eleganti appartamenti con finiture di alta qualità e possibilità di personalizzazione.
Tutti gli appartamenti sono dotati di:
- Terrazzo o giardino
- Autorimessa
- Classe energetica A3 (valore di progetto 33,87 kWh/m2a)
- Serramenti in PVC a taglio termico con tapparelle motorizzate in alluminio coibentato
- Portoncino blindato antisfondamento
- Impianto di riscaldamento a pavimento con pompa di calore aria/acqua
- Predisposizione per la climatizzazione estiva con raffrescamento a pavimento
- Impianto fotovoltaico
- Impianto di trattamento aria (VMC)
- Impianto induzione per uso domestico
- Impianto videocitofono
- Predisposizione impianto allarme
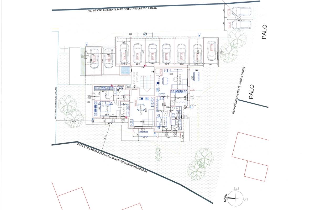
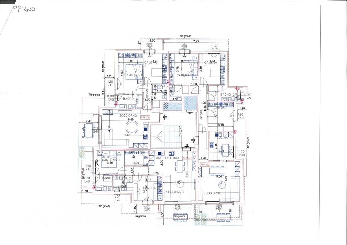
TIPOLOGIA TRILOCALE PIANO SECONDO 08: ingresso, soggiorno con cucina a vista e uscita sul terrazzo, disimpegno notte, camera matrimoniale con bagno privato, seconda camera, secondo bagno, 2 balconi sulle camere. Autorimessa. Prezzo: €. 282.000,00 + iva.
Contattaci per scoprire di più e prenotare la tua visita, non perderti questa occasione!
Città:Canzo
Prezzo:282.000 EUR
Classe:A3 (33,87 [kWh/m²a])
Locali:3
Camere:2
Bagni:2
Balconi:2
Terrazzi:1
Box:1
Metri quadri:85
Mq Box:16
Mq Balcone:18,81
Stato Immobile:Prossima Realizzazione
Grado:Signorile
Panorama:Vista Aperta
Piano:Secondo
Totale Piani:Due
Lati Liberi:2
Tipo Soggiorno:Soggiorno
Tipo Cucina:A Vista
Tipo Impianto:Pavimento
Accesso Disabili:Nessuna Barriera
Isolamento:Presente
Isolamento termico:Cappotto esterno
Isolamento acustico:Isolamento completo
Accessori: Antifurto, Ascensore, Impianto Fotovoltaico, Porta Blindata, Video Citofono

Mappa

VIA MARTIRI DELLA LIBERTA' - 22035 Canzo CO
Cookie preference