CANZO PROSSIMA REALIZZAZIONE IN A3

Canzo

275.000 EUR

CANZO PROSSIMA REALIZZAZIONE IN A3 (Rif. CANZO 02)

Scopri il tuo nuovo appartamento a Canzo!
In prossima realizzazione, proponiamo eleganti appartamenti con finiture di alta qualità e possibilità di personalizzazione.
Tutti gli appartamenti sono dotati di:
- Terrazzo o giardino
- Autorimessa
- Classe energetica A3 (valore di progetto 33,87 kWh/m2a)
- Serramenti in PVC a taglio termico con tapparelle motorizzate in alluminio coibentato
- Portoncino blindato antisfondamento
- Impianto di riscaldamento a pavimento con pompa di calore aria/acqua
- Predisposizione per la climatizzazione estiva con raffrescamento a pavimento
- Impianto fotovoltaico
- Impianto di trattamento aria (VMC)
- Impianto induzione per uso domestico
- Impianto videocitofono
- Predisposizione impianto allarme
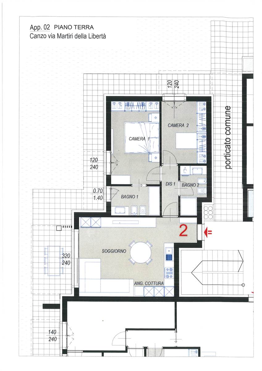
TIPOLOGIA TRILOCALE PIANO TERRA 02: ingresso, soggiorno con cucina a vista e uscita sul portico coperto, disimpegno notte, camera matrimoniale, seconda camera, 2 bagni, giardino privato. Autorimessa. Prezzo: €. 275.000,00 + iva.
Contattaci per scoprire di più e prenotare la tua visita, non perderti questa occasione!
Città:Canzo
Prezzo:275.000 EUR
Classe:A3 (33,87 [kWh/m²a])
Locali:3
Camere:2
Bagni:2
Box:1
Metri quadri:82
Mq Box:16
Mq Giardino:105
Stato Immobile:Prossima Realizzazione
Grado:Signorile
Panorama:Vista Aperta
Piano:Piano Terra
Totale Piani:Due
Lati Liberi:2
Giardino:Privato
Tipo Soggiorno:Soggiorno
Tipo Cucina:A Vista
Tipo Impianto:Pavimento
Accesso Disabili:Nessuna Barriera
Isolamento:Presente
Isolamento termico:Cappotto esterno
Isolamento acustico:Isolamento completo
Accessori: Ascensore

Mappa

VIA MARTIRI DELLA LIBERTA' - 22035 Canzo CO
Cookie preference