Moderna Villa Bifamiliare con Giardino Privato

Cabiate

520.000 EUR

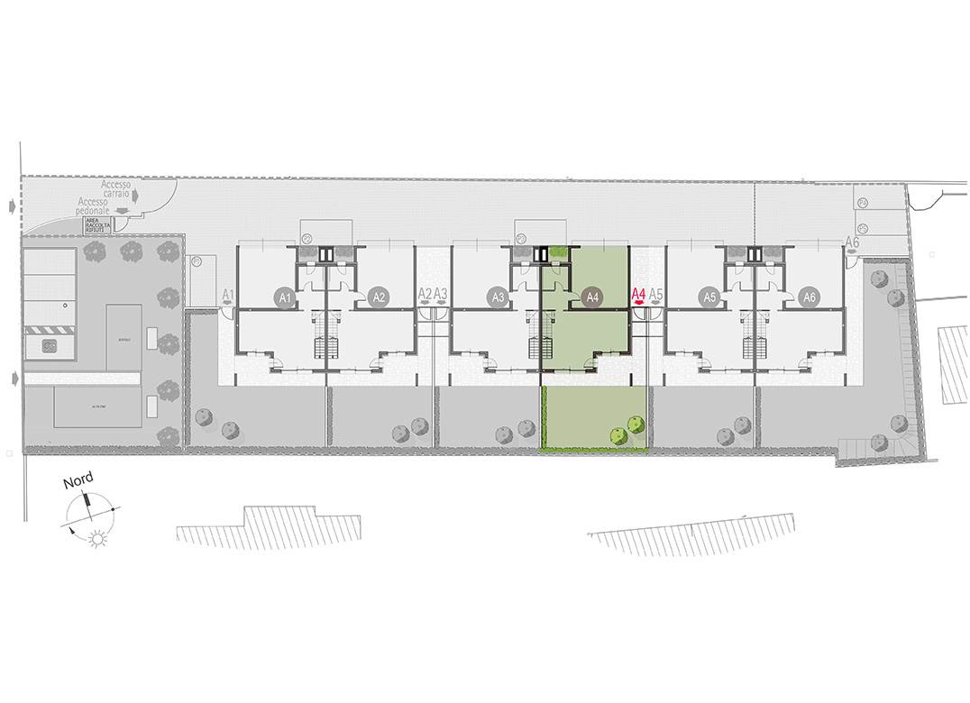
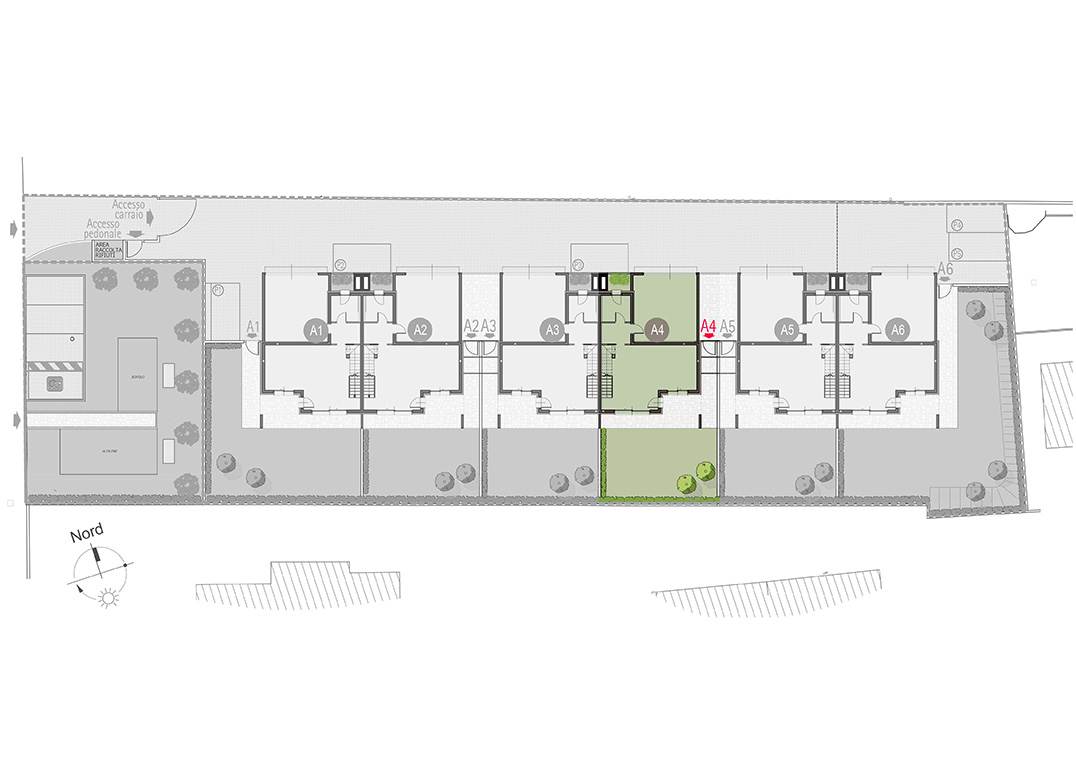
Moderna Villa Bifamiliare con Giardino Privato (Rif. CABIATE A4)

In contesto tranquillo e residenziale, splendida villa bifamiliare disposta su più livelli, con ampia zona giorno open space, tre camere, tre bagni e ripostiglio. All’esterno, terrazzo, portico coperto e giardino di 80 mq perfetto per vivere all’aperto. Box doppio e posto auto completano la proprietà.
Classe energetica A3 – valore di progetto.

Consulenza ed assistenza tecnico legale sino alla stipula del Rogito Notarile.
Valutazioni GRATUITE SENZA IMPEGNO Servizio FOTOGRAFICO Inserzioni pubblicitarie sui maggiori portali di settore e riviste Associati F.I.M.A.A. Como. Note: Le informazioni presenti nelle schede immobili non costituiscono alcuna forma di contratto, tutte le informazioni contenute negli annunci sono da ritenersi del tutto indicative e non potranno essere utilizzate come parte integrante in un eventuale contratto di vendita o locazione della proprietà e non vincolano in alcun modo la società Gruppo Servizi Immobiliari.

NOTA: Si avvertono i Signori clienti che gli indirizzi inseriti all'interno dell'annuncio sono indicativi e non rispecchiano la realtà. Questa, vuole essere un ausilio nell'indicazione della zona pur rispettando la Privacy dei venditori. Ulteriori chiarimenti possono essere forniti presso la nostra sede o telefonicamente.


TUTTE LE INFO IN AGENZIA! Venite a trovarci in agenzia, il nostro personale esperto e qualificato vi aiuterà a trovare l'immobile giusto per le vostre esigenze. Offriamo anche consulenza finanziaria con mediatori creditizi abilitati, e preventiva verifica catastale e urbanistica con tecnici professionisti
Città:Cabiate
Prezzo:520.000 EUR
Classe:A3
Locali:4
Camere:3
Camere doppie:1
Camere singole:2
Bagni:3
Balconi:1
Terrazzi:1
Box:2
Posti auto:1
Metri quadri:180
Mq Box:49
Mq Giardino:80
mq Terrazzo:22
Anno costruzione:2025
Stato Immobile:In Costruzione
Grado:Signorile
Panorama:Vista Giardino
Orientamento:Sud Nord
Lati Liberi:2
Giardino:Privato
Tipo Soggiorno:Soggiorno
Tipo Cucina:A Vista
Riscaldamento:Autonomo
Tipo Riscaldam.:Pompa di Calore
Tipo Impianto:Pavimento
Accessori: Cancello Elettrico, Doppi Vetri, Porta Blindata, Ripostiglio, Tapparelle Elettriche, Video Citofono
Cookie preference