Nuovo con Giardino

Alserio

227.000 EUR

Nuovo con Giardino (Rif. Alserio H2)

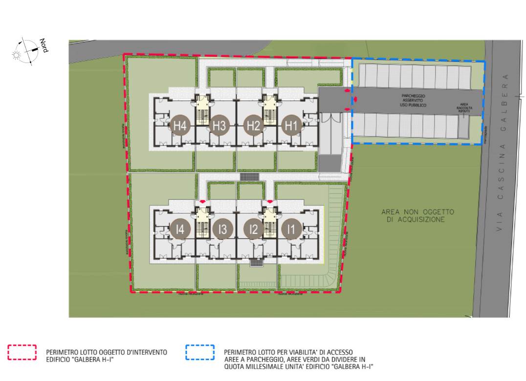
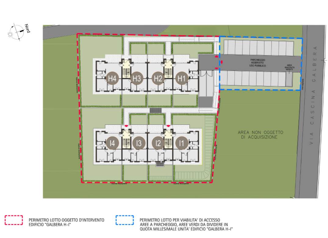
Trilocale moderno al piano terra con ampio giardino privato – Classe A3 Se cerchi una casa luminosa, efficiente e con uno spazio esterno tutto da vivere, questo trilocale è la soluzione ideale. Situato al piano terra, l’appartamento offre una zona giorno open-space composta da cucina e soggiorno, caratterizzata da grandi aperture che garantiscono luce naturale durante tutto l’arco della giornata. La zona notte comprende due camere da letto ben distribuite e bagno, progettati per un comfort quotidiano ottimale. Il vero valore aggiunto è l’ampio giardino privato , perfetto per vivere all’aperto: ideale per cene estive, area giochi, relax o per chi ama il verde e desidera un’oasi personale. L’immobile vanta una classe energetica A3 (valore di progetto indicativo), garanzia di elevata efficienza, consumi ridotti e comfort abitativo in ogni stagione. Punti di forza: Luminosità eccellente Elevata efficienza energetica Ampio giardino privato Spazi interni moderni e ben distribuiti Una proposta ideale per chi desidera qualità, tranquillità e un contatto diretto con la natura senza rinunciare alle comodità moderne.
CONSEGNA FEBBRAIO 2027
Consulenza ed assistenza tecnico legale sino alla stipula del Rogito Notarile. Valutazioni GRATUITE SENZA IMPEGNO Servizio FOTOGRAFICO Inserzioni pubblicitarie sui maggiori portali di settore e riviste Associati F.I.M.A.A. Como. Note: Le informazioni presenti nelle schede immobili non costituiscono alcuna forma di contratto, tutte le informazioni contenute negli annunci sono da ritenersi del tutto indicative e non potranno essere utilizzate come parte integrante in un eventuale contratto di vendita o locazione della proprietà e non vincolano in alcun modo la società Gruppo Servizi Immobiliari. NOTA: Si avvertono i Signori clienti che gli indirizzi inseriti all'interno dell'annuncio sono indicativi e non rispecchiano la realtà. Questa, vuole essere un ausilio nell'indicazione della zona pur rispettando la Privacy dei venditori. Ulteriori chiarimenti possono essere forniti presso la nostra sede o telefonicamente.
Città:Alserio
Prezzo:227.000 EUR
Classe:A3
Locali:3
Bagni:1
Metri quadri:84
Mq Giardino:69
Stato Immobile:In Costruzione
Grado:Signorile
Piano:Piano Terra
Orientamento:Ovest Est
Lati Liberi:2
Giardino:Privato
Tipo Soggiorno:Soggiorno
Tipo Cucina:A Vista
Riscaldamento:Centralizzato
Tipo Riscaldam.:Pompa di Calore
Tipo Impianto:Pavimento
Accessori: Cancello Elettrico, Doppi Vetri, Porta Blindata, Video Citofono
Cookie preference