CERNOBBIO NUOVO BILOCALE IN VENDITA

Cernobbio

340.000 EUR

CERNOBBIO NUOVO BILOCALE IN VENDITA (Rif. APP TRILO P3_ADV)

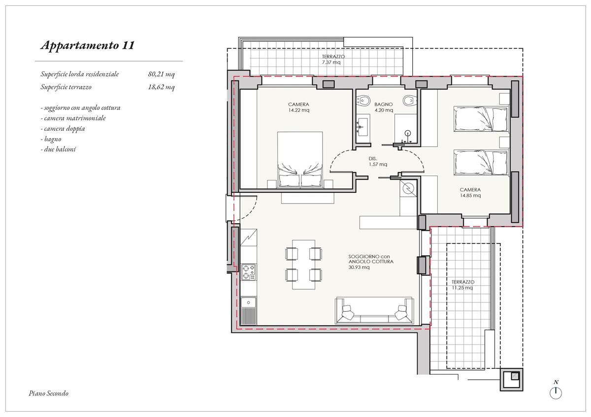
In nuova palazzina residenziale in fase di realizzazione, proponiamo in vendita appartamento di 3 locali ubicato al terzo ed ultimo piano
Composto da soggiorno con cucina a vista dotato di terrazzo, disimpegno notte, camera matrimoniale, camera ragazzi e bagno padronale. E' possibile la realizzazione di un secondo bagno, che potrebbe essere dotato di lavandino e water a servizio della zona giorno e da destinare agli ospiti. E' inoltre possibile realizzare un zona lavanderia nel disimpegno notte così da ottenere maggiore spazio in bagno.
Un vero plus è rappresentato dal terrazzo, accessibile dal soggiorno che permette di essere sfruttato per serate in compagnia di amici. Inoltre tutti i locali abitazione hanno portefinestre di accesso al terrazzo o al balcone!

L’acquisto di questo immobile prevede che l'acquirente abbia le massime garanzie e tutele previste dal Decreto Legislativo n. 122/2005 in quanto trattasi di vendita di immobile in fase di costruzione.

Tale normativa garantisce all’acquirente un elevato livello di sicurezza, prevedendo:
• il rilascio di una polizza fideiussoria a copertura di tutte le somme di danaro versate in acconto (dal preliminare fino al rogito);
• stipula del contratto preliminare mediante atto notarile, comporta la trascrizione nei pubblici registri immobiliari la tutela del diritto di acquisto;
• immobile dotato di polizza postuma decennale a copertura di eventuali vizi o difetti costruttivi;

Possibilità di acquistare:
- Posto auto scoperto € 25.000
- Box auto singolo € 40.000
- Box auto doppio (nel senso della lunghezza) € 60.000

Finiture interne a scelta
Consegna febbraio 2027

Per prenotare un appuntamento chiamaci da lun. a ven. dalle 9 alle 13
Città:Cernobbio
Prezzo:340.000 EUR
Classe:A2 (82,5 [kWh/m²a])
Locali:3
Camere doppie:1
Camere singole:1
Bagni:1
Terrazzi:2
Metri quadri:80,21
mq Terrazzo:18,62
Anno costruzione:2025
Stato Immobile:Prossima Realizzazione
Posizione:Centro
Piano:Terzo
Orientamento:Ovest
Totale Piani:Tre
Lati Liberi:3
Giardino:Comune
Arredi:Non Arredato
Tipo Soggiorno:Soggiorno
Tipo Cucina:Angolo Cottura
Riscaldamento:Centralizzato
Tipo Riscaldam.:Pompa di Calore
Tipo Impianto:Pavimento
Fonte Energetica:Elettrico
Acqua Calda:Centralizzata
Raffrescamento:Predisposizione
Infissi:PVC Doppio Vetro
Serramenti:Nuovo
Persiana:Oscurante Metallo
Pavim. Giorno:Personalizzato
Pavim. Notte:Personalizzato
Pavim. Cucina:Personalizzato
Pavim. Bagno:Personalizzato
Accesso Disabili:Nessuna Barriera
Accesso interno disabili:Pieno accesso
Accessori: Aria Condizionata, Ascensore, Bagno Handicap, Cancello Elettrico, Doppi Vetri, Impianto Fotovoltaico, Pannelli Solari, Porta Blindata, Tapparelle Elettriche, Video Citofono

Mappa

via Trieste , 13 - 22012 Cernobbio CO

Video

Cookie preference