LUINOSO DUPLEX

Como
(Camnago Volta)

1.100 EUR

LUINOSO DUPLEX (Rif. TF-374-AAA)

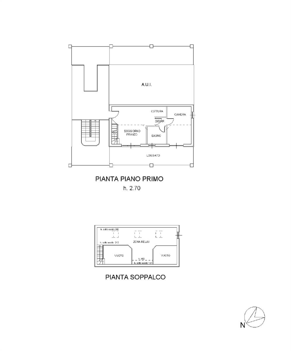
In zona residenziale tranquilla di Como, in Via Navedano, proponiamo in vendita appartamento duplex di circa 160 mq commerciali, inserito in contesto ordinato e ben abitato.

L’immobile si sviluppa su due livelli, al primo piano si trova una zona giorno con accesso ad un ampio terrazzo, cucina a vista, disimpegno, una camera da letto e un bagno. Il piano superiore ospita una area aperta, utilizzata come camera matrimoniale, una camera singola e un ulteriore piccolo bagno.

La presenza dei due livelli consente una buona separazione degli ambienti ed è adatta sia a un utilizzo familiare sia a chi necessita di spazi distinti per lavoro o ospiti.

Completa la proprietà un posto auto condominiale.

La posizione è silenziosa e verde, con il centro di Como facilmente raggiungibile e collegamenti comodi alle principali direttrici.

L'immobile è Termo autonomo.
Disponibilità immediata.
Città:Como
Prezzo:1.100 EUR
Spese condominiali:1.440 EUR / anno
Classe:Fase di valutazione
Locali:4
Camere:2
Camere doppie:1
Camere singole:1
Posti letto:3
Bagni:2
Terrazzi:1
Posti auto:1
Metri quadri:90
Life Style:Friendly
Stato Immobile:Buono
Grado:Medio
Posizione:Collina
Panorama:Vista Aperta
Piano:Secondo
Totale Piani:Due
Lati Liberi:2
Arredi:Semi Arredato
Tipo Soggiorno:Sala da Pranzo
Tipo Cucina:A Vista
Riscaldamento:Autonomo
Tipo Riscaldam.:Caldaia
Tipo Impianto:Radiatori
Fonte Energetica:Gas
Acqua Calda:Autonoma
Raffrescamento:No
Infissi:Legno Doppio Vetro
Serramenti:Buono
Persiana:Persiana Legno
Pavim. Giorno:Ceramica
Pavim. Notte:Laminato
Pavim. Cucina:Ceramica
Pavim. Bagno:Ceramica
Cauzione:Tre Mesi
Canoni Anticipati:Un Mese
Tipo Contratto:Transitorio
Accesso Disabili:No
Accesso interno disabili:Non accessibile
Tipo Registr.:Cedolare Secca
Isolamento:Non presente
Isolamento termico:Nessuno
Isolamento acustico:Nessuno
Accessori: Doppi Vetri

Mappa

Via Navedano, snc - 22100 Como CO
Cookie preference