Capannone ad uso industriale in locazione

Gallarate

2.900 EUR

Capannone ad uso industriale in locazione (Rif. A001586)

Gallarate, ubicato in posizione perfettamente servita, con la vicina Autostrada Pedemontana (A36), prossimo all’aeroporto di Milano Malpensa, alla SS33, all’autostrada dei Laghi A8 Milano-Varese e all’Autostrada E62, offriamo in locazione interessante capannone ad uso industriale-artigianale.
Inserito in una zona industriale attiva e dinamica con SPESE CONDOMINIALI ASSAI CONTENUTE.
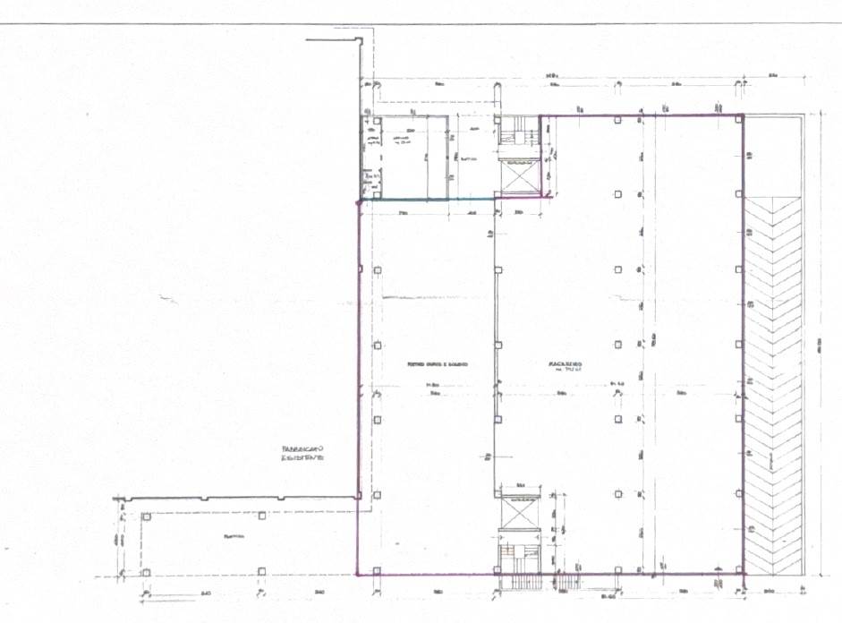
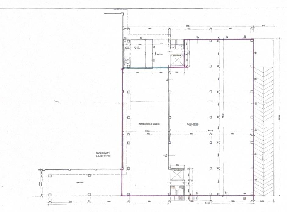
L’immobile, ubicato INTERAMENTE A PIANTERRENO, si sviluppa su un totale di 1.200 mq di superfici interne, con annesse comode pertinenze esterne quali 5 POSTI AUTO COPERTI da tettoia, un ampio CORSELLO CARRABILE AD USO ESCLUSIVO con cancello elettrico e una pratica AREA ESTERNA per carico/scarico situata direttamente davanti al portone d’ingresso.
Il fabbricato principale è costituito da capannone a tre campate con due file di pilastri in cemento armato (sette pilatri per ciascuna fila), libero su tre lati, con accesso tramite grosso portone sezionale motorizzato (misure portone: altezza 5,00 m – larghezza 8,27 m).
Completano l’interno due uffici prefabbricati e un bagno con antibagno.
Pavimentazione in calcestruzzo, portone interno, impianto d’antifurto, videosorveglianza, assenza di barriere architettoniche, doppia uscita d’emergenza, altezza utile sotto-trave: 4,82 m;
altezza sotto-tegolo: 5,20 m; altezza architrave 4,60 m.
Immobile non riscaldato.
Libero subito, da vedere!
Per salvaguardare la privacy del nostro proprietario e al contempo poter dare la possibilità al futuro inquilino di poter individuare la zona di ubicazione dell’immobile, comunichiamo che l’indirizzo citato è puramente indicativo.
Città:Gallarate
Prezzo:2.900 EUR
Classe:G
Locali:2
Bagni:1
Posti auto:5
Metri quadri:1200
Anno costruzione:1991
Stato Immobile:Buono
Grado:Medio
Posizione:Periferia
Panorama:Vista Giardino
Orientamento:Nord Ovest Sud Est
Lati Liberi:3
Riscaldamento:No
Acqua Calda:Autonoma
Pavimento:Cemento
Cauzione:Tre Mesi
Canoni Anticipati:Un Mese
Tipo Contratto:6+6 Anni
Destinazione:Industriale
Accesso Disabili:Nessuna Barriera
Accesso interno disabili:Pieno accesso
Tipo Registr.:Tradizionale
Isolamento:Non presente
Accessori: Antifurto, Passaggio Automobilistico, Passaggio Pedonale

Mappa

Via Irlanda - 21013 Gallarate VA

Video

Cookie preference