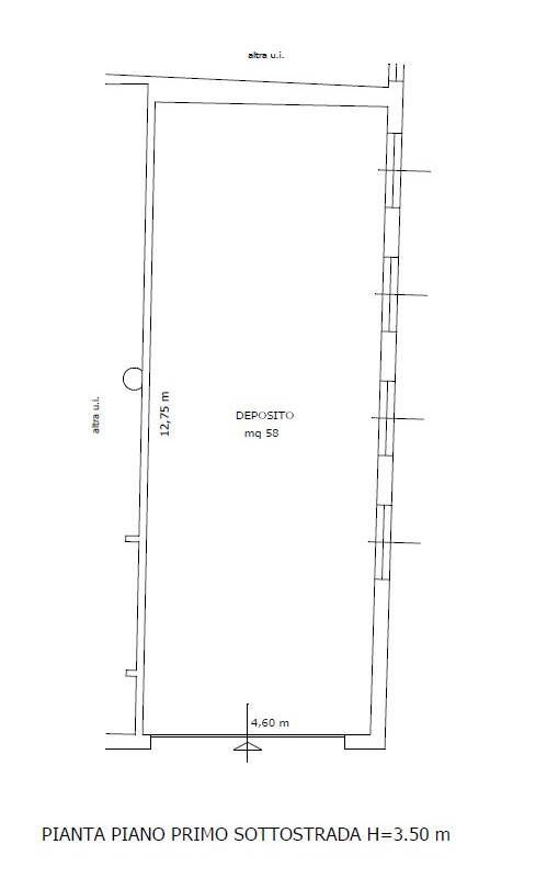
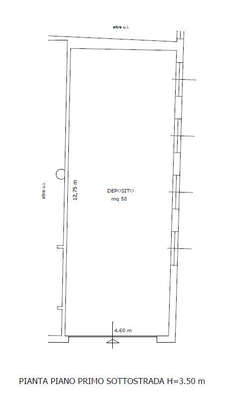
CANTU' Via Manzoni affitto DEPOSITO MQ 60

Cantù

450 EUR

CANTU' Via Manzoni affitto DEPOSITO MQ 60 (Rif. A000569)

CANTU' Via Manzoni affitto DEPOSITO Mq 60, altezza 3,50 m con comoda area di manovra.
CL G

Richiesta € 5.400,00 annui

Rif RO
Città:Cantù
Prezzo:450 EUR
Classe:G
Locali:1
Metri quadri:60
Stato Immobile:Buono
Grado:Economico
Posizione:Centro
Pavimento:Cemento
Cauzione:Tre Mesi
Canoni Anticipati:Un Mese
Tipo Contratto:6+6 Anni
Metri altezza capannone:3,50
Cookie preference